EasyManua.ls Logo

YASKAWA MP2300 - Page 54

YASKAWA MP2300
267 pages
Print Icon
To Next Page IconTo Next Page
To Next Page IconTo Next Page
To Previous Page IconTo Previous Page
To Previous Page IconTo Previous Page
Loading...
2
Module Specifications
2.2.7
SVR Virtual Motion Module
2-26
( 2 ) Example SVR Usage
The SVR is used in the following two applications.
Program testing: Results are easily obtained without mounting a motor.
Generating commands: If the SVR is used in applications where motion modules are required only for
generating commands, such as master axis for phase control or multi-axis synchronous control, then Motion
Modules on real axes are no longer required.
The following table lists application examples of the SVR.
The software limit function and machine lock function cannot be used with the SVR. The position error will always be
0.
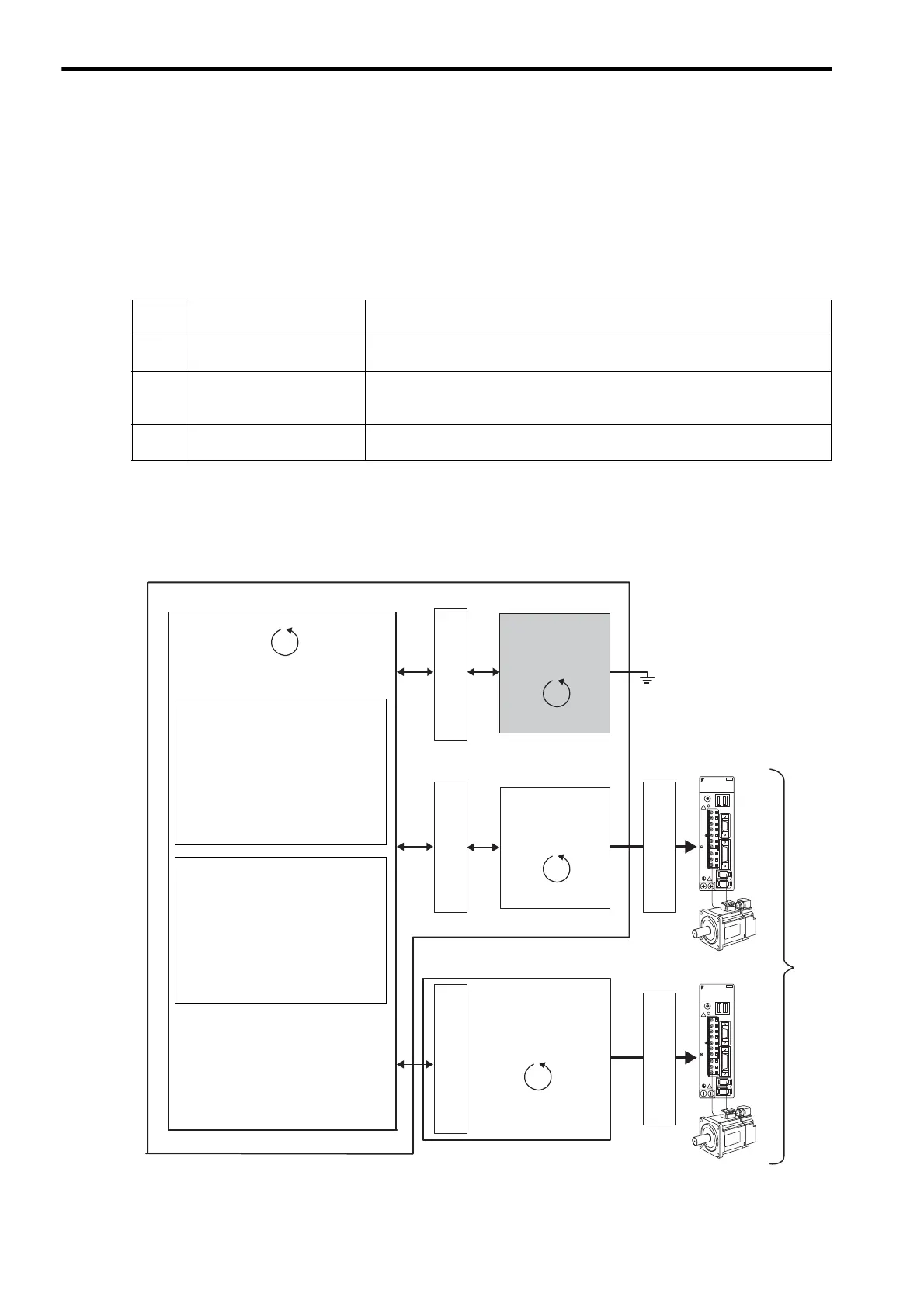
( 3 ) System Configuration Example
The following figure shows an example system configuration using SVR.
Slot
Number
Application Example Application Method
1
Master axis for phase control
Electronic cam or shaft operation can be achieved by using the SVR for the virtual
master axis.
2
Multi-axis synchronous
control
Multi-axis synchronous control can be achieved by controlling the SVR from a
motion program and then using the ladder program to copy position commands of the
SVR to other axes.
3
Sine curve commands
If the motion program is used to perform circular interpolation with the SVR, the axis
will operate with a sine curve command.
Motion
Parameter
Virtual Servo axes
MP2300
Motion
Parameter
Motion
Parameter
Optional modules
Ladder program
Motion program
High-speed scan
High-speed scan
MECHATROLINK
MECHATROLINK
SERVOPACK
YASKAWA SERVOPACK
200V
SGDS-01A12A
SW1
CHARGE
C
N
3
A/B
C
N
1
C
N
2
C
N
4
L1
L2
L2C
L1C
B1/
B2
U
V
W
C
N
6
Servomotor
SERVOPACK
YASKAWA SERVOPACK
200V
SGDS-01A12A
SW1
CHARGE
C
N
3
A/B
C
N
1
C
N
2
C
N
4
L1
L2
L2C
L1C
B1/
B2
U
V
W
C
N
6
Servomotor
Real Servo axes
Virtual motion
module (SVR)
High-speed scan
Motion module
(Built-in SVB)
High-speed scan
Motion module
(SVB-01)
CPU

Table of Contents

Related product manuals