EasyManua.ls Logo

YASKAWA SGMJV - Connection Example of External Encoder by Renishaw

YASKAWA SGMJV
400 pages
Print Icon
To Next Page IconTo Next Page
To Next Page IconTo Next Page
To Previous Page IconTo Previous Page
To Previous Page IconTo Previous Page
Loading...
9 Fully-closed Loop Control
9.1.6 Connection Example of External Encoder by Renishaw
9-8
9.1.6 Connection Example of External Encoder by Renishaw
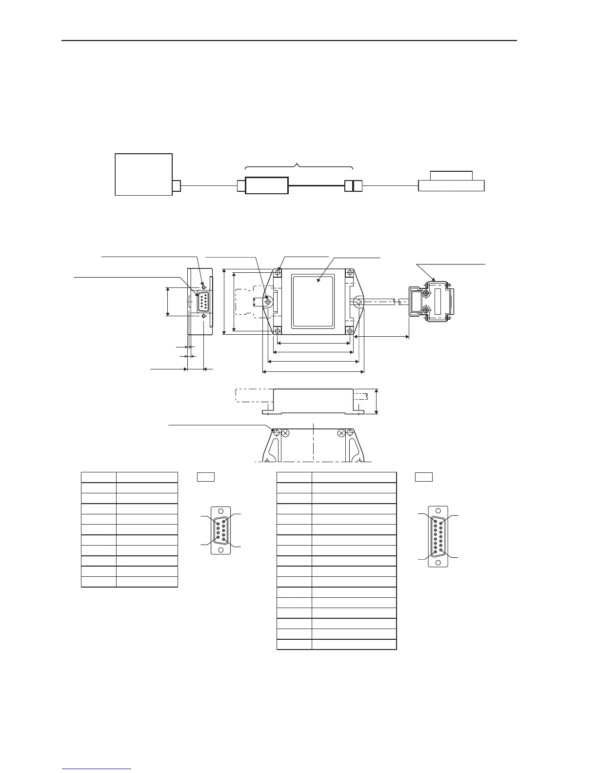
(1) Connection Example
(2) Specifications of Serial Converter Unit (JZDP-D005--E)
Note 1. Do not use empty pins.
2. The external encoder (analog 1Vp-p output, D-sub 15-pin) by Renishaw Inc. can be directly connected. How-
ever, the BID and DIR signals are not connected.
3. Use the external encoder end connector to change the home position specifications of the external encoder.
Serial converter unit
JZDP-D005--E
External encoder
by Renishaw Inc.
CN12 CN1 CN2
D-sub 15-pin connector
JZSP-CLP70--E
SERVOPACK with
option module for
fully-closed loop
control
82±0.3
65±0.3
72
90
1.5
3
14.35±0.4
24.99±0.4
22.5
300±30
4×M5 tapped holes, depth 10
2×#4-40 UNC tapped holes
SERVOPACK end
Serial data output connector (
CN1)
Nameplate
4×φ4.2 holes
2 - φ 4.2holes
Units: mm
10
52±0.3
60
External encoder end
Analog signal input
connector (CN2)
Pin No. Signal
1 +5V
S-phase output
Empty
Empty
Empty
0V
/S-phase output
Empty
Empty
Shield
2
3
4
5
6
7
8
9
Case
Pin No. Signal
1 /cos input (V1-)
2
3 Ref input (V0+)
/sin input (V2-)
4 +5V
5 5Vs
6
Empty7
8
cos input (V1+)9
sin input (V2+)10
/Ref input (V0-)11
Empty
12 0V
13
14
Inner (0V)15
0Vs
Empty
Empty
ShieldCase
1
8
9
6
1
5
9
15
CN1 CN2
SERVOPACK does not have
the function to process Vq
signals.
17-series connector
model:
17LE-13090-27-FA
(socket) by DDK Ltd.
SERVOPACK end
Serial data output
External encoder end
Analog signal input
17-series connector
model:
17JE-13150-02 (D8C)A-CG
(socket) by DDK Ltd.

Table of Contents

Related product manuals