EasyManua.ls Logo

YASKAWA V1000

YASKAWA V1000
231 pages
To Next Page IconTo Next Page
To Next Page IconTo Next Page
To Previous Page IconTo Previous Page
To Previous Page IconTo Previous Page
Loading...
Drive
CIMR-Vo
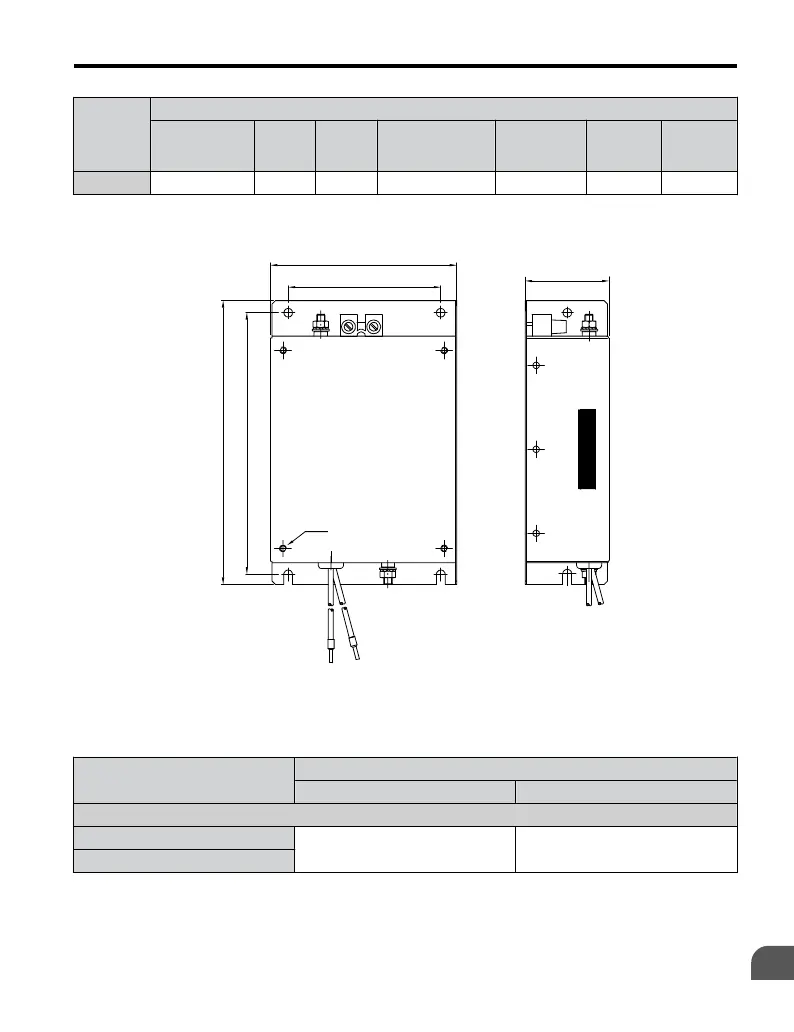
Filter Data (Manufacturer: Schaffner)
Type
Rated
Current
(A)
Weight
(lb)
Dimensions
[W x L x H] (in)
Mounting
Dimensions
[Y x X] (in)
Drive
Mounting
Screw A
Filter
Mounting
Screw
4A0038 FS23639-50-07 50 6.0 6.9 x 13.4 x 2.6 5.1 x 12.8 M5 M6
Note:
EMC filters for models CIMR-VoBA0018 and 2A0030 through 0069 are in compliance with
IEC61800–3, Category 2. All other models comply with Category 1.
H
X
L
W
Y
LINE
A
PE
LOAD
Figure C.4 EMC Filter Dimensions
n
DC Link Chokes for EN 61000-3-2 Compliance
Drive Model
CIMR-Vo
DC Link Choke
Model Rating
200V Three-Phase Units
2A0004
UZDA-B
5.4 A
8 mH
2A0006
C.1 European Standards
YASKAWA ELECTRIC TOEP C710606 47A YASKAWA AC Drive – V1000 Quick Start Guide
209
C
Standards Compliance

Table of Contents

Other manuals for YASKAWA V1000

Related product manuals