EasyManua.ls Logo

ABB ACS800-104

ABB ACS800-104
210 pages
To Next Page IconTo Next Page
To Next Page IconTo Next Page
To Previous Page IconTo Previous Page
To Previous Page IconTo Previous Page
Loading...
129
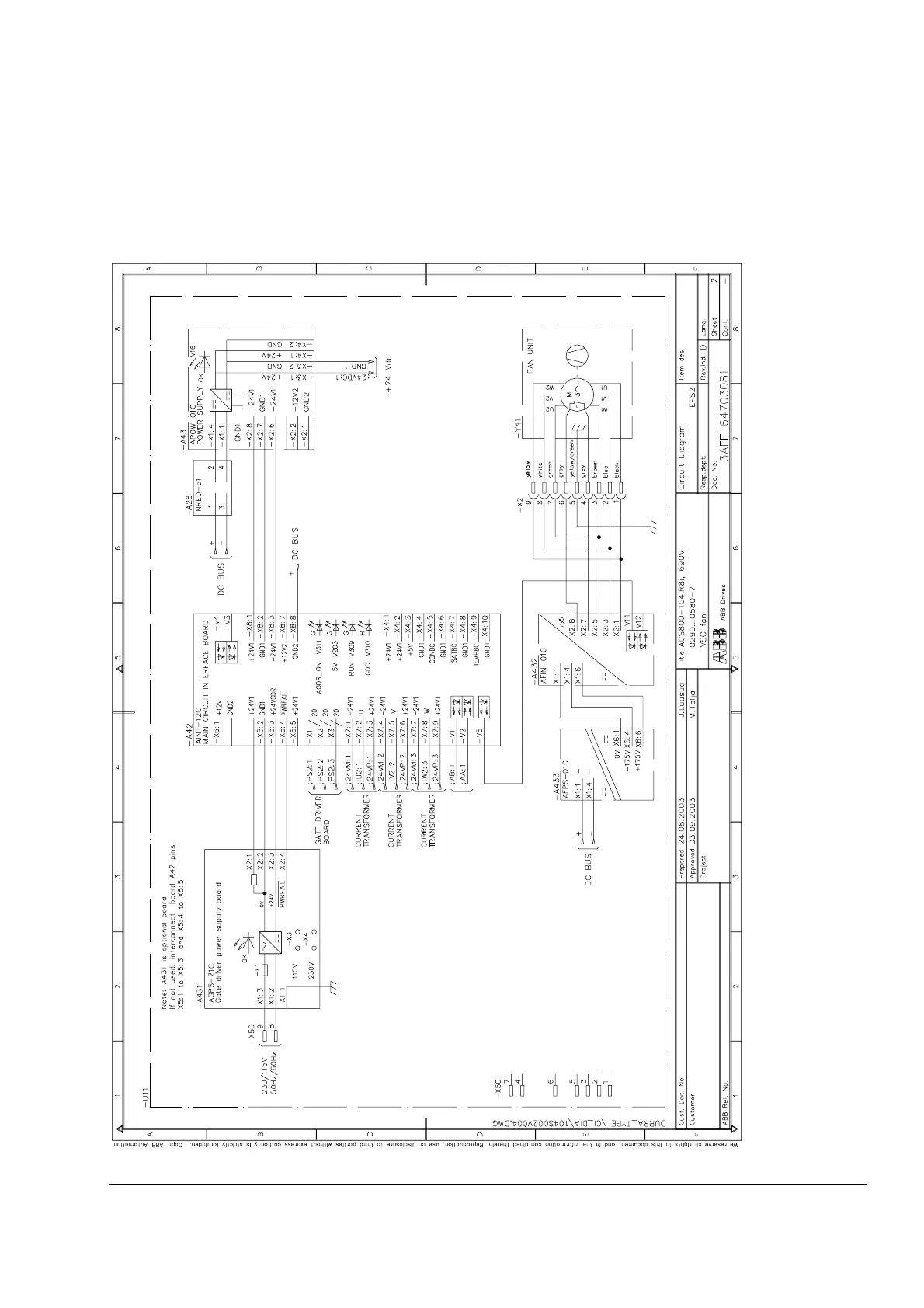
Frame R8i and multiples
R8i – Internal diagram
The diagram depicts an R8i module with optional speed-controlled fan.

Table of Contents

Other manuals for ABB ACS800-104

Related product manuals