EasyManua.ls Logo

ABB ACS880-107 Series

ABB ACS880-107 Series
202 pages
To Next Page IconTo Next Page
To Next Page IconTo Next Page
To Previous Page IconTo Previous Page
To Previous Page IconTo Previous Page
Loading...
Type
U2, V2, W2, PE (terminal block X1)
Frame
size
Tightening torqueMax. wire size
lbf·inN·mAWGmm
2
Detachable
screw terminal
block
6.2 7.10.7 0.810
6 (stranded)
R1i, R2i
10 (solid)
15…161.7 1.8616R3i, R5i
Screw terminal
block
53…716…81/050 (copper cable)
R4i
133152/0
70 (aluminum
cable)
(option +H371)
Output terminals
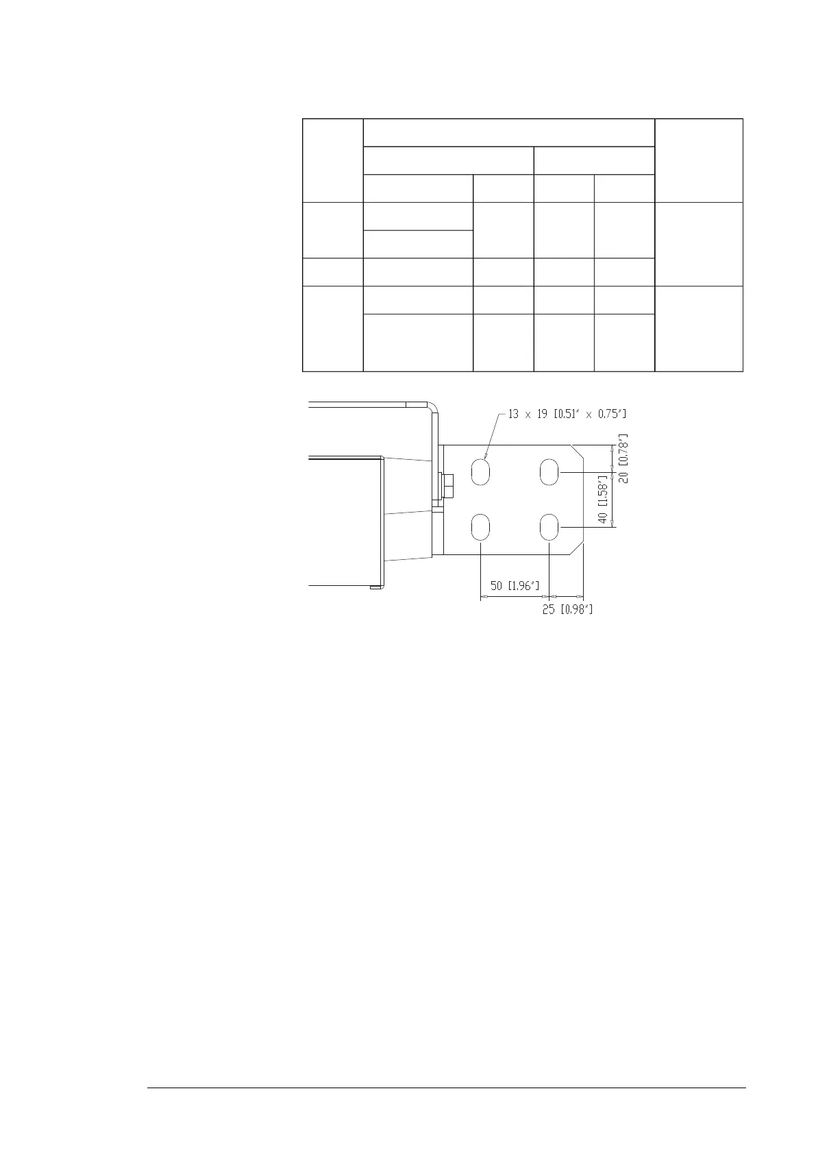
(Frames R1i to R5i)
Output terminals
(Frames R6i and R7i)
Side view
Screw size: M12 or ½″. Tightening torque: 70 N·m (52 lbf·ft)
Busbar material: Tin-plated copper
Technical data 145

Table of Contents

Related product manuals