EasyManua.ls Logo

ABB ACS880-107 Series

ABB ACS880-107 Series
202 pages
To Next Page IconTo Next Page
To Next Page IconTo Next Page
To Previous Page IconTo Previous Page
To Previous Page IconTo Previous Page
Loading...
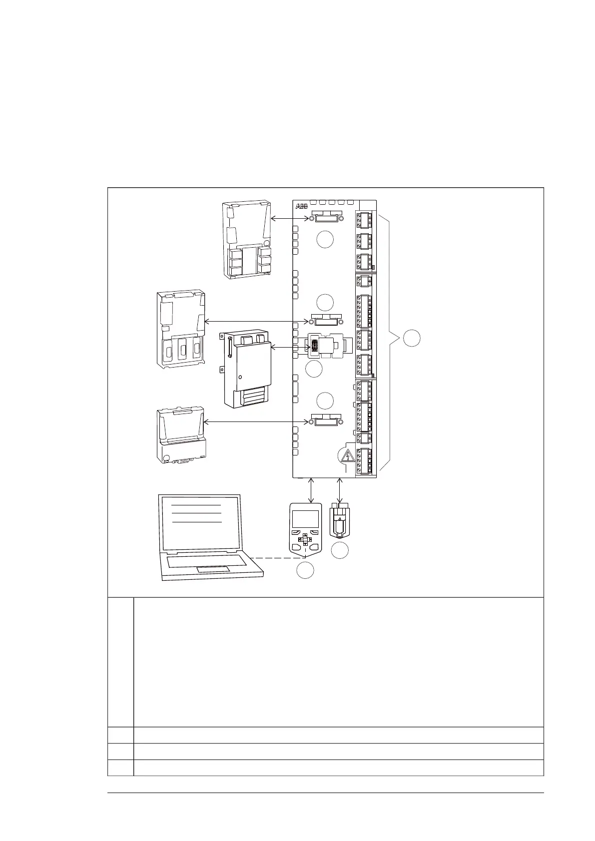
Control interfaces
Overview of control connections of the ZCU control unit
The diagram shows the control connections and interfaces of the ZCU-14 control unit.
It is used with module frame sizes R1i…R7i. Frame R5i modules employ a type ZCU-12
unit which has a different layout but the same connectivity as the ZCU-14.
FXX
FXX
FSO
FXXX
SLOT 1
SLOT 2
SLOT 3
X12
SAFETY
OPTION
X208
FAN2
X210
FAN1
X209
AIR IN
TEMP
X13
CONTROL PANEL
X205
MEMORY UNIT
X
R
O
2
X
R
O
3
X
P
O
W
J1J2
X
A
I
X
A
O
X
D
2
D
X
S
T
O
X
D
I
X
D
I
O
J6
X
D
2
4
X
R
O
1
J3
CLOSE
1
2
3
4
5
6
7
Option modules can be inserted into slots 1, 2 and 3 as follows:1
SlotsModules
1, 2, 3
Analog and digital I/O extension modules
1, 2, 3Feedback interface modules
1, 2, 3Fieldbus communication modules
2 (X12)FSO-xx safety functions module
When installed into slot 3 of a ZCU-14 control unit, the module will extend over the edge. We recommend you use
slot 1 or 2 instead whenever possible.
2
3
Memory unit.4
Connector for FSO-xx safety functions module (X12). The module reserves slot 2 when connected.5
I/O terminal blocks. See chapter Control unit.6
Hardware description 31

Table of Contents

Related product manuals