EasyManua.ls Logo

ABB ACS880-107 Series

ABB ACS880-107 Series
202 pages
To Next Page IconTo Next Page
To Next Page IconTo Next Page
To Previous Page IconTo Previous Page
To Previous Page IconTo Previous Page
Loading...
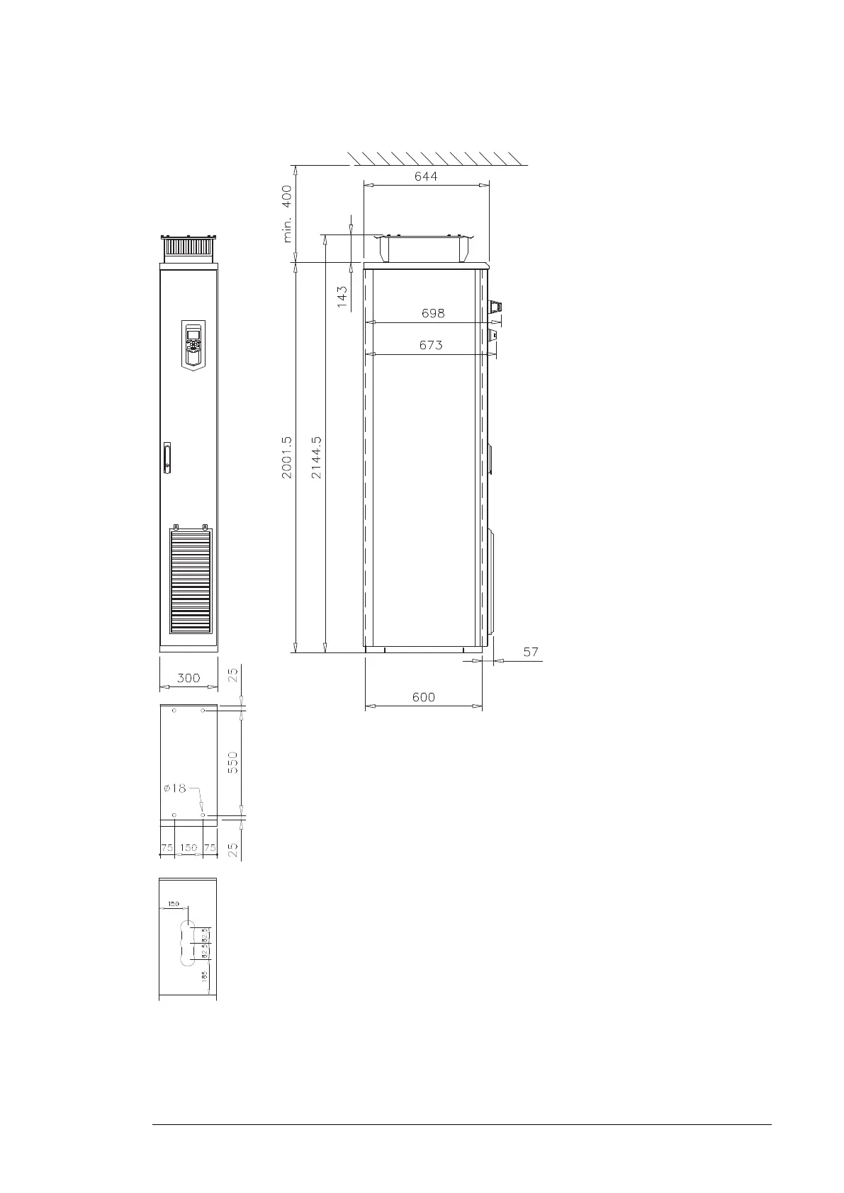
Dimension drawing, drive control unit (DCU) (300 mm)
Dimensions and weights 167

Table of Contents

Related product manuals