EasyManua.ls Logo

ABB ACS880-107 Series

ABB ACS880-107 Series
202 pages
To Next Page IconTo Next Page
To Next Page IconTo Next Page
To Previous Page IconTo Previous Page
To Previous Page IconTo Previous Page
Loading...
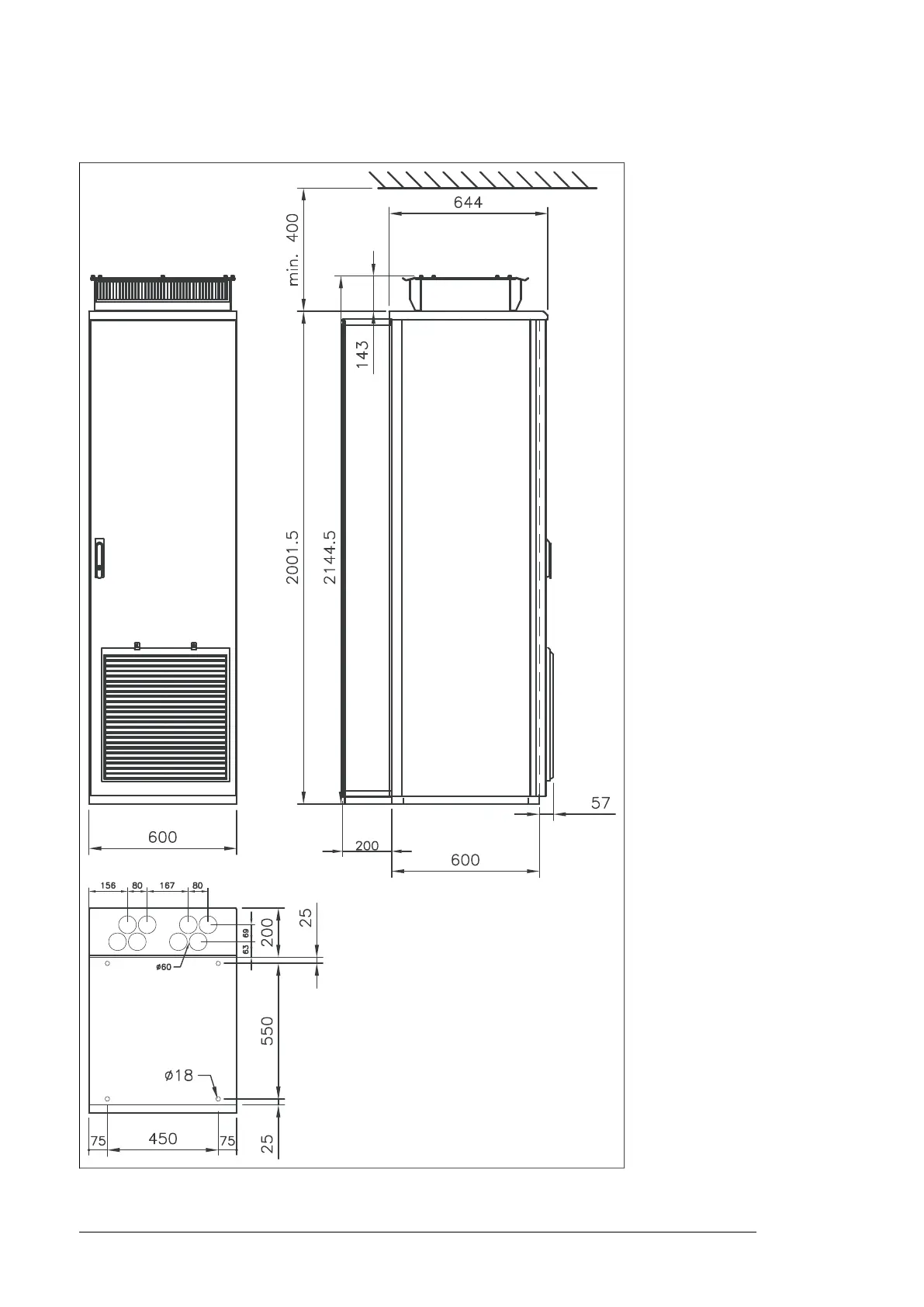
Dimension drawing, 2×R8i (without +C128 or +H353), top cable exit
164 Dimensions and weights

Table of Contents

Related product manuals