EasyManua.ls Logo

ABB ACS880-107 Series

ABB ACS880-107 Series
202 pages
To Next Page IconTo Next Page
To Next Page IconTo Next Page
To Previous Page IconTo Previous Page
To Previous Page IconTo Previous Page
Loading...
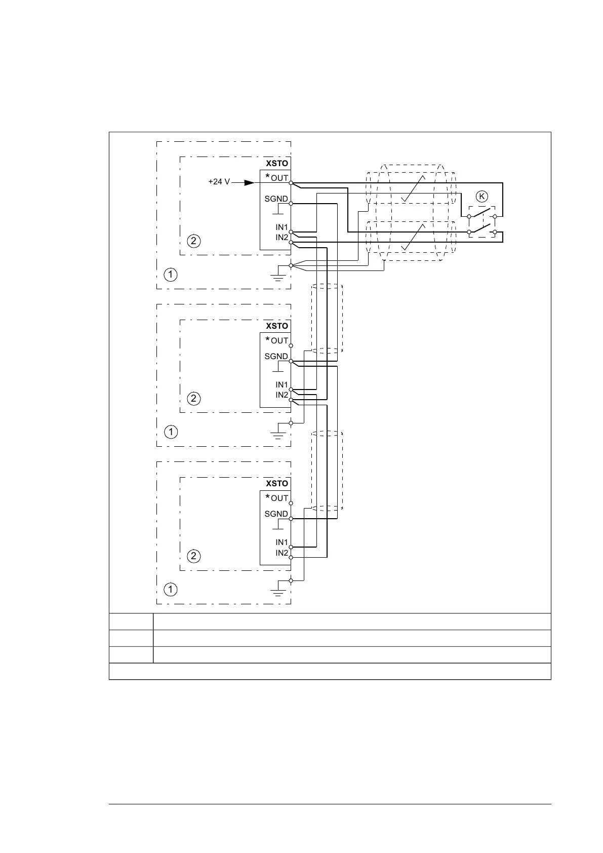
Multiple drives
Internal power supply
+24 V
OUT
SGND
IN1
IN2
OUT
SGND
IN1
IN2
OUT
SGND
IN1
IN2
K
XSTO
XSTO
XSTO
1
1
1
2
2
2
*
*
*
Drive/Inverter unit1
Control unit2
Activation switchK
* Terminal designation may vary depending on drive/inverter unit type
The Safe torque off function 189

Table of Contents

Related product manuals