EasyManua.ls Logo

ABB ACS880-107 Series

ABB ACS880-107 Series
202 pages
To Next Page IconTo Next Page
To Next Page IconTo Next Page
To Previous Page IconTo Previous Page
To Previous Page IconTo Previous Page
Loading...
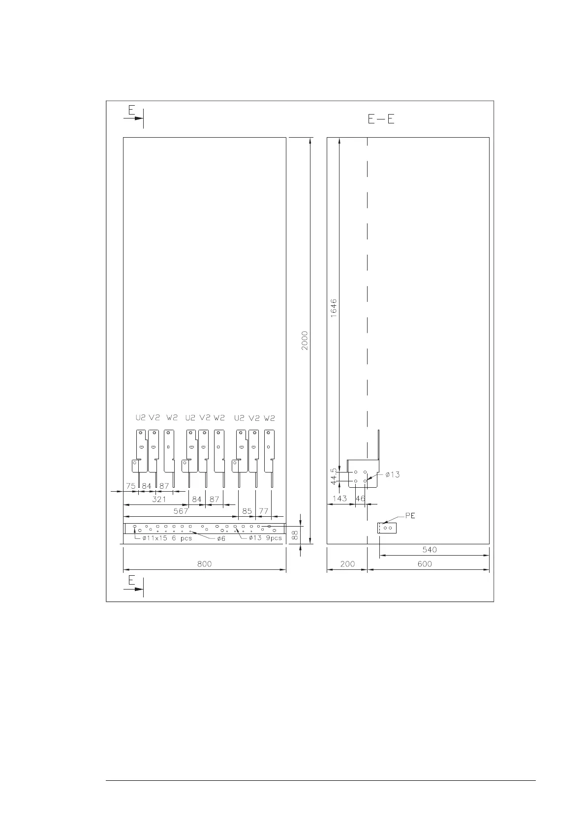
Inverter module cubicle with three R8i modules, top cable exit
224 Dimensions
Inverter module cubicle with three R8i modules, top cable exit
Sine filter (+E206) cubicle, 400 mm, bottom cable exit
xxxxx ADG2 ei konffaa tällaista.
Dimensions and weights 173

Table of Contents

Related product manuals