EasyManua.ls Logo

ABB ACS880-107 Series

ABB ACS880-107 Series
202 pages
To Next Page IconTo Next Page
To Next Page IconTo Next Page
To Previous Page IconTo Previous Page
To Previous Page IconTo Previous Page
Loading...
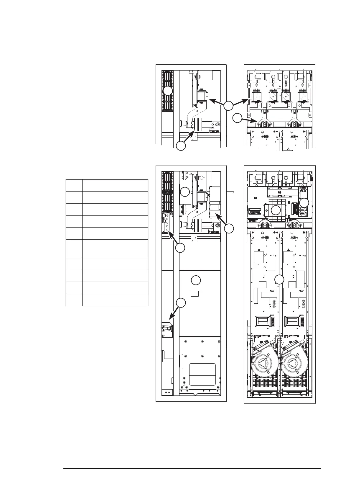
Front viewSide view
4
2
3
4
Without DC switch-disconnector
1
1
5
6
7
7
8
9
With DC switch-disconnector and
charging circuit
ExplanationItem
Inverter modules1
DC bus2
DC fuses3
Common mode filters4
DC switch-disconnector
[Q2]
5
Charging resistors6
Charging switch [Q10]7
Charging controller8
AC quick connector9
Hardware description 29

Table of Contents

Related product manuals