EasyManua.ls Logo

Berthold LB 442 - Mechanical Drawings

Default Icon
158 pages
Print Icon
To Next Page IconTo Next Page
To Next Page IconTo Next Page
To Previous Page IconTo Previous Page
To Previous Page IconTo Previous Page
Loading...
Section 13 Appendix
133
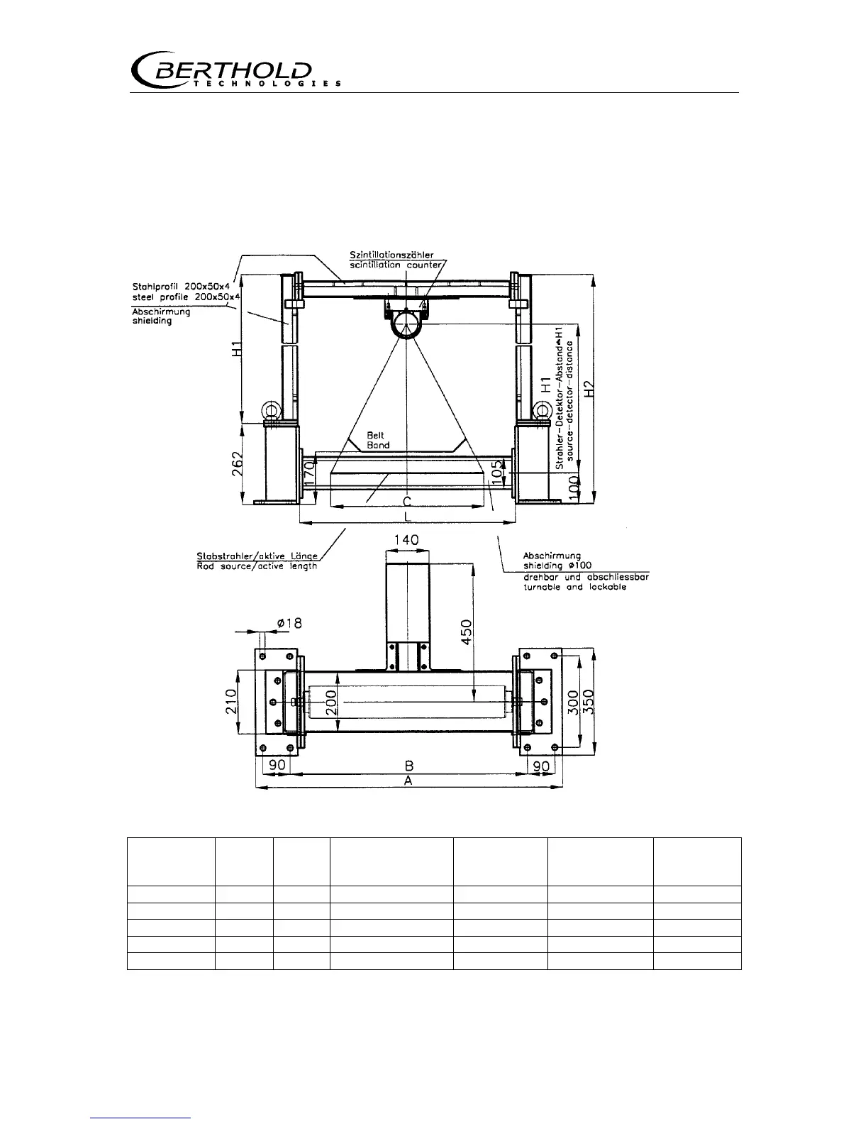
13.4 Mechanical Drawings
13.4.1 Measuring Frame with Rod Source and Point Detector
All dimensions in mm
C
Belt width
mm
A B H1
Side length
H2
Total height
L
Diameter
inside
Weight
kg
500 1006 776 700 962 706 215
800 1306 1076 700 962 1006 250
1000 1506 1276 1000 1262 1206 350
1200 1706 1476 1000 1262 1406 400
1600 2106 1876 1000 1262 1806 510

Table of Contents

Related product manuals