EasyManua.ls Logo

Berthold LB 442 - Measuring Frame Divided

Default Icon
158 pages
Print Icon
To Next Page IconTo Next Page
To Next Page IconTo Next Page
To Previous Page IconTo Previous Page
To Previous Page IconTo Previous Page
Loading...
Section 13 Appendix
135
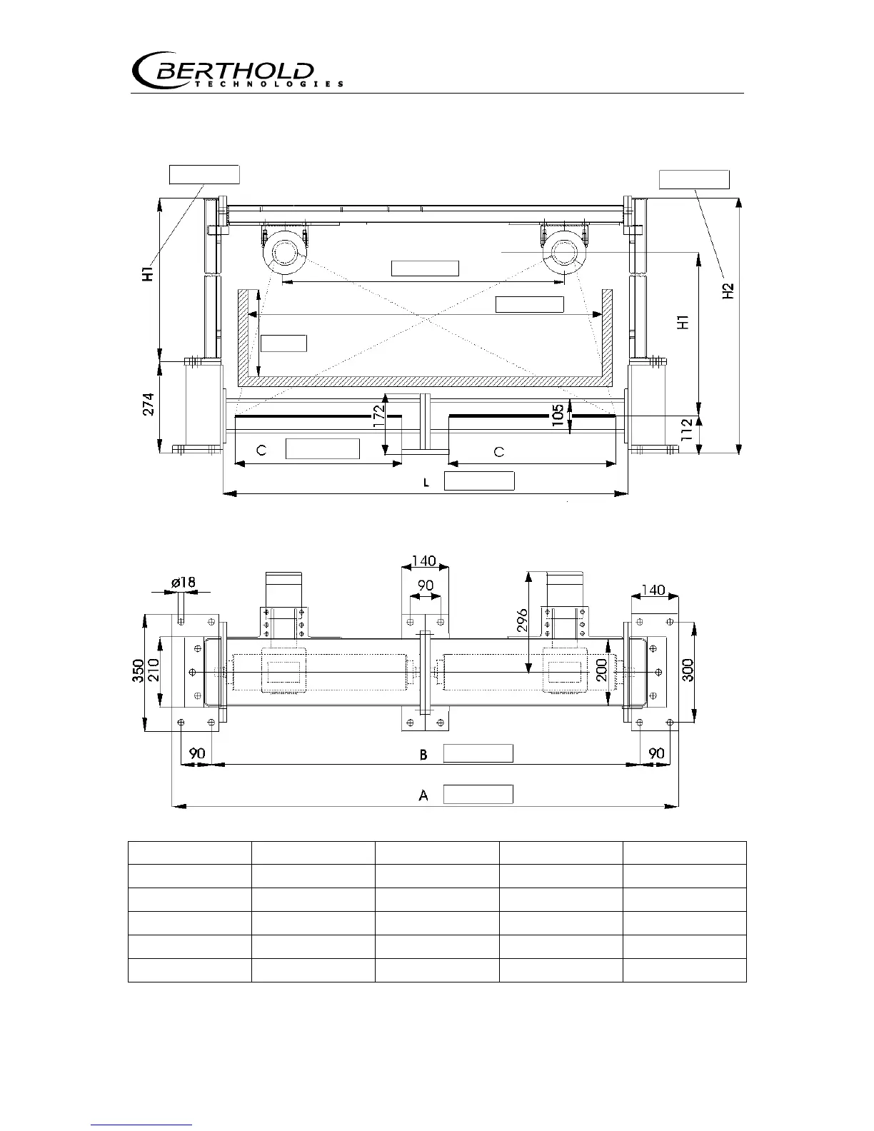
13.4.3 Measuring Frame Divided
Belt width A B L ca. kg
1800 2496 1088 2196 215
2000 2696 1188 2396 230
2200 2896 1288 2596 245
2400 3096 1388 2796 260
2800 3496 1588 3196 290

Table of Contents

Related product manuals