EasyManua.ls Logo

Cessna 150M - Page 289

Cessna 150M
358 pages
Print Icon
To Next Page IconTo Next Page
To Next Page IconTo Next Page
To Previous Page IconTo Previous Page
To Previous Page IconTo Previous Page
Loading...
N
o
I
C1I
..
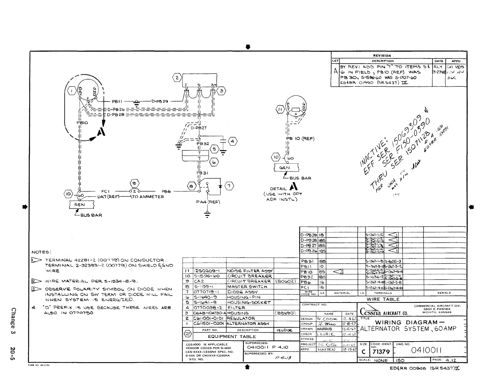
NOTE5:
[;:::>
TERMI"-IAL
42.2.81-2.
(00T1~~
Ot-..)
COt-JDUC.TOR.
TERMI"-l~L
2.-3'2:'~:'I-2.
(OO-71~)
0"-1
'=:>I-\IEl.D
~~ND
WI
R.;:'
jg:::>
WIRE.
MATEI2.IAL.
PE.R..
5-IS3<l-8-"!l.
Il:> OeF.:>E.RVE.
PCI...~RIT\(
S'<M~CI...
Ot-J
DIODE
-Nf4EN
It-..)""TALI...IN~
Ot-..)
Sw
TERM
OR
DIODE..
-NIl.\...
FAIL.
'N1-IE.t-..)
S'<STE."-'\
lOS
E..t-..)EI?~I'-E..O.
4.
'D'
PREl=IX
lOS
l..l'ilE..
BE.C~\.lSE..
TI-IE.'SE.
NIH:""
AI?E
Al.50
IN
0,70")';:,0
REVISION
LET
DESCRIPTION
DATE
APPO
"
~~
R.E..\I; I>-DD
PIN
'\.('
1"0
ITEM-:'
'"
\
1-'1
""
IN
FIE-L\)
,
Pi!.
10
CRE-F)
W/>..":::,
RL'(
Gkl
MD'5
3-27~
f
,.-,;!
;II'"
Dr..<:..
I I
1'2':>0'2.09-1
10
S-1596-COO
'"
CA2.
B
5-1159-1
i"
II
I
,=--=-I
"
I I
PB
10
(R.EF)
!]
@-{eoo
~
~BAR
DETAIL
J.\
(USE.
WI"TH
OPT
~D'"
1>,)';:,,1..)
D-P£\?3
18
O-PG26
18S
D-P\3Z1 165
0-1=\321<>
185
1"8",1
18'5
PSI
I
10
NOI':oE.
I=ILieR
A"::F.!(
PBIO
8S
CIRCUli
5REA";'O:R.
PB3Z
185
CIRCU',
e,RE
....
l<.iOR
\BO(oO"2.)
PBID
ICC
M
....
'ilTE.R
SI.'h'CI-'.
FCI
IrQ
PI:!,
30,
5-1596-IDO
WAS
5-1707-"'"
E.D~R'"
OI9'W
(Sf<.
5431)
TI:-
f-,-13bl-4-1 -1:'0-1-8
MATERIAL
LG
TERMINALS
SERIALS
7
077071'?J
I
0100
..
A'il'il'<
WIRE
GA
CODE
NO.
HOU51>.)C>
PIN
NAME
COMMERCIAL
AIRCRAFT
OIV.
5800
E.
PAWNEE
WICHITA,
KANSAS
DESIGN
IN
COOK..
2.
C(oIIOOI-oIOI
RE",ULAiOR
i"I~(,7
TITLE
1---""",
'---+C"'-'(O"'-',c.:.,s:::.O:::.I.:.._..;O::.:,2.-=O-'-I+
....
:..:.L.:=-:r~E=-R=Nc..:A..c:r=-O'-CR'--A:.-,-."..,.,...,,-'(-+------4==:::.:....+-;~=-=----J..:;12:..._18~-<:..::7;.r-
WI
R
IN
G D I A G
RA
M -
GROUP
JT.W.....u
DRAWN
HARRIS
CHECK
LAURIE..
~-+~_::._::...c:.P~A::R::cT~..::N~O~.~~t~~~::.D~:.E:.:.S:::C:::.::R~,~P::.cT~,O~N~~~~~t-v:!.:I1.-;>J-;o~oe.!:-=--=-i~;~?~t~~;~~~-=-1;:;\-;-2-;-.:::I'-~-:7:1.;::;7{AL
T E R
NA
TOR
S Y
STEM
,
50
AMP
@
EQUIPMENT
TABLE
121~b7
CES·IOOO
IS
APPLICABLE
VENDOR
CODES
PER
5-1400
CES-XXXX"CESSNA
SPEC.
NO.
S-XXX
OR
CMXXXX"'CESSNA
STD.
NO.
SUPERSEDES:
0410011
P
4.10
SUPERSEDED
BY:
*
STRESS
'.).
/
PROJECT
f).C,
<~
1]_2U-bl
11-
/5·'7
SIZE
rODE
IDENT.
iJWG
NO.
NO.
0410011
C 71379
SCALE:
NONE
ISO
I
PAGE:
4.12.
ED~RR
009<:le
(5R
543(7)JZ:
..
-
-

Table of Contents

Related product manuals