EasyManua.ls Logo

Cornelius pbd175 - Wiring Diagrams; Internal and External EBOX Wiring

Cornelius pbd175
70 pages
Print Icon
To Next Page IconTo Next Page
To Next Page IconTo Next Page
To Previous Page IconTo Previous Page
To Previous Page IconTo Previous Page
Loading...
PBD175 (Spire 3.0) Service Manual
© 2015-2016, Cornelius Inc. - 59 - Publication Number: 620062609SER
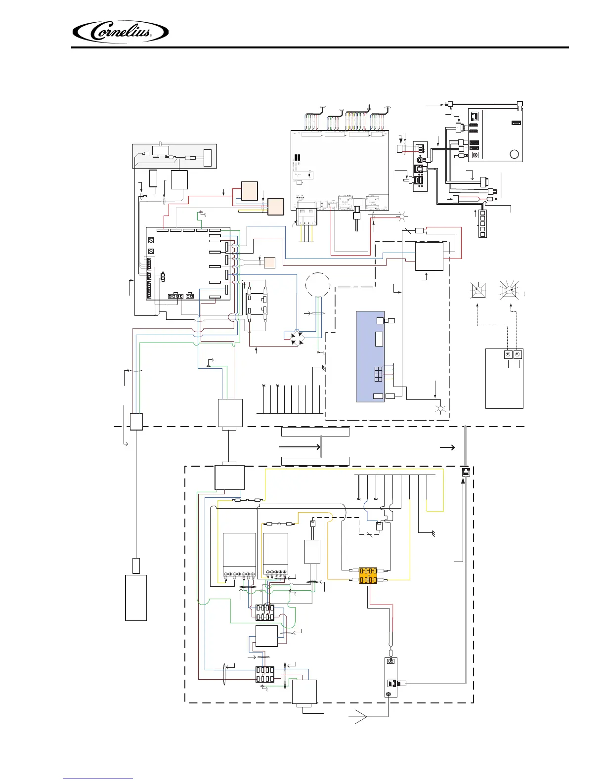
WIRING DIAGRAMS
PEPSI SPIRE 2.0 / 3.0 EXTERNAL EBOX
PEPSI SPIRE 3.0 INTERNAL EBOX
AC Inlet
620062236-001
AC Outlet
620062236-001
30VDC
SMPS
620057649
(015)
L
N
G
V-
V-
+V
+V
19VDC SMPS
620057649
(A01)
L1 L2
LINE
EMI FILTER
620307301
LOAD
L1 L2
12VDC SMPS
620057649
(004)
L
N
G
-V
+V
AC
IN
AC OUT
to ED175
WHT
BLK
ANT
Ethernet
DC In
9-32VDC
BLK(-)
RED(+)
620057861-211
P9 +30VDC
P8 AC Return
P3
P1
3A
12V
L2 IN
L1 IN
EARTH IN
L2 BALST
L1 BALST
L2 HTR
L1 HTR
L2 XFR
L1 XFR
CM GND
C MTR L2
C MTR
AMTR
EARTH
AMTR L2 AMTR L1
OFF TIME
ON TIME
J7 J3 J4
J11
J10
AGITATOR PCBA
To
Heater
Note 3
BLK
BLK
30794
BLK
RED
WH
Carbonator
Tank
Note 6
560005109-001
Door Panel
COM
NC
NO
Ice Lid
Switch
Ice Chute
Switch
BLK
BLK
620316457-001
To
Agitator
Motor
Motor
Capacitor
30774
RED
WH
SSR
COIL
P1
+19VDC P2
P3
12VDC Return P4
19VDC Return P5
30VDC Return P6
+12VDC P7
30VDC P9
AC Return P8
+
-
Rotary
Solenoid
ORG (1)
RED (5)
GRN (6)
BLU (7)
Cove
Lighting
620059555-005
+30VDC
-30VDC
-12VDC
+12VDC
From CPC
Power In
P7 +12VDC
P6 30VDC Return
P5 19VDC Return
P4 12VDC Return
P2 +19VDC
CPC
Power In
CPC
Power Out
620061915-A01
L N
+-
+
-
+
-
+
-
+
-
RED (1)
BLK (4)
LED
Down
Lighting
620057864-001
Intel NUC
PN: 620059692-300
ON/
OFF
Ethernet
HDMI
USB
DC IN
Front
USB
Back Panel
B
From
MFV
USB
BLU (4)
(
)
)
(
(
BLK
GRN
(3)
(
3
)
(
(
(
3
3
3
)
)
)
BLK
WHT
(2)
(
(
(
2
2
2
)
)
)
BLK
RED
(1)
(
(
(
1
1
1
)
)
)
BLK
To Water
Bank
RED (16)
RED
RED
(
(
16)
16)
WHT (8)
(
(
)
)
(
(
ORG (7)
OR
(
(
7
)
)
RG
(
(
BLK
BRN (6)
BR
6
)
)
)
RN
(
(
(
BLK
BLU (4)
BL
4
)
)
)
LU
(
(
(
4
BLK
GRN (3)
GR
)
)
3)
RN
(
(
(
BLK
WHT (2)
W
(
(
(
)
)
2)
HT
(
(
(
BLK
RED (1)
RED
(
(
(
1
)
)
)
BLK
K
K
BL
K
YLW (5)
BLU
BLU
(
(
4
4
)
)
YLW
(
(
)
5)
BLK
To Brand
Bank 1
To Brand
Bank 2
BLU (4)
(
)
)
(
(
BLK
GRN
(3)
(
(
(
3
3
3
)
)
)
BLK
WHT
(2)
(
(
2
)
)
(
(
(
2
2
2
)
)
)
BLK
RED
(1)
To Flavor
Bank
PANEL
MOUNT
ETHERNET
620062449-001
B
A
HDMI
HDMI
PORT 3
PORT 4
PORT 1
PORT 2
PORT 0
7 32 GND
BLK
RED
620062455
A
To LX3
USB
620057826-007
620057826-032
A
ADA Keypad
620057647 (P13)
To MFV
J15
BLK
RED
620061964-A03
To Touch Screen
12VDC Power
HDMI (Video & Sound)
USB Touch Sensor
5A
CPC
CABLE
ASSY
Ethernet
Cable
Length
Varies
FROM
EBOX
TO
DISPENSER
Carb Deck
Strain
Relief
MFV PCBA
620057808-600
IEC Inlet
4345
.
COVE
LIGHTING
OPTIONAL
24VDC
620057649
(A01)
RED
BLUE
.
.
WH
ORG
BLK
620062452
620316456
620062453-002
620062453-003
620062453-001
620062453-004
620062453-005
620062453-006
620062453-007
620059544-002
620057826-006
620057861-125
620057826-012
620057849-112
620057649-A01
33617
620062450
620062450
620059131
620063622
620059544-008
620059544-009
620059544-008
620059544-009
620059544-005
620059544-003
620059544-006
620049959-014
620049959-013
620059544-018
620057856-122
620061847-002
620064252
620062370
620058990-501
620058989-100
620058991-100
USB HUB
MODEM
620057646-001
2
620057851-0xx
2
BLU
(4)
()
(4)
(4)
(4)
(4)
BLK
GRN
(3)
()
(3)
(3)
(3)
(3)
BLK
WHT
(2)
(2)
(2)
(2)
BLK
RED
(1)
(
(
(
1
1
1
)
)
)
BLK
620058990-502
620048086-101(F1,F2)
620048086-101(S1,S2)
Agitator PCBA
should be in
this orientation
when adjusting
for ON and OFF
times
Timers Preset
To:
- 4 seconds ON
- 1 hour OFF
AGITATOR TIMING SETTINGS
Note 1: Agitator Motor Capacitor
For 120V, 60Hz: PN - 56002379
For 230V, 50Hz: PN - 620314324
Note 2: Agitator Motor PN’s :
For 120V, 60Hz: PN - 620314913
For 230V, 50Hz: PN - 620717110
Note 3: Agitator Motor Heater
For 120V, 60Hz: PN - 30794
For 230V, 50Hz: PN - 32826
Note 4: Carbonator Motor Deck
For 120V, 60Hz: PN - 620408124
For 230V, 50Hz: PN - 620408153
Note 5: Power Cords
North America: PN - 620049959 (013)
Note 6: Rotary Solenoid Assy
For 120V, 60Hz: PN - 32954
For 230V, 50Hz: PN - 33409
Note 7: HDMI cable can go to either HDMI port, but the HDMI port next
to the Ethernet Port is preferred
A
B
1 HR
1.5 HRS
OFF
TIME
ON
TIME
1 HR
1.5 HRS
2 HRS
2.5 HRS
3 HRS
10 MIN
30 MIN
.5
SEC
1
SEC
1.5
SEC
2
SEC
2.5
SEC
3 SEC
3.5
SEC
4 SEC
4.5
SEC
5 SEC
B
A
To USB HUB
PORT 0
620057826-014
To MFV
J14
To MFV
USB
See Note 7
LX3 PCBA 620064016
From
LX3
USB
m
m
Figure 103. 12-4 Wiring Diagram

Table of Contents

Related product manuals