EasyManua.ls Logo

Eaton 9155 N - Parallel Systems

Eaton 9155 N
99 pages
Print Icon
To Next Page IconTo Next Page
To Next Page IconTo Next Page
To Previous Page IconTo Previous Page
To Previous Page IconTo Previous Page
Loading...
66 8-10 kVA, 50/60 Hz (1-phase input) &
8-15 kVA, 50/60 Hz (3-phase input)
P-164000341
User's Guide Revision 1
10 Parallel systems
10.1 Overview
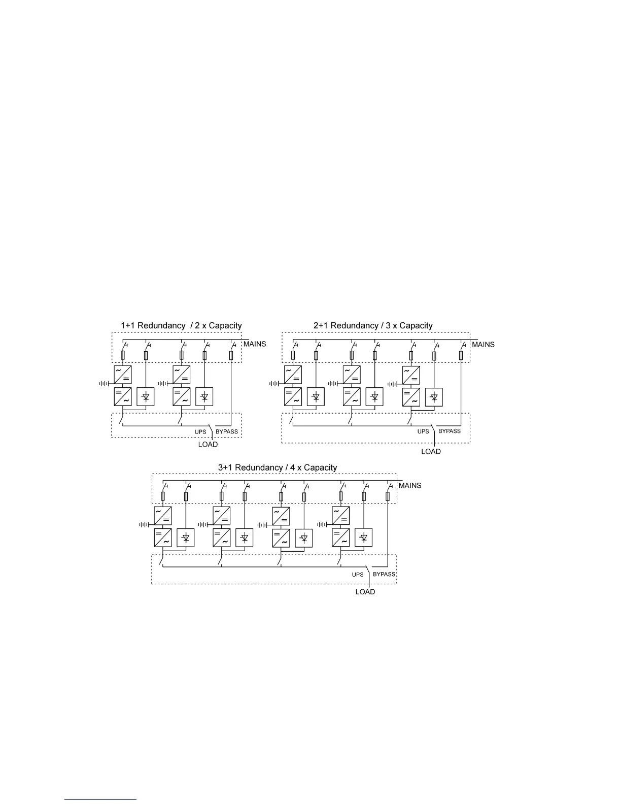
Parallel UPS configurations are recognised as either redundancy or capacity systems. The redundancy
system is used to improve the system reliability with N+1 redundant UPS module. The capacity
system for its part provides the maximum output power without focusing to the highest system
reliability.
A parameter selection is used to switch between the redundancy and capacity modes. It is important
to remember that the mode is affecting to the output power rating and overall system reliability.
UPS modules of the parallel system share equally the load with Hot Sync® technology. The parallel
outputs can be combined in a System Parallel Module or cabinet. It is the system component
containing the obligatory service switches. Customer’s low-voltage distribution panel can also be
used instead of the System Parallel Module. In the redundancy system, service switches enable the
maintenance or service on an UPS module. In the capacity system, one needs to have a common
system bypass switch to do the maintenance or service without safety hazards.
Figure 10-1: Parallel configurations with UPS modules
Field upgrading can be used to extend existing capacity/redundancy systems with UPS modules.
The upgrading must be carried out by service personnel from the manufacturer or from an agent
authorised by the manufacturer.

Table of Contents

Related product manuals