EasyManua.ls Logo

Ecoray HF-525Plus - Page 200

Ecoray HF-525Plus
233 pages
Print Icon
To Next Page IconTo Next Page
To Next Page IconTo Next Page
To Previous Page IconTo Previous Page
To Previous Page IconTo Previous Page
Loading...
200
Technical Publication Document NO: SYSTEM-007-ENG (Ver.1.1)
HF-525Plus Installation, Operation and Service Manual
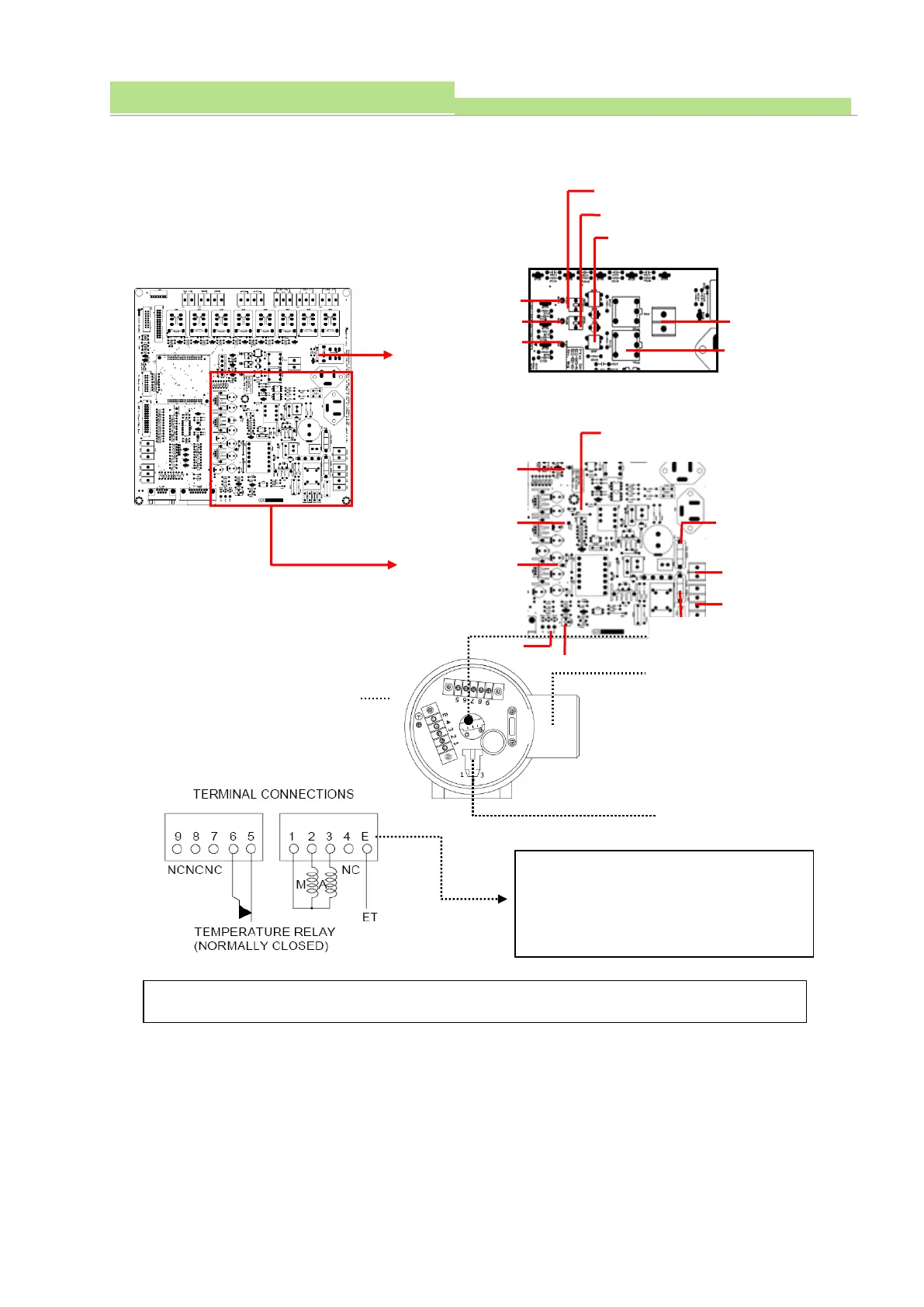
12.4.2 Tube Stator Circuit error (Check XR7-Mio Board)
1) Consist of part
2) Consist of Tube Stator
Test Point(TP109)
Test Point(TP110)
Variable Resistor(VR901)
LED(D906,911,912
)
Test Point(TP111)
Variable Resistor(VR902)
Fuse(F901)
Fuse(F701)
Connector(P702)
Connector(P901)
Variable Resistor(VR701)
Test Point(TP106)
Test Point(TP105)
Test Point(TP109)
Variable Resistor(VR702)
Diode(D707,709)
Connector(P706)
Transformer(T701,702)
Note! Never connect terminal 1 to terminal 5 or 6.
Tube Anode Socket Receptacle
Anode Stator Coil terminal
Anode Stator wiring terminal
M: Main wiring of X-ray tube stator.
A: Assistance wiring of X-ray tube stator.
NC: Not use
ET: Earth
Temperature Relay

Table of Contents

Related product manuals