EasyManua.ls Logo

Fronius Symo GEN24 10.0 - Wiring Diagram: Surge Protective Device (SPD)

Fronius Symo GEN24 10.0
192 pages
Print Icon
To Next Page IconTo Next Page
To Next Page IconTo Next Page
To Previous Page IconTo Previous Page
To Previous Page IconTo Previous Page
Loading...
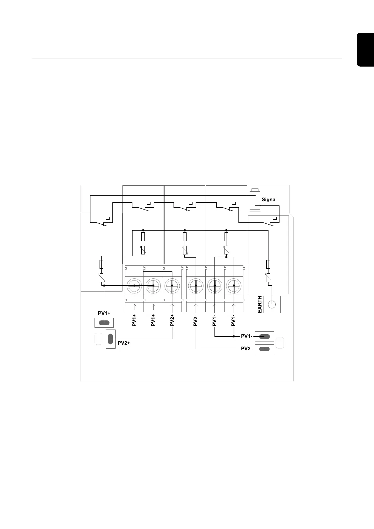
Wiring diagram - surge protective device SPD
Circuit Diagram
185
EN

Table of Contents

Related product manuals