EasyManua.ls Logo

Konica Minolta Network Printer - Page 41

Konica Minolta Network Printer
164 pages
Print Icon
To Next Page IconTo Next Page
To Next Page IconTo Next Page
To Previous Page IconTo Previous Page
To Previous Page IconTo Previous Page
Loading...
Machine Information 3-15
Machine Information
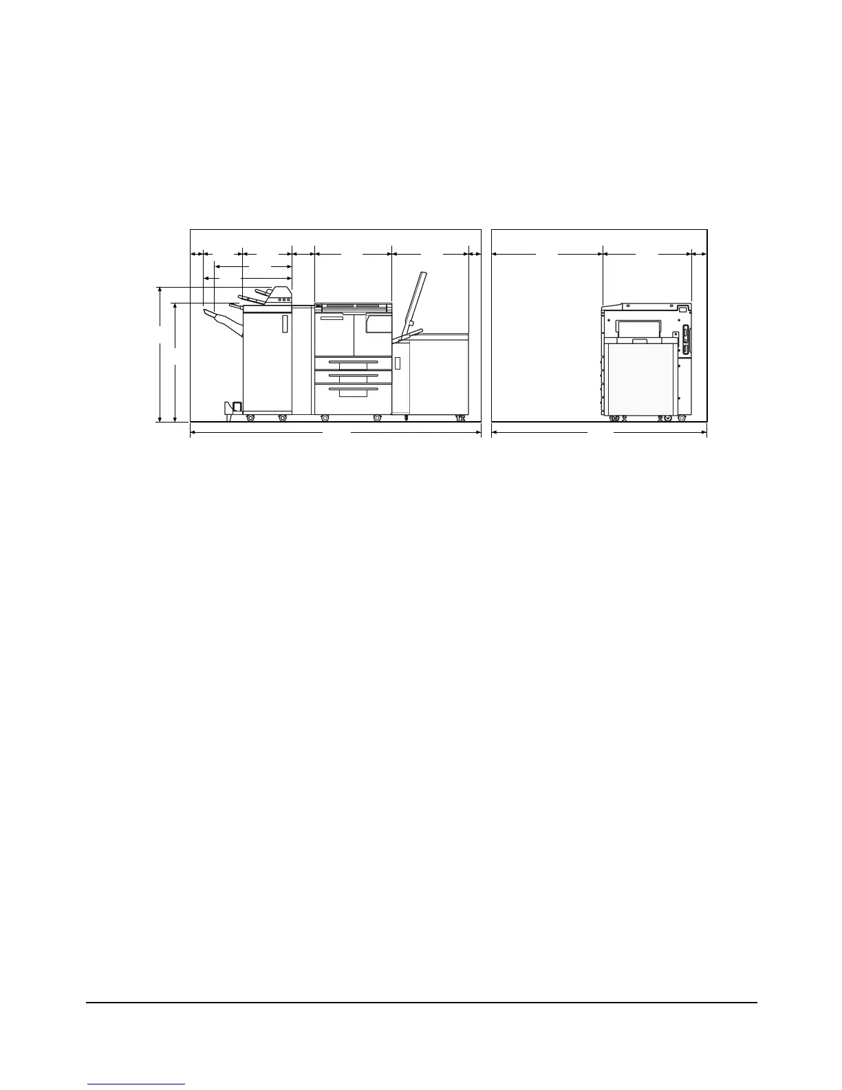
Site Requirements (continued)
NOTES:
1 Dimensions are in inches with millimeters included in parentheses.
2 The Finisher main tray of the FS-110/210 Finisher gradually goes down while printed material is output. DO
NOT allow any object to interfere with the operation of the tray on the left side of the Finisher, as interference
may cause damage to the Finisher.
6.9
(174)
Unit: inches (mm)
Force 65 + FS-210 Finisher + PZ-108 Punching / Z-Folding unit
+ PI-110 Cover sheet feeder + LT-412 Large capacity tray
37.4
(950)
72.0
(1830)
29.9
(760)
4.7
(120)
3.9
(100)
25.6
(650)
26.4
(670)
95.9
(2435)
39.0
(990)
44.9
(1140)
13.0
(331)
3.9
(100)
16.1
(410)
25.8
(656)
29.2
(741)

Table of Contents

Related product manuals