EasyManua.ls Logo

LTV 1150 - Page 217

Default Icon
341 pages
Print Icon
To Next Page IconTo Next Page
To Next Page IconTo Next Page
To Previous Page IconTo Previous Page
To Previous Page IconTo Previous Page
Loading...
p/n 18603-001, Rev. C LTV
®
1200/1150 Ventilator Service Manual Page 8-95
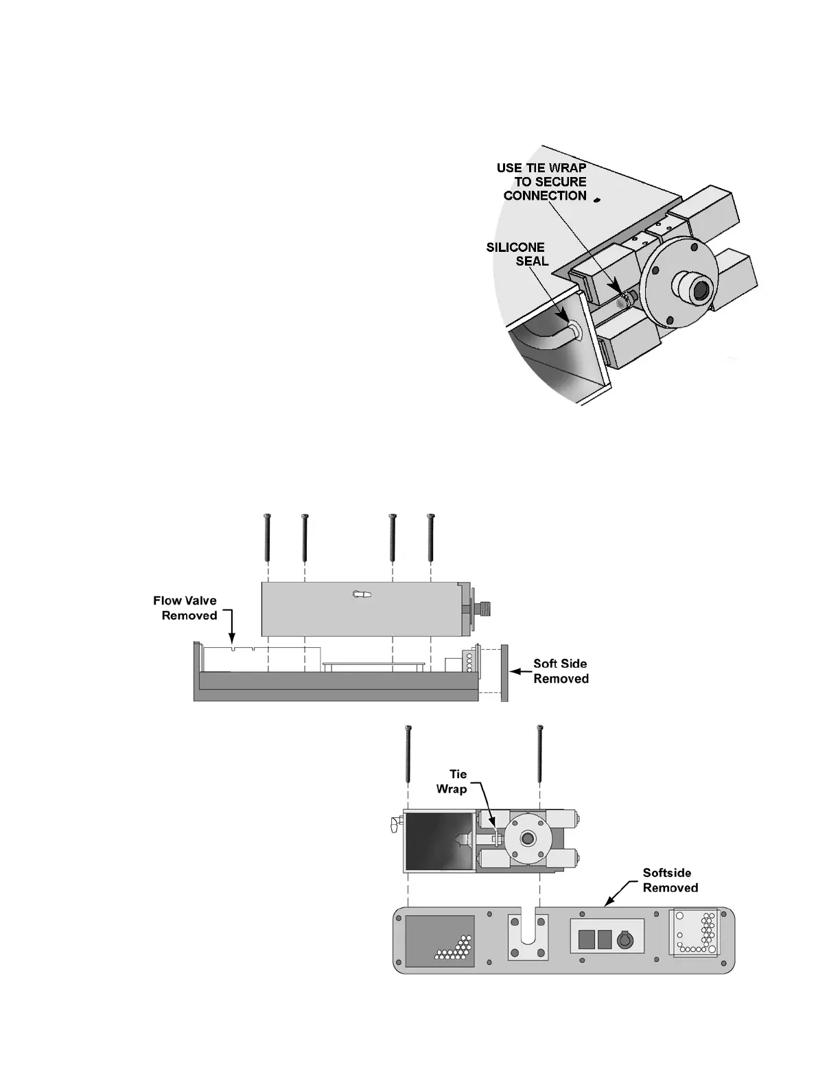
To connect the Turbine Manifold to a new Oxygen Blender/O
2
Block:
1) Handle the manifold and blender/O
2
Block
carefully so as not to break the silicone seal
around the oxygen tube entering the
manifold. If this seal is damaged, repair with
RTV silicone adhesive.
2) Cut the cable tie around the tube connection
to the oxygen blender/O
2
Block. Separate the
oxygen blender/O
2
Block and turbine
manifold.
3) Make a loose loop with a cable tie and slide it
over the tube that connects the turbine
manifold to the oxygen blender/O
2
Block.
Connect the tube to the barbed fitting on the
oxygen blender/O
2
Block.
4) Using a cable tie tool, tighten the cable tie to
2 tension. The cable tie tool should trim the
tail off close to the connector.
To install the Turbine Manifold and Oxygen Blender/O
2
Block:
1) Slide the turbine manifold and oxygen blender/O
2
Block into place. Be sure not to catch
any tubing or wiring under the manifold while it is being installed.
2) Replace the 4 black screws (P/N
10918B) into the turbine
manifold. Torque to 20 in-oz
(0.14 Nm).

Table of Contents

Related product manuals