EasyManua.ls Logo

MacDon M1 Series - Page 84

MacDon M1 Series
266 pages
Print Icon
To Next Page IconTo Next Page
To Next Page IconTo Next Page
To Previous Page IconTo Previous Page
To Previous Page IconTo Previous Page
Loading...
215620 72 Revision A

$
$
%
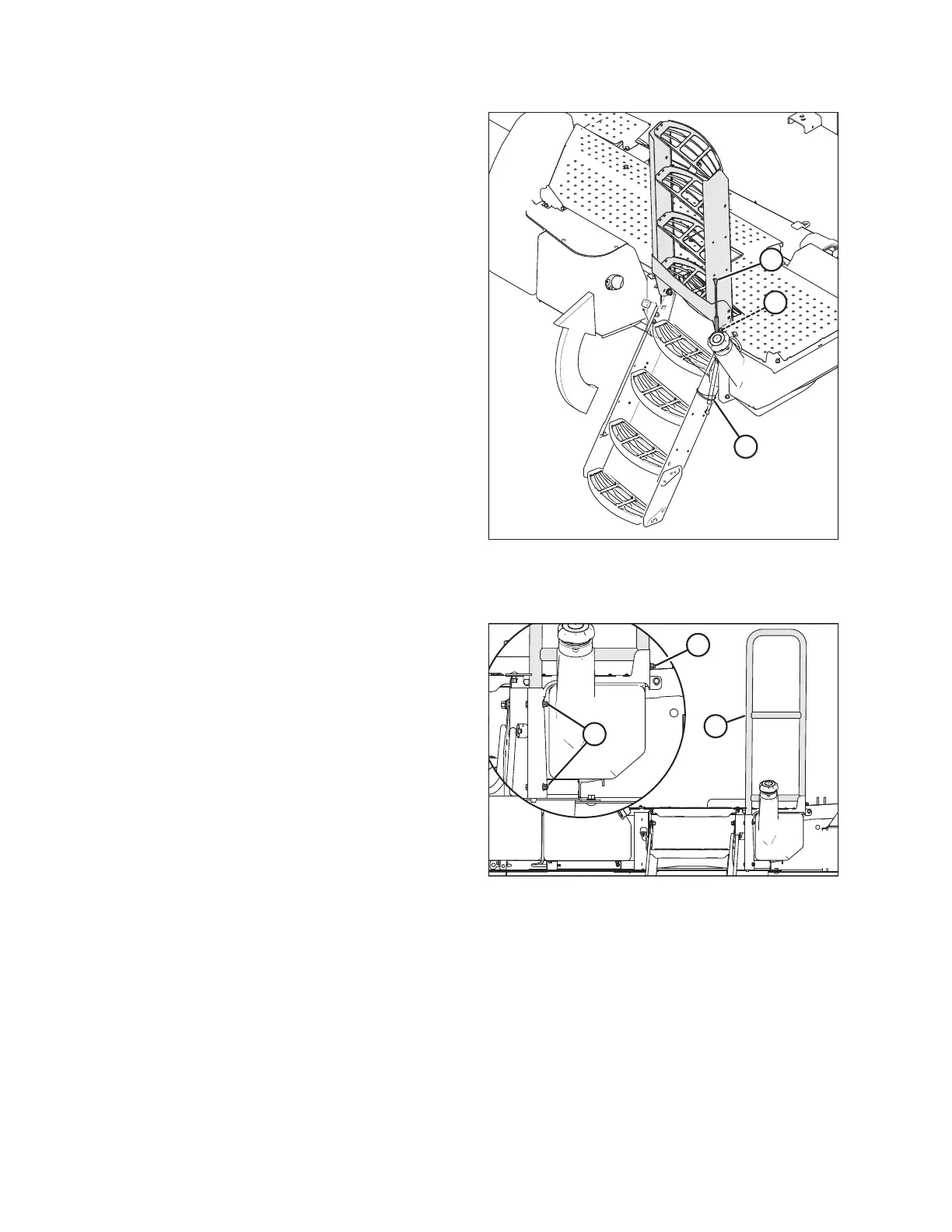
Figure 3.61: Platform Steps
21. Remove the shipping wire from shock (A) (lowered position
shown transparent in illustration at right).
22. Rotate the steps up. Ensure latch (B) engages to lock the
steps in place.
23. Rotate shock (A) up and connect to the steps with the
existing hardware.
Installing right platform handrails

$
%
&
Figure 3.62: Front Handrail Right Platform
24. Retrieve forward handrail (A). Remove and retain existing
hardware (three bolts and nuts).
25. Insert the handrail tube into the channel to the right of the
steps, and secure with existing hardware (B) and (C).
26. Torque the hardware to 35 Nm (26 lbf·ft).
ASSEMBLING WINDROWER

Table of Contents

Other manuals for MacDon M1 Series

Related product manuals