EasyManua.ls Logo

Mircom TX3 Series - 2.3 Heater and 2.4 Kiosk Installation

Mircom TX3 Series
161 pages
Print Icon
To Next Page IconTo Next Page
To Next Page IconTo Next Page
To Previous Page IconTo Previous Page
To Previous Page IconTo Previous Page
Loading...
Installation
TX3 Touch Screen Installation Manual 29
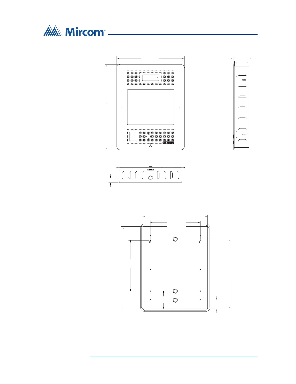
Figure 10. TX3-TOUCH-F15-B/C/D dimensions
Figure 11. TX3-TOUCH-F15-B/C/D mounting hole and knockout
dimensions
22”
(559 mm)
17 1/2”
(445 mm)
3 51/64”
(96 mm)
3 31/32”
(101 mm)
1 1/4”
(32 mm)
16 19⁄64”
(414 mm)
20 3/4”
(527 mm)
2 7/32”
(57 mm)
4 1/2”
(114 mm)
17 9⁄16”
(446 mm)
12 3/4”
(324 mm)
12 19⁄32”
(320 mm)

Table of Contents

Other manuals for Mircom TX3 Series

Related product manuals