EasyManua.ls Logo

Mircom TX3 Series - Figure 51 Kiosk Base Plate with Bolts; Figure 52 Kiosk Mounting Holes

Mircom TX3 Series
161 pages
Print Icon
To Next Page IconTo Next Page
To Next Page IconTo Next Page
To Previous Page IconTo Previous Page
To Previous Page IconTo Previous Page
Loading...
Installation
TX3 Touch Screen Installation Manual 63
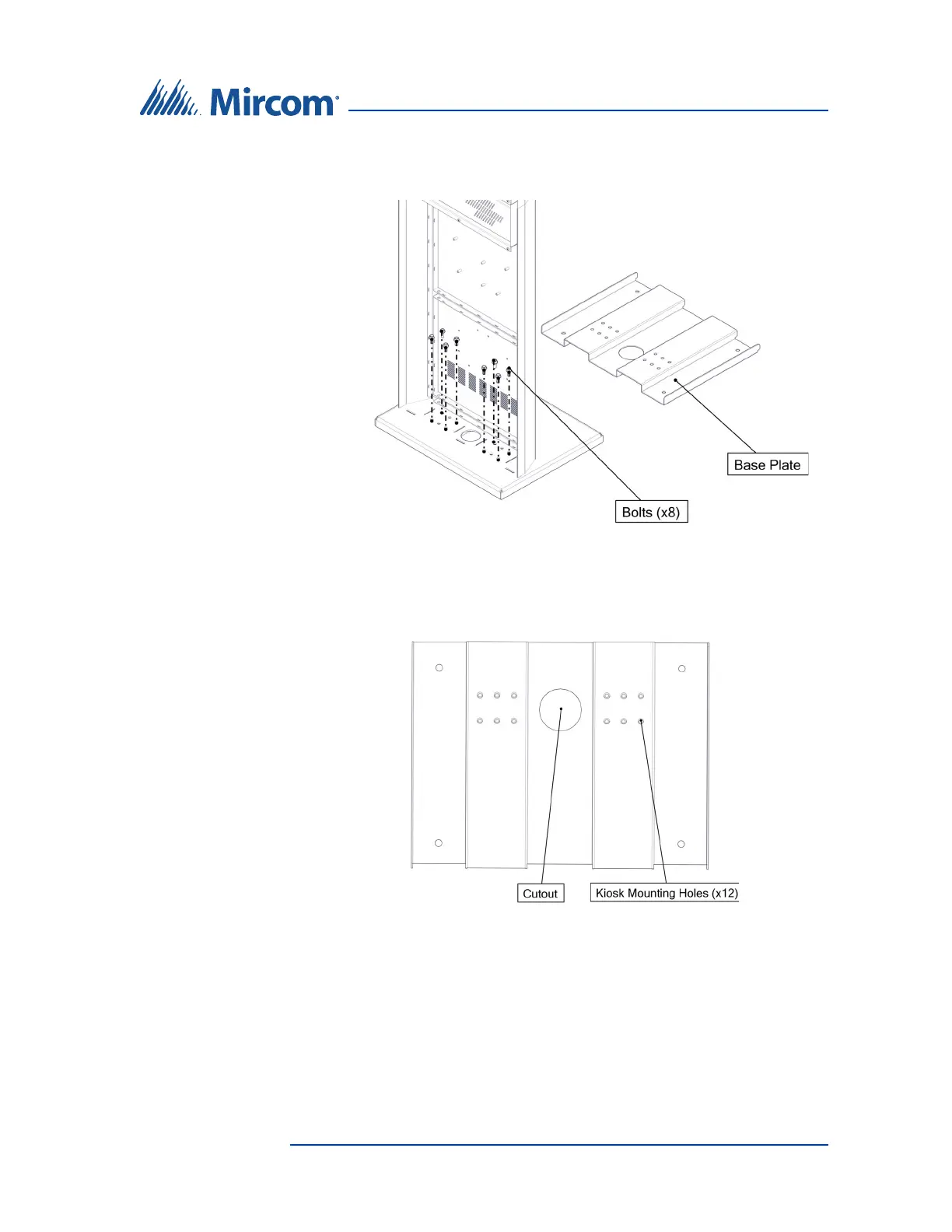
5. Remove the remaining 8 bolts that attach the Kiosk to the base plate, as
shown in Figure 51.
Figure 51. Kiosk base plate with bolts
The 12 Kiosk mounting holes in the base plate are shown in Figure 52.
Figure 52. Kiosk mounting holes

Table of Contents

Other manuals for Mircom TX3 Series

Related product manuals