EasyManua.ls Logo

Omron F3SJ-A series - Page 84

Omron F3SJ-A series
148 pages
Print Icon
To Next Page IconTo Next Page
To Next Page IconTo Next Page
To Previous Page IconTo Previous Page
To Previous Page IconTo Previous Page
Loading...
66
Chapter3 Dimensions
F3SJ-A
User’s Manual
Wiring/Installation
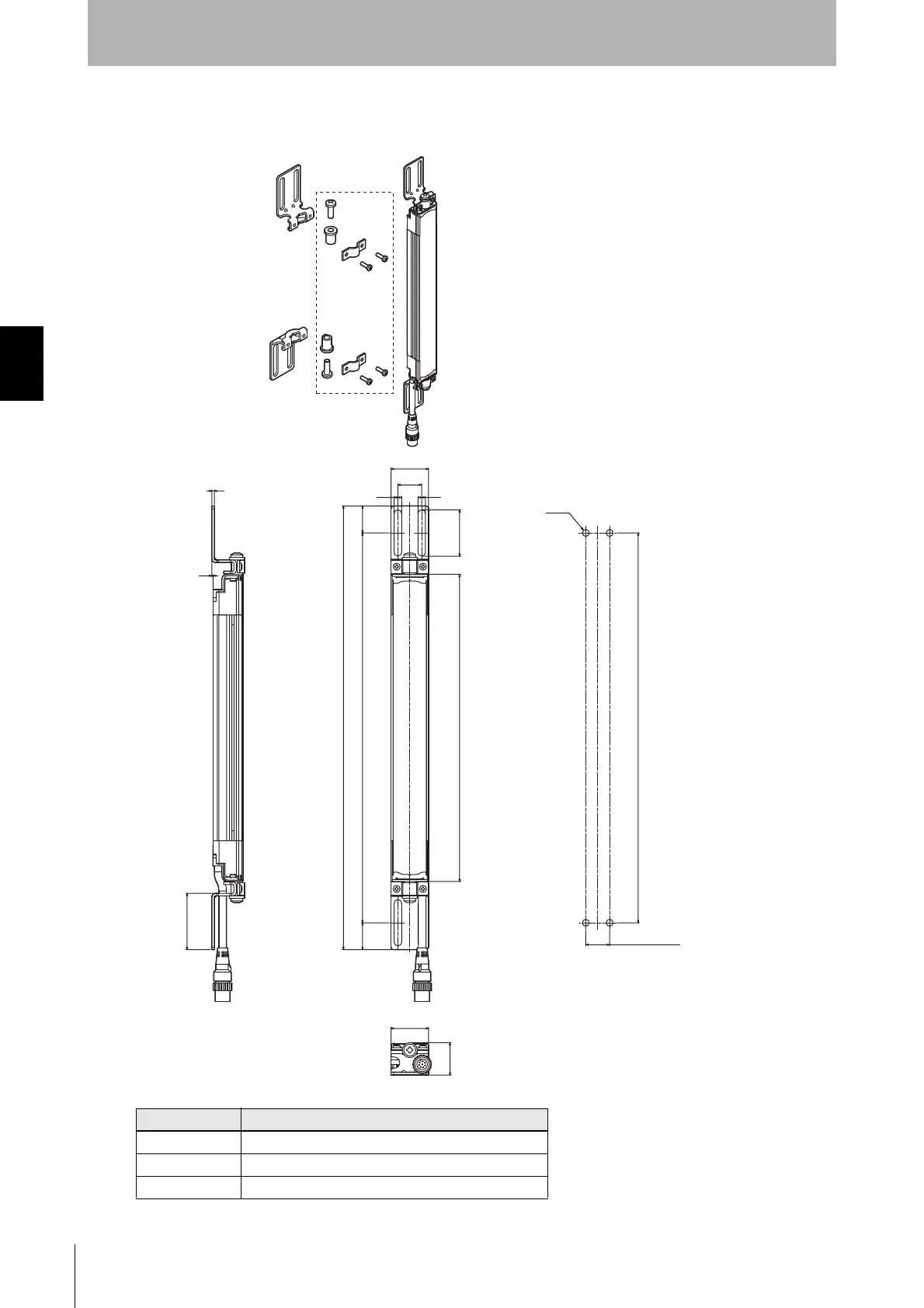
F39-LJ4 Top/bottom Mounting Bracket B
Dimensions A to C
A C + 109
BC + 66
C 4-digit number of the model name (protective height)
F39-LJ4
19
66
37
2
1
B
19(*1)
30
4-M5
26
A
B
21.5
(21.5)
30
45
Backside mounting
Use standard
brackets
C (Protective height)
(Unit: mm)
*1 A mounting width of 18 to 20 can be
supported when mounting with M5 screws.
Material: Stainless steel
Courtesy of CMA/Flodyne/Hydradyne Motion Control Hydraulic Pneumatic Electrical Mechanical (800) 426-5480 www.cmafh.com

Table of Contents

Other manuals for Omron F3SJ-A series

Related product manuals