B 9
10
11
DS7J9
WAI5IK-TW
12
13
DS7~
1lA151K-TW
14
15
16
TO
FROHH21
"..,~-?"
_________
-4
________
I-
__________
-H-+
____
..:l=ED.::._S..:CN..:IO_'.:..,31
___
..,.)
LED_SCHIO,31
R675Z
J,7K/Jr
C>.I
C"I')
.....
on _ ,... 0
Rm3
7X/JS
BACKU!'-.SV
Rm~
7X/J6
Rms
7K/J6
Rms
7XIJS
Rm7
7XIJS
Rm8
7XIJS
Rm9
7X/JS
<Xl
""0
_
1
:3
1
~
TO
FROHT(31
~::-"<~-+++-1I-++H-+--'
4--------------4-++-----------7
SEl_ROW
CHKBI(O:3)~
~ ~ ~ ~
~ ~
~
13)
I
ROW
cs
BAcT-
sv
0 -
~
m
~i;t
C8
7
81
1
~
If,
~::
IC6703
INI382-i1
r~~-_+J~~mmH~~+~~~mH~-~o~mmH~~~~+~mHN~H~m+~~~-~
i
rvoovss
:
::g~
I~~~:
~
~
~
~
~
~ ~ ~
~ ~
~ ~ ~
~ ~ ~ ~ ~
E i
~~
~ ~
,~=-!!:::=~'"'":'IV'Y~s:"";~~:
-+"'~..-II2P31/I1JF
~
~
g>~
~
o
,
2':
. .,;
..
(6710
116V33
'-=--=="""'='---"""7""3
P30/IIJO
I H
P23/BUZ
I
75
:~~/PCl
IOK/JIi
I
~
P20/PTOO
-J.
7Ir
R6723
0lI/J6
78
I3iTlO
I
R671'~
OK/J6
79
1211MT2
o
R6725
OKlJ6
80
II/IMTI
"'--=~"""='+?8iITl-j>10/1
MTO
t------------H>i
82
ii103/SI0/S81
t------------+-h
ro
;:;-J>02lS00/Seo
.-----------+.>.;c&lC(;POI/SCKO
~----------H>i85,;..(POO/INT4
r---------+"'86~RESET
IC6701
UPD75236J029
TO
~7
I
TI
~S
2
T2
~S
3
T3
~4
4
14
43
,
75
• 6
~
41
7
T8
40
8
T9
39
I~
PH3/T10/SIS/PIS3
"'~;;-7
+----~--~
:~;;:~;~:~::;~
~
RS749
47X/J.
,,~~12
r7X/J6
PHO/TI3/SI2IPISO
*
10
Tl4/SII/PI~3
'E
I
,A;-IMr--';
TlS/SIO/PI42
Jt-r-
VOO
To-
9
o~
GRIOIO'
15)
/
-:ji
AVSS
fi>----;~"""'~7T,_-_+_t?;ea;olAN7IP93
;,-----,;~;W~TiF_-_t_~89~AHS/P92
fi>----;~~~7T,_-_+_-H>i9QiirlAN5/P91
r---'='-'.t..,.:.::::.=-+t;>;9IT11
ANlIP90
r
--",+92,,9<1
AN3
93
AN2
r-----~~--h~~ANI
¥lOAD
~37-1
+-+--!f~
S9/P141~
~8
S8/PI~~'
S7IPI33
~
'\
L.
_______
--'
SG/PI32~'
S5/PI31~'
S4/PI30~
Sl'GII:HTlO'
10)
TO
FROHTI2I
(2)
~
~-+--------------------------------------------------------~<
~-~
K_52
K_S3
7!
lED
OUTlO'31
.-REFER
TO
THE
COWPARISON
CHART
Ref
No.6700
Series.
TO
FRONTl2)
)
lED_OUTlO,31
I
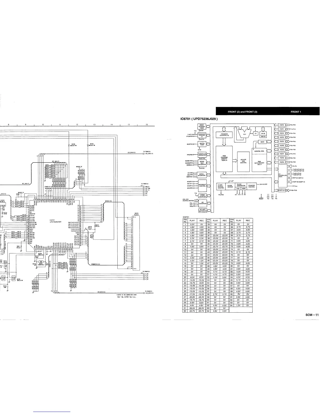
IC6701
(UPD75236J029)
BUZlP23
ppO/peo
SCKOIPOl
IC6701
PIN
PLAY
REC
PIN
PLAY
No. No.
1
0.2V
OV
33
OV
2
4.8V
4.8V
34
OV
3
4.8V
4.8V
35
OV
4
4.8V 4.8V 36
OV
5
4.8V
4.8V
37 ·23.0V
6
2.3V 2.3V
38
-23.0V
7
2.1V
2.1V
39
-23.3V
8
OV
OV
40
-24.0V
9
4.8V
4.8V
41
-23.7V
10
OV
OV
42 -23.0V
11
OV
OV
43
·23.0V
12
OV
OV
44
-23.0V
13
4.5V 2.3V
45
-23.0V
14 4.5V
1.2V
46 -23.2V
15
OV
1.0V
47
-23.2V
16
OV OV
48 4.8V
17
OV
OV
49 4.8V
18
OV
OV
50 0.1V
19
OV OV
51
4.7V
20
-8.0V
-8.0V
52
4.4V
21
-14.6V
-10.0V 53
OV
22
·10.7V -8.0V 54
OV
23 -10.9V
·10.9V 55
OV
24
-10.0V
·10.0V
56
OV
25 -10.0V
-15.0V
57
OV
26
-17.5V
-16.0V
58 2.7V
27
-25.8V -26.2V
59
OV
28 -18.7V
-18.7V
60
OV
29
-8.9V
-8.9V
61
OV
30
4.8V
4.8V 62
4.BV
31
-26.0V -26.0V 63
OV
32
-23.7V
-23.7V
64 4.8V
ROM
PROGRAM
MEMORY
16256x8
PCUP22
REC
OV
OV
OV
OV
-23.0V
-23.0V
·23.3V
-24.0V
-23.7V
-23.0V
-23.0V
-23.0V
-23.0V
-23.2V
-23.2V
4.8V
4.8V
0.1V
4.7V
3.9V
OV
OV
OV
OV
OV
2.7V
OV
OV
OV
4.8V
OV
4.BV
FRONT (2) and FRONT
(3)
FRONT 1
PIN
No.
65
66
67
68
69
70
71
72
73
74
75
76
77
78
79
80
81
82
83
84
85
86
87
88
89
90
91
92
93
94
DECODE
AND
CONTROl
PLAY REC
OV OV
3.7V
3.7V
3.6V
3.6V
3.7V 3.7V
3.7V
3.7V
OV
OV
4.8V
4.8V
4.8V
4.8V
4.8V 4.8V
OV
OV
2.1V
2.1V
OV OV
OV OV
OV
OV
4.8V 4.8V
OV
OV
4.8V
4.8V
4.0V
4.0V
0.6V 0.6V
4.5V
4.5V
5.1V
5.1V
4.8V
4.8V
OV
OV
4.8V
4.8V
4.8V
4.8V
DV
DV
4.8V
4.8V
OV
OV
OV
OV
1.5V
OV
RAM
DATA
MEMORY
768x4
CPU
CLOCK
_1
H H 1
RESET
Vco
VSI
VDO
TO-T9
T10/S151PH3IP153
Tl31S121PHOIPl50
T14/S111P143
Tl51S101P142
SO/P120-S9/P141
Sl61Pl00-52:liP113
SCM-11