EasyManua.ls Logo

Philips BJ3.0E - B10 B COMMON INTERFACE: PART 2

Philips BJ3.0E
176 pages
Print Icon
To Next Page IconTo Next Page
To Next Page IconTo Next Page
To Previous Page IconTo Previous Page
To Previous Page IconTo Previous Page
Loading...
108BJ3.0E PA 7.
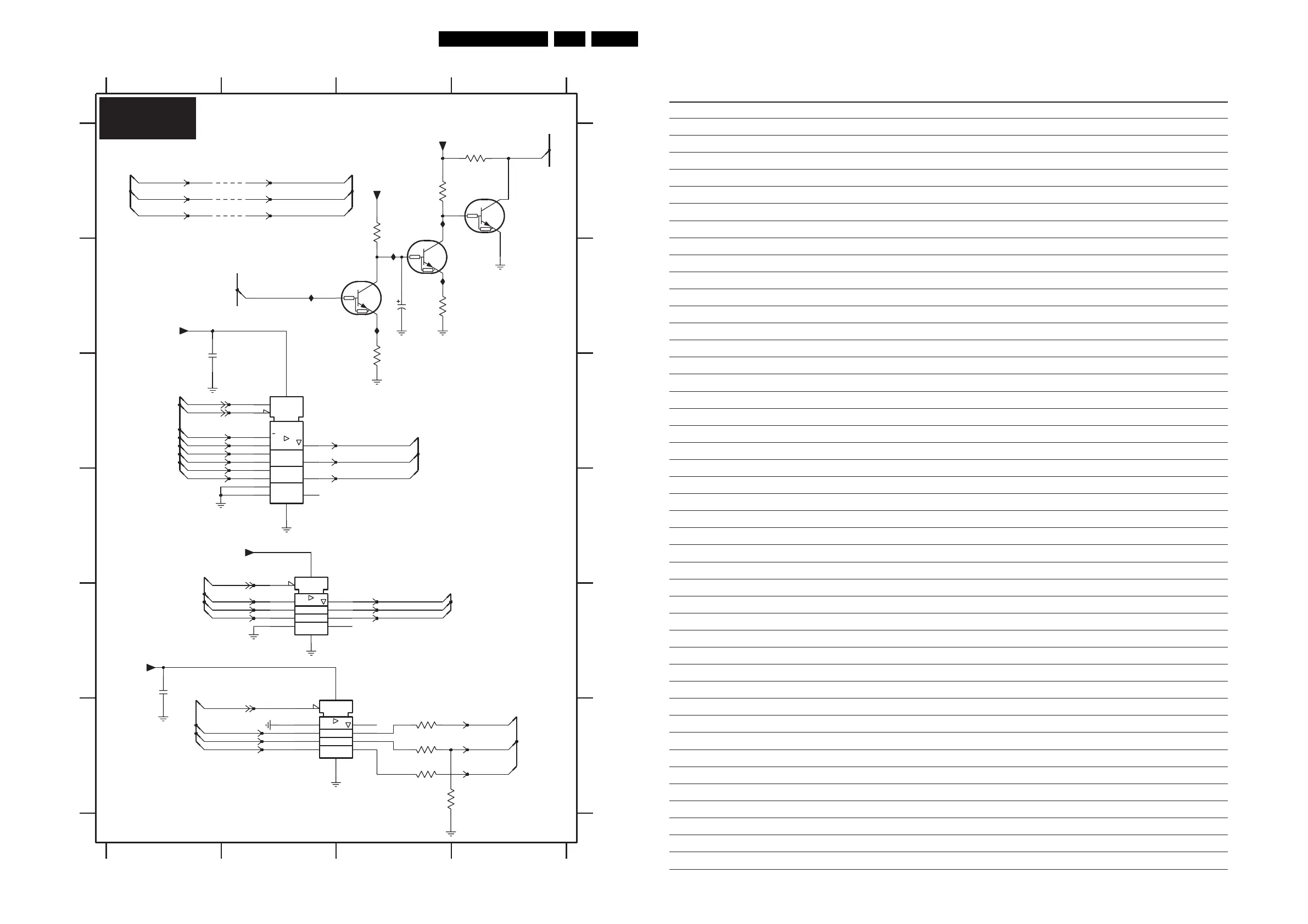
Circuit Diagrams and PWB Layouts
SSB: Common Interface: Part 2
EN
EN
1
1
G1
EN
POD-RDC
F
A
B
C
D
E
F
2P44 B3
2P50 C1
POD-FDC
1234
1234
A
B
C
D
E
CI or no POD-RDC
COMMON INTERFACE: PART 2
3P50 F3
3P51 F3
3P52 F3
3P53 F3
7P10-1 D2
7P10-2 E2
7P13 C2
7P21 B2
7P22 B3
7P23 A4
9P30 A2
9P31 A2
9P32 A2
IP11 B2
IP12 B4
IP13 A3
IP19 B3
IP24 B3
2P51 E1
3P02 C3
3P03 A3
3P04 B3
3P05 A3
3P07 A4
RES
10K
3P53
100n
2P51
9P32
IP19
+3V3
IP24
+3V3
10K
3P07
3P05
10K
100R
3P02
3P04
1K0
10V
10K
3P03
2P44
10u
IP11
IP12
RES
3P52
33R
2P50
100n
6
8
10
1
20
18
16
14
12
7P10-1
74LVC244APW
2
4
+3V3
11
10
19
20
3
5
7
9
7P10-2
74LVC244APW
17
15
13
33R
3P50
RES
9P31
+3V3
6
10
13
15
1
16
4
7
9
12
7P13
74LVC257APW
MUX
8
2
5
11
14
3
7P23
PDTC114EU
PDTC114EU
7P22
7P21
PDTC114EU
+3V3
9P30
IP13
3P51
33R
RES
ETX_POD-A(6)
ITX_POD-A(5)
POD-A(7) QTX_POD-A(7)
POD-A(6) ETX_POD-A(6)
POD-A(5) ITX_POD-A(5)
PDOE
ETX-POD
RESET-POD-CI
VCCEN
POD-A(7)
POD-A(6)
POD-A(5)
PDIR
QTX_POD-A(7)
ETX_POD-A(6)
ITX_POD-A(5)
POD-A(4)
POD-A(9)
POD-A(8)
CTX-POD
DRX-POD
CRX-POD
ADOE
PDIR
CTX_POD-A(4)
DRX_POD-A(9)
CRX_POD-A(8)
QTX-POD
ITX-POD
QTX_POD-A(7)
B10B
3104 313 6073.5
G_15960_049.eps
080206
Personal Notes:
E_06532_012.eps
131004

Table of Contents

Related product manuals