EasyManua.ls Logo

Philips BJ3.0E - Wiring Diagram 50” SDI

Philips BJ3.0E
176 pages
Print Icon
To Next Page IconTo Next Page
To Next Page IconTo Next Page
To Previous Page IconTo Previous Page
To Previous Page IconTo Previous Page
Loading...
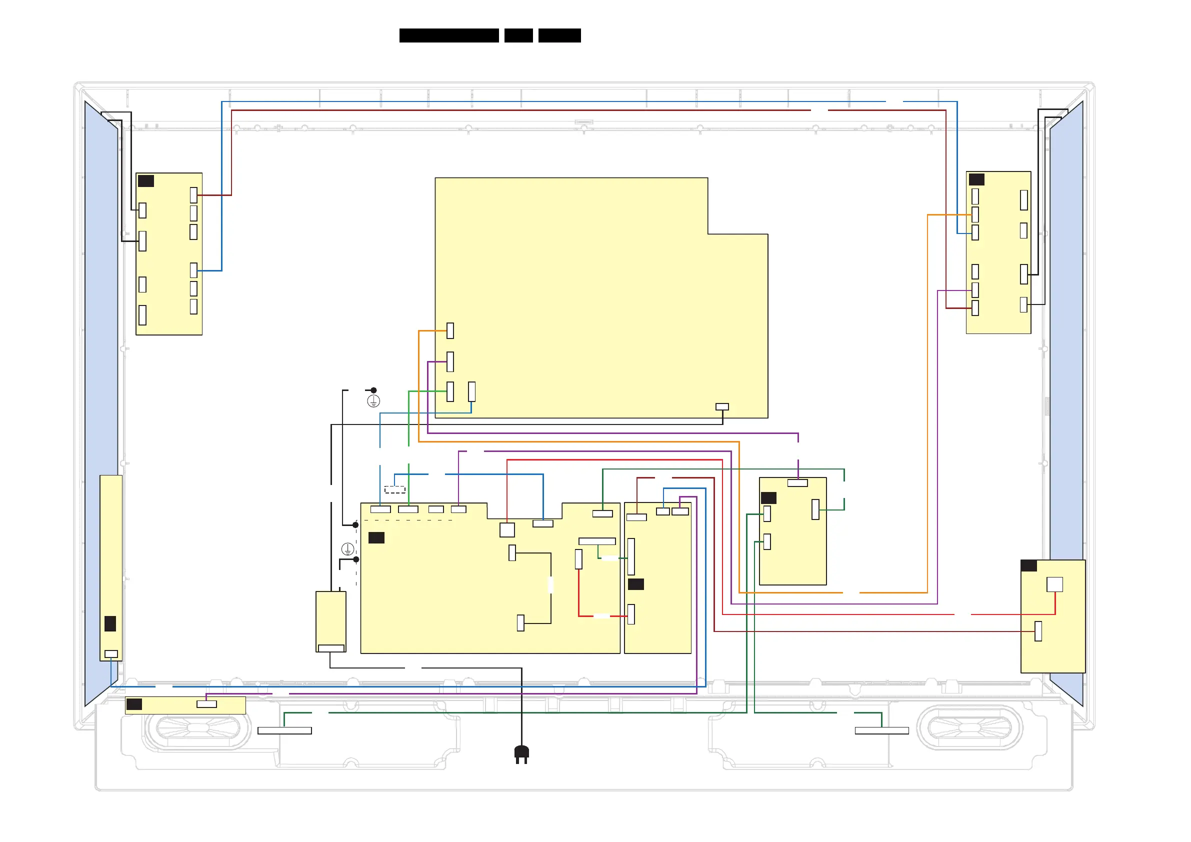
46BJ3.0E PA 6.
Block Diagrams, Test Point Overviews, and Waveforms
Wiring Diagram 50” SDI
G_15960_080.eps
100406
1M08
6P
1M09
4P
1M10
6P
1M16
3P
1M59
5P
1M39
3P
1M39
3P
1M59
4P5
1M49
4P
1M10
6P
1M09
4P
1M08
6P
1M37
11P
1H01
4P
USB
1M09
4P
8199
1M52
9P
1M02
7P
1735
2P3
1736
2P3
1H01
4P
USB
1G50
31P
1M01
3P
1M21
6P
SPEAKER RIGHT SPEAKER LEFT
AC INLET
WIRING 50” SDI
SDI PDP
POWER SUPPLY
AMBI
LIGHT
AL
AMBI
LIGHT
AL
CONTROL BOARD
E
LED PANEL
J
AUDIO
C
SIDE I/O
D
SMALL SIGNAL BOARD
B
EXTERNALS
BE
1M21
6P
1M01
3P
1M36
11P
1M52
9P
1E40
40P
1E62
20P
1E62
20P
Shielding
8508
8539
8900
8921
8136
8262
8240
8152
8509
8101
8121
8735
8736
8194(AUS/NZ)
8191
8192(UK)
8302
8201
1E40
40P
8549
1M11
11P
1M15
3P
1M13
11P
1M16
3P
1M11
11P
1M15
3P
1M13
11P
AMBILIGHT UNIT RIGHT
AMBILIGHT UNIT LEFT
1M03
10P
1M02
7P
0308
2P3
1M46
11P
LVDS
31P
8103
8146
8150
1M46
11P
1M03
10P
1M59
4P5
1M63
3P
1M64
4P
1N62
4P
8264
1M49
4P

Table of Contents

Related product manuals