EasyManua.ls Logo

Philips BJ3.0E - AL3 AMBI LIGHT

Philips BJ3.0E
176 pages
Print Icon
To Next Page IconTo Next Page
To Next Page IconTo Next Page
To Previous Page IconTo Previous Page
To Previous Page IconTo Previous Page
Loading...
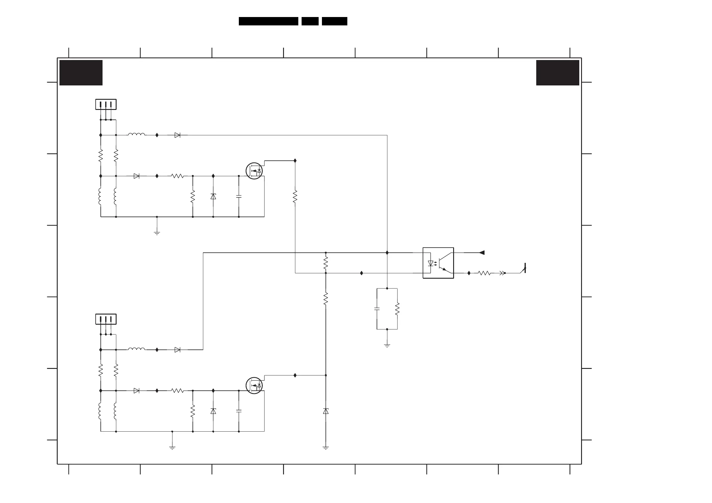
Circuit Diagrams and PWB Layouts
69BJ3.0E PA 7.
Ambi Light
AL1(2X)
AL2
AMBI LIGHT
I205 B1
I206 C5
I207 C5
I208 C6
I209 E4
I210 D2
I211 D1
I212 E2
I213 E3
I214 E1
I215 B4
3203 B2
3204 C4
3205 C6
3206 D4
3207 D5
3208 E1
3209 E1
3210 E2
3211 E2
3212 B4
5200 A1
5201 B1
5202 B1
5203 D1
5204 E1
5205 E1
6200 A2
6201 B1
6202 B2
7201 C6
7202 E3
I201 A2
I202 A1
I203 B2
I204 B3
12
1234567
A
B
C
D
E
A
B
6203 D2
6204 E1
6205 E2
6206 E4
7200 B3
C
D
E
1M15 A1
1M16 D1
2200 B3
2201 D5
2202 E3
3200 B1
3201 B1
3202 B2
34567
220R
3212
I213
I211
I214
I210
I212
I209
I208I207
I206
I202
I204
I205
I201
I203
BZX384-C12
GND-HV
GND-HV
6206
3207
22K
2201
470n
1K0
3205
+5V
TCET1102(G)
7201
I215
3206
220R
GND-HV
3204
10K
SI2302ADS
7202
3
1
2
470p
2202
47R
3210
1M0
3211
BZX384-C6V8
6205
6203
BAS316
BAS316
6204
3209
1K0
1K0
3208
600R
5205
5204
600R
5203
120R
7200
SI2302ADS
3
1
2
2200
470p
3202
47R
1M0
BZX384-C6V8
3203
6202
BAS316
BAS316
6200
1K0
3201
6201
3200
1K0
5202
600R
600R
5201
1
2
3
120R
5200
2
3
1M16
B03B-XASK-1
B03B-XASK-1
1M15
1
PROT
GND-HV
AL3 AL3
G_15960_143.eps
300306
3104 313 6097.5

Table of Contents

Related product manuals