EasyManua.ls Logo

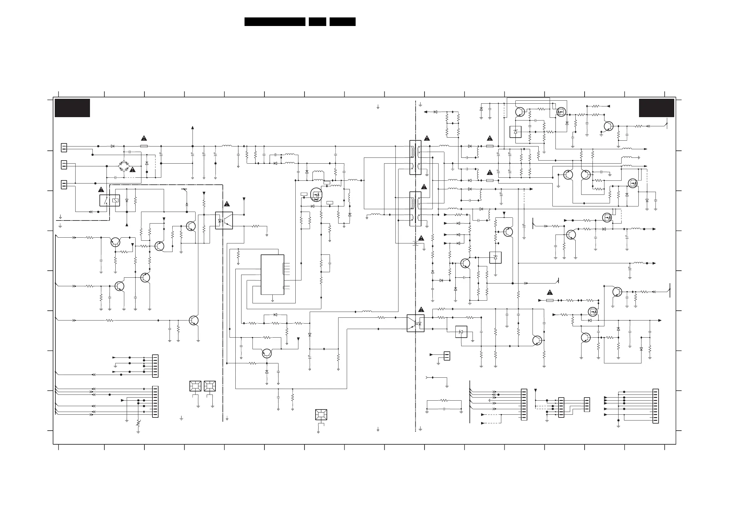
Philips BJ3.0E - AP1 PLATFORM SUPPLY: AUXILIARY SUPPLY

Philips BJ3.0E
176 pages
Print Icon
To Next Page IconTo Next Page
To Next Page IconTo Next Page
To Previous Page IconTo Previous Page
To Previous Page IconTo Previous Page
Loading...
Circuit Diagrams and PWB Layouts
71BJ3.0E PA 7.
Platform Supply: AUX Supply
+T
HVS
ISENSE DRIVER
NC
DEM
VCC
CTRL
DRAIN
GND
IP72 F12
IP73 F15
IP74 E14
IP75 D10
IP76 E10
IP77 D11
IP78 C11
IP79 B6
IP80 D10
IP81 G10
IP82 C14
IP83 A10
IP84 B10
IP85 B11
IP86 B11
IP87 C11
IP88 C11
IP89 A11
IP90 B13
IP91 B13
IP92 C8
IP93 F13
IP94 C4
IP95 A14
IP96 E14
IP97 E13
IP98 E13
IP99 F14
PLATFORM SUPPLY: AUXILIARY SUPPLY
IP58 B7
IP59 E10
IP5A B14
IP5B A12
IP5C A13
IP5D E7
IP5E G2
IP5F H2
IP60 E11
IP61 C10
IP62 C10
IP63 C10
IP64 C11
IP65 B6
IP66 E10
IP67 F10
IP68 F10
IP69 F11
IP6A G5
IP6B E15
IP6C B13
IP70 F12
IP71 F10
-14V (0V)
6P10
0V2 (0V4)
7P02
17V (16V)
IP33 B14
IP35 F7
IP36 F6
IP37 F5
IP38 F5
IP40 F5
IP41 G5
IP42 A2
IP44 E2
IP45 F3
IP46 F9
IP47 C9
IP48 B8
IP49 A10
IP50 B10
IP51 B10
IP52 B11
IP53 A11
IP54 D11
IP55 D11
IP56 C11
IP57 D10
T1A-250V
IP14 E7
IP15 C6
IP16 B5
IP17 B7
IP18 B7
IP19 C7
IP1A D2
IP1B F13
IP1C A13
IP1D E2
IP1E D3
IP1F D3
IP20 D7
IP23 E13
IP24 E13
IP25 E14
IP26 F14
IP27 E8
IP28 C9
IP29 F8
IP2A D3
IP30 A14
IP31 B11
IP32 C14
COLD GROUND
FP36 G2
FP37 C13
FP38 H11
FP39 H13
FP40 H13
FP79 E12
IP01 A3
IP02 A10
IP03 A10
IP04 B12
IP05 A14
IP06 A14
IP07 D1
IP08 C3
IP09 C3
IP0A C7
IP0B D2
IP0C B11
IP0D C13
IP0E C13
IP0F C14
IP10 A5
IP11 C7
IP12 D7
IP13 C5
RES
RES
FP09 C15
FP10 H2
FP11 H3
FP12 C2
FP13 G3
FP14 G3
FP15 G3
FP16 H13
FP17 H12
FP18 H15
FP19 H15
FP20 H15
FP21 H15
FP22 H15
FP23 C3
FP24 B3
FP25 H2
FP26 A4
FP27 H14
FP29 B1
FP30 G2
FP31 G2
FP32 G2
FP35 H2
COLD GROUND
7P31 E3
7P38 D2
7P80 D11
7P81 D11
7P82 C12
9P56 B2
9P57 C12
9P58 B3
9P60 A11
9P61 B15
9P65 C14
9P67 H11
9P68 H11
9P80 H12
9P81 H12
FP00 A1
FP01 B2
FP02 B1
FP03 C1
FP04 B3
FP05 B4
FP06 H3
FP08 D15
7P03 A12
7P04 A14
7P06 C4
7P07 D3
7P09 F12
7P10 F4
7P11 F9
7P12 C5
7P14 E13
7P15 F13
7P16 F10
7P17 D13
7P18 C14
7P19 E15
7P20 A13
7P21 A12
7P22 B13
7P23 B15
7P24 B14
7P26 F6
7P27 D5
7P30 E2
6P12 C11
6P13 B11
6P22 C15
6P23 A13
6P27 F7
6P28 F6
6P31 G6
6P34 C2
6P47 C8
6P50 F14
6P51 F14
6P52 C14
6P53 F15
6P80 E10
6P81 E10
6P82 C10
6P83 D10
6P84 D10
6P85 E10
6P86 A10
7P02 C7
COLD GROUND
5P18 B15
5P19 B15
5P20 A15
5P21 B11
5P22 B11
5P23 C11
5P24 C11
5P25 B6
5P26 B7
5P27 B6
5P28 B7
6P01 B6
6P02 B6
6P03 C15
6P04 A11
6P05 B2
6P06 A2
6P07 B3
6P09 C7
6P10 A11
6P11 B11
HOT GROUND
3P98 A12
3P99 A12
3PP1 A10
3PP2 E12
3PP3 B5
5P00 A9
5P01 B9
5P03 E8
5P04 B8
5P05 C8
5P06 A5
5P07 B7
5P08 C8
5P10 A10
5P11 B10
5P12 B10
5P13 C10
5P14 C15
5P16 D15
3P79 D10
3P80 D10
3P81 D10
3P82 E10
3P83 C10
3P84 C11
3P85 D11
3P86 E11
3P87 E11
3P88 C11
3P89 D11
3P90 E11
3P91 E11
3P92 H6
3P93 B13
3P94 B14
3P95 D2
3P96 A12
3P97 A13
HOT GROUND
HOT GROUND
3P58 E14
3P59 F13
3P60 A12
3P61 E10
3P62 F10
3P63 F11
3P64 G11
3P65 F11
3P66 G11
3P67 F12
3P68 A10
3P69 F6
3P70 C13
3P71 C14
3P72 C14
3P73 F6
3P74 F6
3P75 F8
3P76 B12
3P77 G7
3P78 G5
HOT GROUND
COLD GROUND
3P35 E1
3P36 A12
3P37 E1
3P38 D2
3P39 F3
3P40 F5
3P41 D2
3P42 C4
3P43 C4
3P44 D3
3P45 D2
3P46 D3
3P47 F15
3P48 C7
3P49 A10
3P50 C7
3P51 F13
3P52 F14
3P53 F14
3P54 A10
3P55 F14
3P56 H2
3P57 E13
3V3 (0V5)
0V2 (4V2)
3P12 G12
3P13 C5
3P14 F2
3P15 C2
3P16 C7
3P17 A15
3P18 A14
3P19 A14
3P20 A14
3P21 A13
3P22 B14
3P23 B14
3P24 C14
3P25 F6
3P26 C14
3P27 D7
3P28 B5
3P29 B7
3P30 D2
3P31 D1
3P32 D3
3P33 E7
3P34 D3
2P49 C12
2P50 D14
2P51 A12
2P52 B5
2P53 A12
2P54 E2
2P55 D14
2P56 F12
2P57 F11
2P64 B11
2P80 E10
3P00 B12
3P01 B12
3P02 B12
3P03 B12
3P04 C6
3P05 D13
3P06 H10
3P07 D5
3P08 C7
3P09 E15
3P10 E15
3P11 A13
5V2 (0V)
3V7 (0V)
2P21 A15
2P22 A14
2P23 F14
2P24 F15
2P25 B11
2P26 A13
2P27 B11
2P28 B12
2P29 B11
2P30 B12
2P31 D13
2P32 E2
2P33 H6
2P34 C15
2P35 A11
2P36 D1
2P37 B14
2P40 E10
2P41 F12
2P42 C11
2P43 C11
2P45 F3
2P47 C11
2P48 D15
T1A-250V
6P11
6P13
7S02
1P07 B11
1P10 G12
1P16 B1
1P17 C1
1P22 A1
1P30 E13
2P01 F15
2P02 H10
2P03 D7
2P04 F5
2P05 G7
2P06 D9
2P07 B4
2P08 B4
2P09 A2
2P10 B2
2P11 G6
2P12 F12
2P13 E15
2P14 B5
2P15 B7
2P16 B4
2P17 B3
2P18 B6
2P19 B6
2P20 B7
6 7 8 9 101112131415
1 23456789101112131415
A
B
F
G
H
A
B
C
D
E
F
G
H
0P01 G9
1M02 G3
1M03 G3
1M10 H13
1M18 H14
1M46 G15
1M63 G10
1P00 G4
1P01 G4
1P02 B1
1P03 A2
1P05 H7
1P06 A11
1 2345
IP02
6P12
0V (0V)
14V4 (0V)
C
D
E
5P26
IP03
220R
5P28
220R
FP16
5P27
220R
GND-SSP
6P53
BAS316
+12V_NF
IP1D
3P39
47K
7P14
STP16NF06FP
IP01
3K3
3P07
7P06
IP0A
IP96
BC817-25W
10K
3P52
9P56
8
9
390K
3P22
1
10
11
2
3
4
5
6
7
GND-SSP
1M46
B11B-PH-K
IP5A
GNDHA
220R
5P22
IP94
IP86
3K3
3P83
B2P-VA-BF-BK
1
2
9P68
1P22
BC847BW
7P80
IP92
IP38
9P67
FP17
+5V-SW
2P26
470n
+AUX
IP61
GND-SSP
IP51
2K2
3P34
10K
3P67
IP85
GND-SSP
IP91
IP31
FP25
IP84
220p
2P06
IP93
FP04
IP09
5P05
50R
FP14
IP25
1K0
3P71
IP52
6K8
3P94
1u0
2P41
3
4
100R
3PP2
1M18
B4B-PH-K
1
2
IP30
IP60
220p
2P64
2P11
1u0
50R
IP20
GNDHA
GND-S
+400V-F
5P08
2P31
100n
1K0
3P88
IP1F
IP44
1P01
HEATSINK
IP12
IP5E
GND-S
3P60
10K
10n
2P51
220R
3P62
GND-SSP
IP87
110
2
3
56
7
8
9
5P00
BS25405-00
35V1m0
2P27
470R
3P36
BC847BW
7P21
BC847BW
7P30
IP5B
3
4
5
6
7
8
9
1P10
B10B-EH-A
1
10
2
3P01
10K
GND-SSP
IP05
GND-SSP
IP77
5P23
220R
7P38
BC847BW
2K7
3P85
6P03
BZG05C27
5P07
BC847BW
7P17
6K8
80R
1%
3P65
1P17
G5PA-1-5VDC
2
3
14
IP82
PDZ18-B
6P81
IP13
GND-SSP
+5V2
IP16
1m0
2P29
GND-SSP
35V
BYW29FP-200
220R
5P24
+12V
6P12
22K
3P81
2K7
3P79
2P03
1u0
22K
3P53
330R
3P55
5P03
22u
FP24
3P27
12K
IP26
3P13
47K
FP05
3P26
10K
IP73
IP75
FP38
IP1C
IP0F
FP18
IP80
3P40
100K
80R
5P04
IP81
33u
5P19
5P21
220R
10K
3P02
2
41
BYG10
6P06
GND-S
GBL06
6P05
3
33R
3P48
3P92
1K0
GND-SSP
IP65
+8V6
GNDHA
GND-S
IP23
2P37
100n
IP04
+5V-SW
IP11
BC857BW
IP79
7P31
IP78
4K7
3P47
HEATSINK
1P00
5P12
45R
2P55
220n
3P57
2R2
GND-SSP
IP27
BC847BW
7P15
6P13
BYW29FP-200
IP76
2P56
220n
FP35
FP36
2P05
22u 50V
GND-SSP
2P14
10n
GND-SSP
+5V2
GNDHA
FP27
3P19
100K
1
IP90
GND-S
GND screw
0P01
220K
3P24
3P42
2K2
IP48
K
2
R
3P87
2K2
7P16
TS2431
3
A
1
BAS316
6P85
IP70
GND-S
3P23
6K8
3P73
33K
IP19
3P28
100K
FP31
IP69
2
9P80
TCET1102(G)
7P11
1
4
3
10K
3P25
FP29
IP2A
BYW29FP-200
6P10
450V10u
2P17
IP59
IP99
3P32
4K7
GND-SSP
BYV27-600
6P01
100n
2P21
FP15
2P30
1m0 35V
FP21
IP07
GND-SSP
FP32
GND-SSP
22K
3P09
3P84
3K3
25V
1m0
2P50
2P04
1u0
GND-SSP
1u0
2P54
2P45
100n
1
2
1
2
B2P-VA-BF-BK
1P16
GND-SSP
1P02
B2P-VA-BF
IP35
GND-SSP
GNDHA
GND-SSP
3P00
10K
+12V
FP23
2P32
100n
IP74
IP98
4
3
2
GNDHA
7P12
TCET1102(G)
1
5P06
80R
FP22
GND-SSP
3P43
2K2
150K
3P90
7P20
BSP030
2P40
100n
+5V-SW
GND-L
GND-SSP
IP17
IP67
220n
2P34
2K7
3P80
1
2
3
4
5
6
1M10
B6B-PH-K
2P07
10u 450V
GNDHA
IP88
BC847BW
7P10
IP1E
IP83
IP0B
BC817-25W
7P26
1K8
3P66
GND-SSP
GNDHA
GND-SSP
1%
FP03
IP14
2P48
1m0
25V
FP10
IP10
1M0
3P95
3P77
3K3
IP28
22K
3P10
2P24
1u0
220p
2P19
GND-SSP
220p
2P18
FP20
2P80
220n
220p
2P20
10K
3P03
IP95
3K3
3P89
FP26
IP49
3P08
0R47
100p
2P02
220n
2P57
3P74
33K
+5V2
1P05
HEATSINK
FP00
1
10
2
3
4
5
6
7
8
9
B10P-PH-K-S
1M03
GND-SSP
GND-SSP
FP30
BSP030
7P18
8
9
FP19
5P01
110
2
3
56
7
BS25405-00
FP09
IP06
56n
2P10
+5V2
IP0E
10K
3P15
FP37
GNDHA
3P31
1K0
BZX384-C15
6P52
2P47
1m0 25V
IP57
IP41
220K
3P41
GNDHA
BZX384-C15
6P31
GND-SSP
FP11
FP01
2K2
3P82
2R2
3P58
+12VAL
FP08
GND-L
10K
3P63
6P23
BZX384-C15
+12V
22K
3P70
5P20
33u
2P53
100p
1n0
47K
3P46
2P23
1
R
2
GNDHA
TS2431
7P03
A
3
K
4K7
3P78
BZG05C27
6P04
GND-SSP
GNDHA
BSP030
7P23
6P22
BZX384-C15
+5V2
GNDHA
+5V2
7P19
BC847BW
BYW29FP-200
6P11
3P38
47K
3P56
2K04
3P37
100K
GND-SSP
IP40
IP47
3P64
100K
3P11
47K
GND-SSP
2P43
220p
220p
2P25
GND-SSP
220n
2P22
2K2
3P96
45R
5P13
GND-S
6P80
BAS316
220p
2P42
330K
3P72
IP6B
IP6C
3P04
33R
GND-SSP
IP53
2P16
10u 450V
6P09
BZX384-C15
IP08
IP45
3P75
4K7
+25VLP
GND-SSP
IP0D
BC857BW
7P22
IP54
GNDHA
IP5F
10R
3P50
7P09
BC847BW
+AUX
6K8
3P98
1K8
3P99
GND-SSP
FP13
3P20
10K
GND-SSP
100K
3P51
IP89
5P14
80R
FP12
7P07
BC857BW
470K
IP0C
BAS316
3P12
GNDHA
+5V-SW
6P34
3P69
470K
220p
GND-SSP
2P15
45R
5P11
GND-SSP
+5V-SW
2P33
22n
GND-SSP
IP71
IP55
80R
5P16
3P18
22K
4
5
8
10
2
IP72
6
7
14
11
3
12
13
9
1
BYG22D
CTRL
SPMS
Φ
TEA1506AT
7P27
6P27
GND-SSP
IP18
220R
5P25
3P97
6K8
6P47
BZG05C6V8
IP62
6P84
BAS316
220n
1u0
2P35
2P01
IP68
T 250V5A
1P07
+8V6
IP6A
3P76
220K
IP5C
IP33
25V
1m0
2P49
2
3
4
5
6
7
GND-SSP
B7B-EH-A
1M02
1
GNDHA
IP66
22K
3P17
6P82
BAS316
100K
3P93
+25VLP
GND-SSP
100K
3P30
GND-SSP
2P09
56n
450V
10u
2P08
2P13
100n
1K0
3P59
FP79
GND-SSP
IP15
2K2
3P44
GND-S
IP24
1P30
12
GND-SSP
IP64
IP36
1
2
GND-S
IP29
1M63
B2B-PH-K
6P07
BYG10
+5V2-NF
+8V6
3P05
22K
1P03
10R
3P16
33K
3P91
5A
1P06
7P02
STP6NK60Z
T
47K
3P35
+12V
+25VLP
GND-SSP
IP97
+12VAL
6P83
BAS316
7P82
BC857BW
6P86
BAS316
3P68
4K7 4K7
3P54
3PP1
4K7 4K7
3P49
9P57
2
R
6P28
BAS316
7P81
TS2431
3
A
1
K
IP37
+12V_NF
5P18
33u
FP40
IP46
FP39
5P10
45R
47K
3P14
IP32
9P61
9P81
GNDHA
GND-SSP
9P65
FP02
2P28
1m0 35V
GND-SSP
1M0
3P45
100n
2P12
PDZ6.8-B
6P51
3P06
10K
470R
3P61
100n
2P36
7P24
BC857BW
IP56
GND-S
GND-SSP
GNDHA
GND-S
9P85
GND-SSP
330R
3P86
+5V-SW
FP06
3PP3
IP63
10K
3P21
IP42
IP58
3P29
470R
+25VLP
BC847BW
GNDHA
7P04
BZX384-C15
6P50
6P02
BYV27-600
IP1A
IP1B
IP50
GND-SSP
2P52
10n
3P33
470R
9P60
IP5D
-AUDIO-POWER
AUDIO-PROT
DIM-CONTROL
POWER-GOOD
ON-OFF
BOOST
STANDBY
STANDBY
STANDBY
-AUDIO-POWER
+AUDIO-POWER
STANDBY
ON-OFF
AL-OFF
AL-OFF
STANDBY
POWER-OK-PLATFORM
POWER-GOOD
BOOST
+AUDIO-POWER
POWER-OK-PLATFORM
DIM-CONTROL
ON-OFF
AUDIO-PROT
AP1 AP1
G_15960_012.eps
070206
3104 313 6094.4

Table of Contents

Related product manuals