EasyManua.ls Logo

Philips BJ3.0E - AL1 AMBI LIGHT

Philips BJ3.0E
176 pages
Print Icon
To Next Page IconTo Next Page
To Next Page IconTo Next Page
To Previous Page IconTo Previous Page
To Previous Page IconTo Previous Page
Loading...
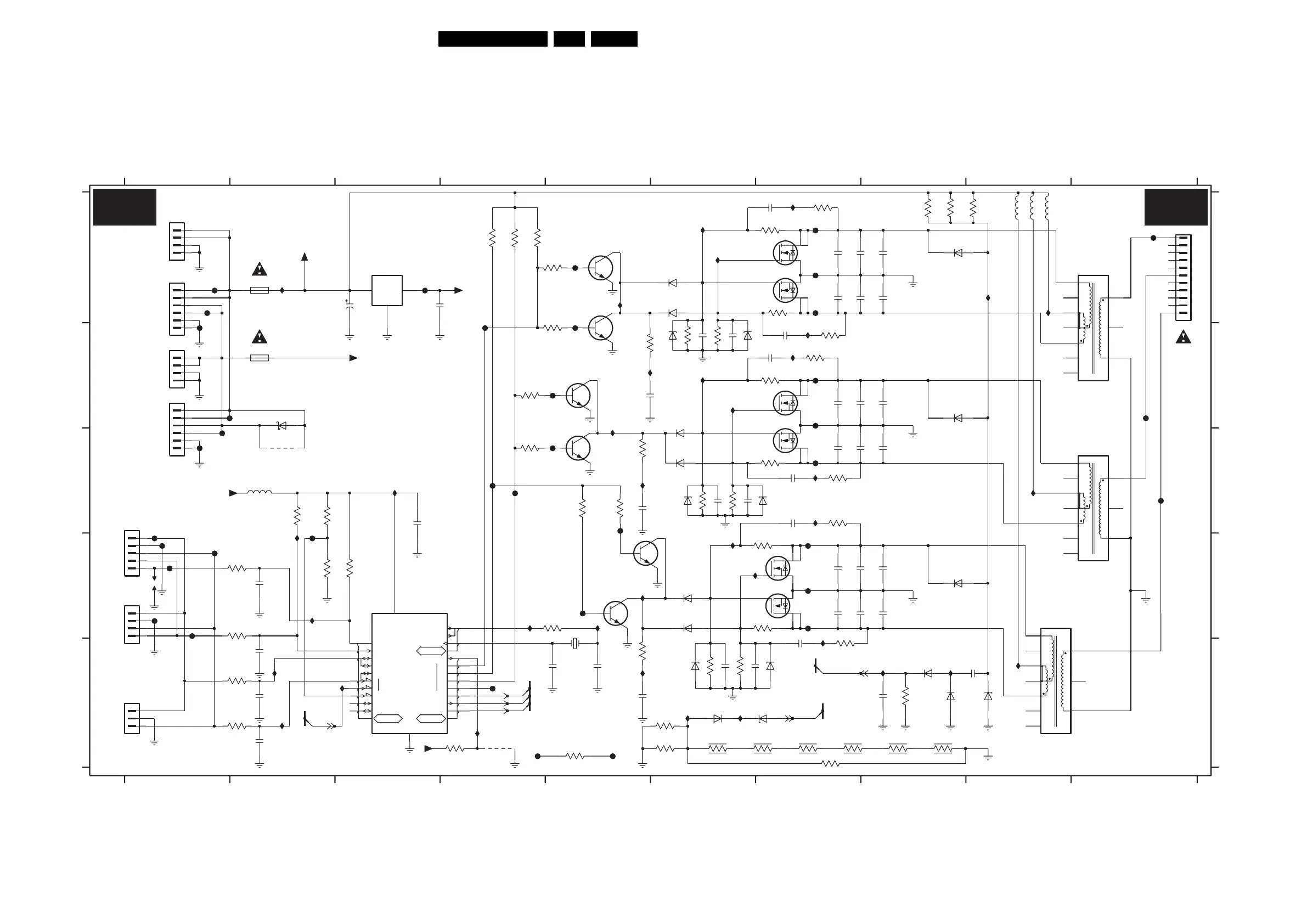
Circuit Diagrams and PWB Layouts
67BJ3.0E PA 7.
Ambi Light
COM
OUTIN
1A
CMPREF
CMP1
T1
1
6
INT
CIN
SDA
T0
P1<0:7>
CLKOUT
7
CMP2
X1
1B
2A
2B
VDD
RST
0
SCL
RXD
TXD
VSS
P0<0:7>
X2
P2<0:1>
AL3
AL2
D
E
AL2
BLUE
A
B
C
D
E
0101 D1
1010 A2
1011 B2
1060 D5
1M08 A1
1M09 A1
1M10 B1
1M11 A10
1M12 B1
1M39 E1
1M49 D1
1M59 C1
2001 A3
2002 A3
2007 E6
2008 E6
2009 C6
AL1
2042 B8
2050 C7
AL1
AL3
123456789 10
123456789 10
A
B
C
3006 D7
3007 D7
F 3A
SI4946
SI4946
2010 C6
2011 B6
2012 B6
2013 E5
2014 C5
2015 B5
2016 E5
2017 D2
2018 E2
2019 E2
2020 A7
2021 A7
2022 A8
2023 E2
2024 C3
2030 A7
2031 A7
2032 A8
2040 B7
2041 B7
3025 C4
3026 D2
SI4946
2051 C7
2052 C8
2060 D7
2061 D7
2062 D8
2070 D7
2071 D7
2072 D8
2073 E5
2078 E8
2080 A7
2081 B7
2082 B7
2083 C7
2084 C7
2085 D7
2086 E9
3004 E6
3005 E6
3052 B7
3053 C7
AL2
AL2
AL2
3008 C6
3009 C6
3010 C7
3011 B7
3012 B6
3013 B6
3014 A7
3015 A7
3016 C2
3017 B5
3018 A4
3019 A4
3020 A4
3021 D2
3022 D3
3023 D2
3024 C5
6005 D6
6006 B6
GREEN
SI4946
SI4946
3027 E8
3028 C2
3029 A5
3030 B4
3031 C5
3032 E7
3034 E5
3035 C5
3036 B5
3037 E2
3038 E2
3039 E4
3041 D5
3042 E6
3043 E7
3044 E7
3045 E7
3046 E8
3047 E8
3050 A7
3051 B7
7015-2 A7
7016-1 B7
3054 C7
3055 E7
3060 A8
3061 A8
3062 A9
3064 E6
3065 E6
3999 E5
5002 A9
5007 A9
5008 A9
5011 C2
5014 A10
5015 C10
5016 D9
6000 A6
6001 A6
6002 B6
6003 C6
6004 D6
F011 D1
F012 D1
RED
AMBI LIGHT
6007 B6
6008 C6
6009 C6
6010 E6
6011 E7
6012 B2
6013 E8
6014 E8
6015 E6
6016 D8
6017 E7
6018 B8
6019 E9
6020 A8
7002 A3
7003 D3
7009 A5
7010 C5
7011 D5
7015-1 A7
F049 E4
F050 B5
TO
SI4946
7016-2 C7
7017-1 D7
7017-2 D7
7018 A5
7019 B5
7020 D6
9000 E4
9001 C2
A027 A10
A028 B10
A029 C10
F001 B4
F002 C4
F003 C4
F006 C2
F007 E1
F009 D1
I022 E6
I023 E6
F 3A
F013 D1
F014 D1
F018 C1
F019 C2
F020 B2
F022 B1
F023 A1
F025 A1
F026 A3
F034 D7
F035 D7
F036 D7
F037 C7
F038 B7
F040 B7
F041 A7
F042 A7
F043 A7
F045 A5
F046 C5
F047 D5
F048 A5
I044 C7
I045 D7
WARNING HIGH VOLTAGE
F060 D5
F098 E4
F099 E5
I001 A2
I002 C3
I003 A9
I004 D5
I005 B5
I006 A5
I007 A6
I008 A6
I009 B6
I010 B6
I011 D6
I012 D6
I013 E3
I014 D2
I015 D2
I016 E6
I017 C6
I018 B6
I019 E8
I030
AL2
CCFL
I026 E2
I027 E2
I028 E9
I029 C9
I030 A9
I031 D4
I032 D5
I035 E4
I036 E8
I040 A7
I041 B7
I042 B7
I043 C7
I028
3062
3K3
5007 22u
I002
6011
BZX384-C18
6001 BAS316
1R0
3047
560R3013
F012
3038
560R
F014
3021
100R
6015
BAS316
22n
2015
F007
2014
22n
BC847BW
7019
6008
BZX384-C18
2019
1n0
2061 47n
3008
470R
1010
F037
4
5
6
7
9
220R
3041
1
11
132
3
120R
5011
BD21416-00
5014
5
6
4
3
7016-2
470R3004
A027
A028
2021 47n
BAS316
6003
I018
6020
BAS316
F018
2050
47n
1
2
3
4
5
1M59
I036
1M39
B3B-PH-K
1
2
3
I035
STPS2L30A
6012
3065
68K
2081
100p
2082
100p
2080
100p
2009 6n8
F038
1n0
2023
2008 6n8
LD1117DT
7002
1
32
1M12
1
2
3
4
B4B-PH-K
F098
3050
47R
2032 47n
F023
47n2031
47R
3055
100p
2085
I001
BAS316
6000
1M49
1
2
3
4
47n2052
BZX384-C10
I029
6019
2086
1n0
7018
BC847BW
F049
F050
7017-2
5
6
4
3
+5V
F040
F003
4K7
3018
I045
I044
I042
I043
3K3
3061
BAS316
6018
4
5
6
7
8
9
1011
1
10
11
2
3
+5V
B11B-XASK-1
1M11
2051 47n
F009
3035
47R
4K7
7
8
2
1
3031
7017-1
F026
I013
7010
BC847BW
6002
BAS316
47n2041
47n2062
F006
3
4
560R
3037
B4B-PH-K
1M09
1
2
2012 6n8
F036
F034
3019
4K7
F013
5
6
4
3
I006
7015-2
9001
5
2078
10n
12
11
10
9
8
4
3
2
7
6
15
1
20
19
18
17
16
14
13
Φ
uC
P87LPC764BDH
7003
4Kb OTP
F022
15p
2016
5002 22u
I026
3
4
5
6
3023
100R
1M10
B6B-PH-K
1
2
I023
F002
I005
GND-HV
22n
2013
F019
F020
1K0
3006
2072 47n
F041
7015-1
7
8
2
1
6n82007
47R
100p
3054
3053
2084
47R
100p
2083
3052
47R
47R
3051
BC847BW
7009
I008
4K7
3020
I011
I015
I014
I027
I032
BC847BW
7011
22u5008
6n82010
3007
1K0
3060
3K3
6014
BAS316
+12Va
47n2022
I022
1K0
3014
20M
1060
6007
BZX384-C18
GND-HV
16V1m0
2001
3046
1R0
7020
BC847BW
12-13V
A029
4K7
3017
1
2
3
4
5
6
1M08
B6B-PH-K
6n82011
F001
3026
1K0
4K7
3016
I017
I041
47R
3034
3027
15K
F042
3029
4K7
F025
F043
I012
6009
F060
BZX384-C18
F048
1M0
3032
4K7
3025
9000
10K
3039
47R
3036
I007
I004
47n
2070
2060
47n
47n2071
BZX384-C18
6006
1K0
3015
1n0
2017
3042
1R0
1n0
2018
I040
10K
3999
470R3012
100n
2024
3028
10K
6017
BZX384-C15
F045
560R3005
2020
47n
BZX384-C18
6010
47n
2030
I009
I031
I010
0101
6013
BAS316
1R0
30453044
1R0
3030
4K7
3009 560R
BAS316
6004
I003
7
8
2
1
7016-1
I016
1R0
3043
47n
2040
2042 47n
3022
4K7
6005
BAS316
1K0
3011
6016
BAS316
I019
+5V
2
3
4
5
6
7
9
BD21416-00
5015
1
11
13
11
132
3
4
5
6
7
9
BD21416-00
5016
1
F035
4K7
3024
2073
15p
F011
F047
F046
100n
2002
F099
3010
1K0
3064
68K
PROT
PROTB
PROT
R2
G2
B2
AL1 AL1
G_15960_142.eps
300306
3104 313 6097.5

Table of Contents

Related product manuals