EasyManua.ls Logo

Philips BJ3.0E - AD3 DISPLAY SUPPLY: PRECONDITIONER

Philips BJ3.0E
176 pages
Print Icon
To Next Page IconTo Next Page
To Next Page IconTo Next Page
To Previous Page IconTo Previous Page
To Previous Page IconTo Previous Page
Loading...
62BJ3.0E PA 7.
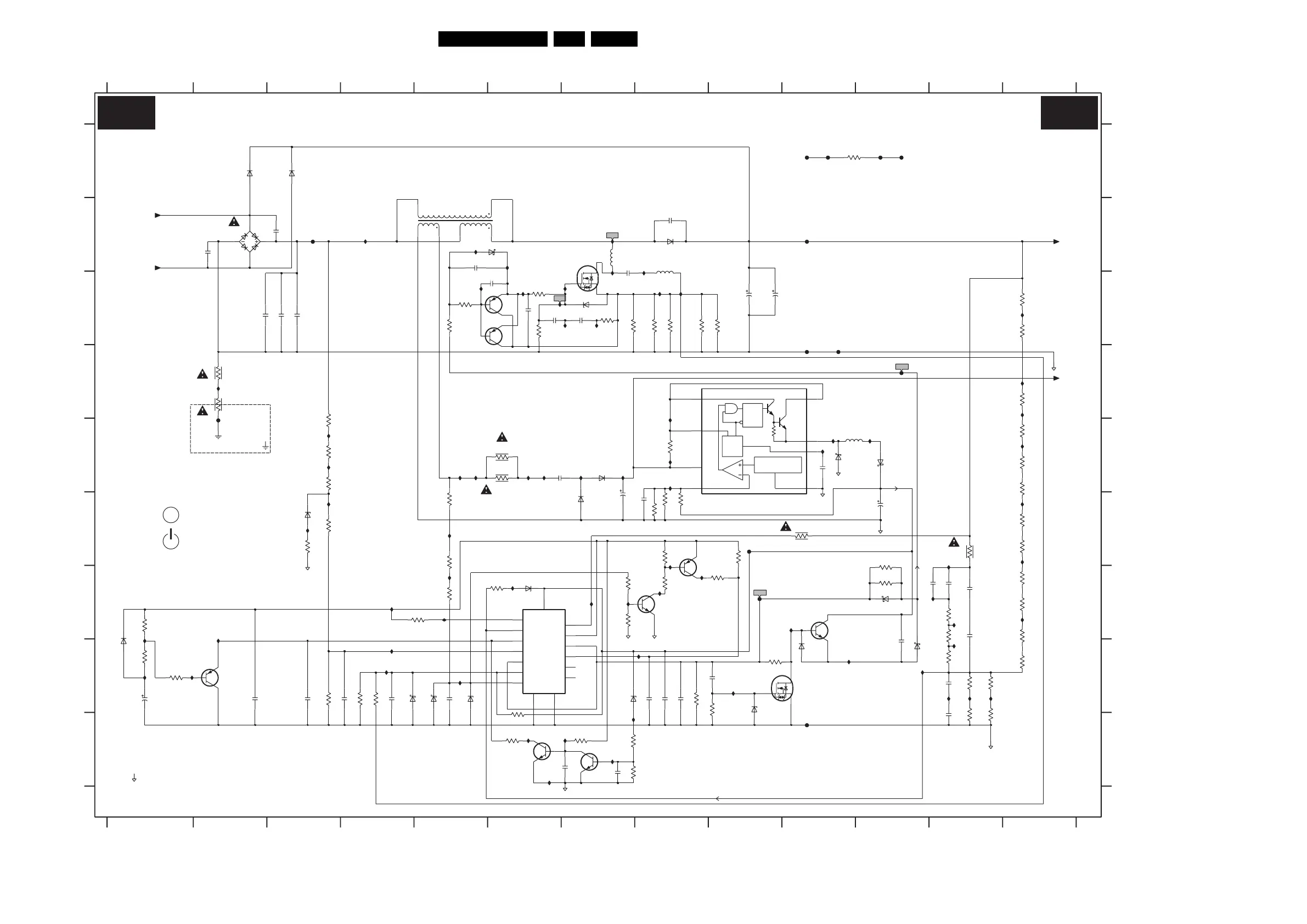
Circuit Diagrams and PWB Layouts
Display Supply FHP: Preconditioner
RD
FB
COMP
MULT
LEB
CS
ZCDET
AGND PGND
NC2
NC1
FC
GATE
VREF
LINE
VCC
I653 F5
I654 C5
CONTROL
D
I670 E13
I671 C13
I672 D13
I628 G12
I629 H11
I630 C8
I631 E5
I632 E6
I633 H1
I634 B6
I635 C7
I636 H12
I637 F3
I638 E10
I639 E8
PRECONDITIONER
(0V)
DISPLAY SUPPLY: PRECONDITIONER
I651 E3
I652 G5
HOT GROUND
I611 E6
I612 E7
I613 E7
I614 B8
I615 H1
I616 G5
I617 G2
I618 H4
I655 C7
I656 E8
I657 G12
I658 H12
I659 F13
I660 F13
I661 G13
I662 H12
I663 G1
I664 I6
I665 I7
I666 I6
I667 I7
I668 I7
I669 D13
CONTROL
F602 D2
F604 D10
F605 D10
F606 I10
F608 D11
F609 F9
F610 G9
F996 A10
F997 A10
F998 A11
F999 A11
I601 C6
I640 E11
I641 E8
I642 E10
I643 G7
I644 G8
I645 G8
I646 G8
I647 F3
I648 H12
I649 G6
I650 E3
STANDBY ( . . . )
6663 E10
6665 E11
6666 H7
7601 G8
7602 F8
7608 C6
7609 C5
7610 B7
I619 H4
I620 H5
I621 G4
I622 G7
I623 H8
I624 H9
I625 G10
I626 H10
I627 F12
32V
6605 A3
6606 A2
6608 B6
6609 C7
6611 B8
6640 G11
I602 D2
I603 B4
I604 B7
I605 B5
I606 C6
I607 C6
I608 C7
I609 C8
I610 E5
1V5 (0V)
3683 G12
3684 G12
3685 H12
3686 C7
3690 I7
3691 I7
3692 I7
3693 I6
3694 F13
3695 G13
7640 H10
7641 G10
7650 G6
7654 H2
7655 I7
7656 I6
7661 D8
F600 B10
F601 B3
3659 G5
3660 F5
3661 F5
3662 E6
3663 E6
3664 H12
3665 F9
3666 H4
3667 I6
3668 F10
3669 I12
3671 I12
3673 F12
6641 H10
6642 H11
6643 H9
6651 H5
6652 H4
6653 H5
6654 H1
6660 F7
6661 E7
3615 C8
3616 G9
3617 G7
3618 G7
3619 F8
3620 C8
3621 C8
3622 C9
3623 G6
3639 H8
3640 H9
3641 H9
3642 G11
3643 F11
3696 H13
3999 A10
5600 A5
5601 B8
5612 B7
5660 E10
6600 B2
6601 F3
6602 G6
(0V)
2671 H12
2672 H8
2673 G12
2674 G12
2675 G11
2676 G12
2677 C7
2690 I7
2691 I7
3104 H12
3601 D2
3602 D2
3603 E3
3604 E3
3674 E13
3675 E8
3676 F8
3677 F8
3678 F8
3679 E13
3680 F13
3681 G13
3682 G13
3614 C7
2605 C3
2608 H8
2610 B7
2611 B8
2612 B5
2613 C6
2614 C6
2616 C9
2617 C9
2640 H8
2642 H11
2651 H3
2653 H5
3645 E13
3646 D13
3647 C13
3648 C13
3651 H3
3652 G5
3654 G1
3655 H1
3656 H1
5V
2666 H4
2670 I12
45678910111213
1234
3605 F3
3606 C5
3607 F3
3608 C5
3609 E3
3610 C6
3611 C6
3612 H4
3613 G8
BIAS
COLD GROUND
PRECONDITIONER
A
B
C
D
E
F
G
H
I
A
B
C
D
E
2654 H1
2655 H3
2656 H2
2660 E10
2661 F8
2662 F11
2663 E6
2664 F7
2665 H8
MEASURED DC-VOLTAGES
G
231
2W
5 6 7 8 9 10111213
2W
S
2W
NORMAL . . .
F999
F
G
H
I
2600 B3
2601 B2
2602 C6
2603 C3
2604 C2
2617
I601
400V220u
3620
0R27
1u0
2603
F997
50V
I628
2664
100u
I659
I660
I624
BC369
7608
I620
I643
I623
2K2
3693
RES
I633
F610
4M7
3602
I654
5601
50R
3
VCC
6
I653
CIN_NEG5
DCOL8
GND 4
IS7
SWC 1
SWE 2
TIMC
7661
MC34063AD
REGULATOR
REFERENCE
OSC
IPK
Q
R
S
I631
F606
3643
220R
I629
50V
2640
470p
3694
68K
1% 1%
68K
3680
I607
3681
68K
7654
BC857BW
NFR25H
I637
1K0
3668
220R
3642
16V
2671
100n
50R
5612
3606
100R
3655
1K0
I666
BZX384-C18
6643
I645
I664
7609
BC869
3683
330K
I634
I657
I656
F609
I662I648
I639
2601
1n0
3678
47K
1000V
RES
SW25V_HOT
3601
4M7
I608
I612
3616
12K
1n0
2661
3
2
1
4
6600
GBU8J
I609
3607
220K
470K
3603
I644
330K
3684
3677
47K
3673
1K0
NFR25H
16V
2670
100n
6653
BZX384-C8V2
I658
I602
6652
SS14
I638
I650
RES
I619
100-230VAC1
2605
I646
I667
I668
1K0
3639
F605
6661
BYG22D
1n0
2608
50V
50V
2663
1u0
6606
S3J
1n0
2612
50V
I655
50V
2653
680p
I635
1m0
2662
25V
7602
BC857BW
RES
BC847BW
7601
400V_HOT
2604
I621
2616
220u 400V
SS14
6663
I640
2691
1n0
2654
47u 16V
I614
I661
6640
SS14
I611
614
16
100R
3666
BS42228-02
5600
1
2
4
I605
6611
FESF8JT
3679
68K
3661
270R
1%
NFR25
3685
330K
3663
1R0
I663
2R2
1%
3622
3671
10K
3618
33K
6602
BZX384-C15
I615
7640
BSH112
0R27
3615
I636
68K
1%
F998
3696
1%
68K
3695
50V
2665
470p
7610
STW29NK50Z
10n
1M0
3652
1%
630V
2674
68K
3682
F601
F602
I632
6666
PDZ8.2-B
I652
6654
BAS316
50V
2613
1n0
BZG05C18
6609
7655
BC847BW
3686
15R
3R3
3610
3611
10K
2R2
3621
F996
3613
10K
F600
BAT54 COL
6651
1n0
2642
50V
10n
2675
630V
22K
3651
470K
3605
3617
47K
14
15
10
2
12
1
7
8
4
6
3
13
11
9
16
5
7650
MC33368P
1K0
3999
1000V
2600
1n0
3K9
3690
3674
68K
1%
100n
2672
2676
10n 630V
I610
I603
470R
3641
3604
470K
I606
1n0
2690
3664
220K
7641
BC817-25W
SS14
6608
6660
12R
3608
BYG22D
2n2
2614
3609
470K
50V
2666
4n7
BC847BW
7656
I669
I670
1%
68K
3648
100n
2656
2n2
2677
I626
2610
1n8
I617
3614
0R27
3647
68K
1%
3K3
220R
3659
I672
3619
I671
I627
1%
1K0
3104
3665
270K
I616
3612
2K2
S3J
2602
2n2
6605
10K
3692
8K2
3691
10n
2673
630V
10K
3667
I665
6601
BZX384-C39
2000V220p
2611
3662
NFR25
RES
6641
BAS316
1R0
SS14
6642
1% 1%
68K
36463645
68K
10K
3654
3669
68K
F608
I647
I649
1K0
3623
SS14
6665
I651
5660
220u
16V
2655
1u0
270R
3660
470R
3640
I641
I618
I642
I613
F604
I622
I625
4K7
3676
I630
2660
470p
100-230VAC2
1R5
3675
I604
1K8
3656
16V
2651
10n
AD3 AD3
G_15960_003.eps
060206
3104 313 6126.3

Table of Contents

Related product manuals