EasyManua.ls Logo

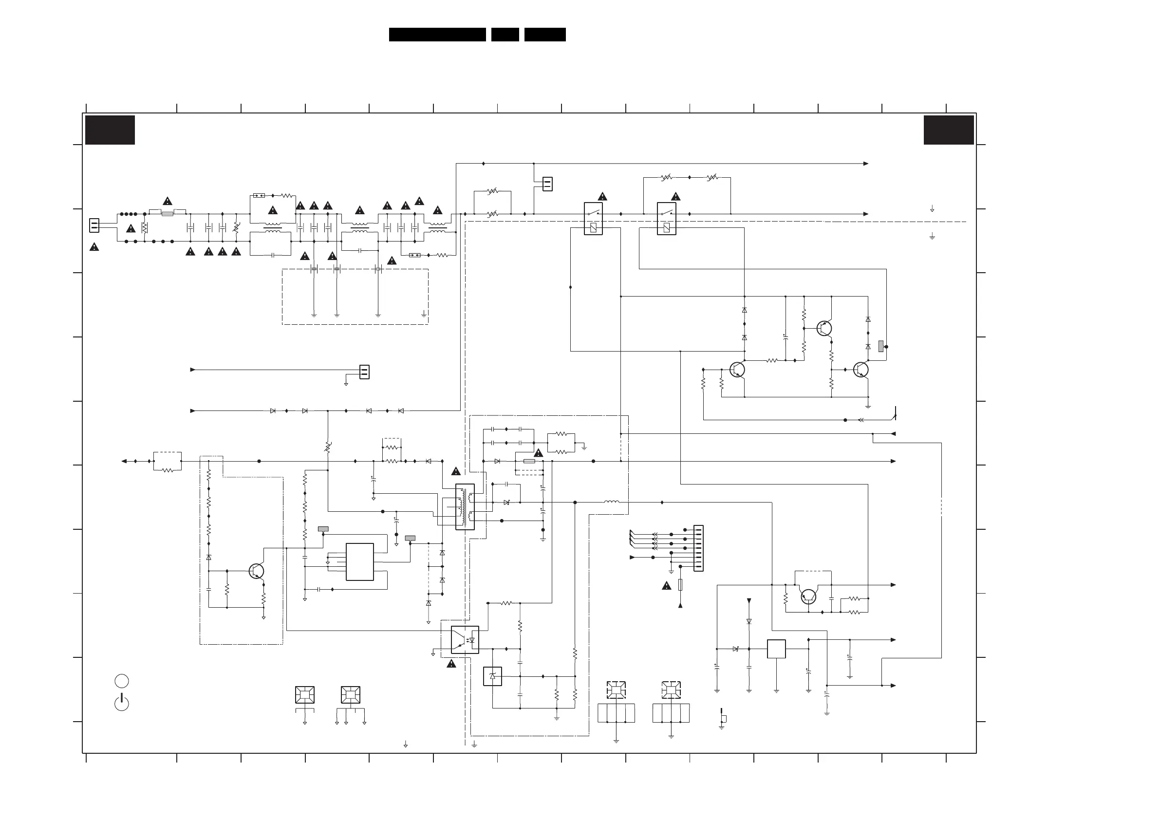
Philips BJ3.0E - Circuit Diagrams and PWB Layouts; AD1 DISPLAY SUPPLY: FILTER STANDBY

Philips BJ3.0E
176 pages
Print Icon
To Next Page IconTo Next Page
To Next Page IconTo Next Page
To Previous Page IconTo Previous Page
To Previous Page IconTo Previous Page
Loading...
60BJ3.0E PA 7.
Circuit Diagrams and PWB Layouts
7. Circuit Diagrams and PWB Layouts
Display Supply FHP: Filter Standby
+T
+T
V
-T
-T
COM
OUTIN
+T
F503 F8
F504 F7
F505 G7
F506 G9
F507 F9
F508 G9
F509 G9
F510 G9
F511 G9
I508 F4
I509 G4
I510 G5
I511 G6
I512 H6
I513 H7
I514 I7
I515 E7
I516 B5
I517 H11
I531 G2
I532 E5
I533 G3
I409 A9
I410 A7
I411 C10
I412 D10
I413 C11
I414 D11
I415 D12
I416 D12
I417 C12
9401 G11
F401 B1
F402 B1
F403 B1
F404 B1
F405 B1
F406 B1
F407 B1
F408 B1
I418 E7
I419 E1
I420 E1
I501 E3
I502 E4
I503 E5
I504 E4
I505 E6
I506 E6
I507 F6
6510 E3
6511 E3
6512 E5
6513 E5
7460 D10
7461 G11
7462 G3
7465 C12
7470 D12
F512 G9
COLD
*
*
600V
F513 G9
F514 E3
I400 A3
I401 A2
I402 B4
I403 B4
I404 B5
I405 A6
I406 A8
I407 C8
I408 A9
3514 H3
3515 E7
3516 E7
3517 F1
5005 B4
5401 B3
5402 B6
5500 F6
5503 F8
F409 B1
TO
NORMAL . . .
ERC12
ONLY USED WHEN
F410 B1
F411 D13
F412 E12
F500 F5
F501 G5
F502 E8
3451 A10
3452 A6
3460 D10
3461 D10
3463 D11
3465 D11
3467 C11
3469 D12
3470 D12
7500 G4
PLATFORM
495
7501 H6
7502 I6
7540 I11
9003 F7
9004 F7
9023 G5
9025 G5
9028 E8
9029 F13
9030 E5
9031 E1
2512 I7
2513 G4
2514 G2
2532 I12
2533 I12
2534 H12
2540 I10
2541 I11
2542 I10
6460 D10
T2A/250V
6461 C10
6470 D12
6471 C12
6501 G6
6502 H5
6503 E5
6504 E6
6505 F7
6506 G6
6507 H10
6508 H10
6509 G2
2019 C4
2400 B2
2401 B5
2402 B2
2403 B5
2404 B3
2405 C4
2406 B4
2407 C5
3471 G12
3472 H12
3473 H11
3501 H7
3502 H7
3503 I7
3504 I8
3505 H8
3506 E4
3507 F3
3508 E5
3509 E5
3510 F2
3511 F2
3512 G2
3513 G2
F
G
H
I
A
B
C
D
E
3026 G3
FILTER
T6,3AH/250V
3035 F3
3036 B6
3400 B2
3401 B1
3402 B6
3404 A3
3450 A9
7891011
COLD
12 13
2408 B4
BS16421-00
GROUND
2465 D11
2501 E6
2502 E7
2503 F5
2504 G3
2505 F4
2506 E7
2507 E6
2508 F7
2509 F7
2510 F7
2511 I7
10 11 12 13
1
PLATFORM
F
MEASURED DC-VOLTAGES
600V
1P22 D4
2001 B4
2002 B2
2003 B3
2004 B5
1405 I9
1406 B5
1450 A8
1460 A9
1P02 A7
A
MAINS
STANDBY SUPPLY
PDP (DISPLAY)
CN11
19382
GROUND
INPUT
HOT
B
C
D
E
I522 E7
I523 H6
I524 F4
I525 F4
I526 H12
95-264Vac
SUPPLY
RELAY CONTROL
MAINS
GROUND
TO
COLD
600V
GROUND
PLATFORM SUPPLY
23456
I527 H11
I529 F2
I528 F2
I530 G2
ONLY USED WITH
NO PLATFORM SUPPLY
PR02
CONTROL
DISPLAY SUPPLY: FILTER STANDBY
SUPPLY
1 23456789
TO
I518 E5
I519 F9
I520 A6
I521 B5
GROUND
STANDBY (. . .)
HOT
G
H
I
0201 I4
0203 I3
0308 B1
0309 I10
0311 F10
1004 G9
1005 E7
1400 B1
1402 A3
1404 I8
2
3
4
5
6
7
8
9
SDT-SS-105DM
G5PA1ME5DC
SDT-SS-105DM
G5PA1ME5DC
B9B-PH-K
0311
1
9003
I416
1004
1P22
B2P-VA-BF-BK
1
2
I523
BC817-25W
7460
I402
3461
10K
F402
25V_HOT
F511
1K0
3472
9004
I400
10K
3463
9029
1K0
3473
3451
232266293
10R
12R
3509
100-230VAC1
232266293
3506
10R
3026
680K
1%
3503
4K7
F501
220R
3404
I511
F512
VCC-5V
0308
B2P-VA-BF
1
2
F503
DMF28
5005
12
34
I418
16V1m0
2510
I532
16V100u
2508
I530
I531
1
2
3
4
+9V_STBY
0201
HEATSINK
I528
47p
2406
1000V
1405
EMC HOLE
I413
0203
1
2
3
1n0
2504
50V
F408
I509
2408
470n
6509
BZX384-C22100n
2514
I410
6511
BYG10
F401
I417
I510
6461
BAS316
GROUND
I533
F505
3K3
3469
10K
3465
100R
3514
560R
3512
10u
5503
3502
470R
2004
470n
6501
BZT03C200
3V3_DISPLAY
F504
GROUND
F502
2505
1m0 50V
VR37
1M0
3401
BC857BW
7465
I503
9025
3471
1K0
BYG10
6513
470n
2001
500V
1402
DSP-501N
GROUND
BAS316
6460
6470
BAS316
2542
100n
F500
F405
I526
I414
1P02
B2P-VA-BF
1
2
400V_HOT
33K
3504
3507
680K
6508
S1D
6512
BYG10
BC817-25W
7470
2
3
4
5
6
7
8
9
5500
1
I529
3
4
3513
560R
5402
DMF28
1
2
1R0
B57464
3036
F406
I506
2322595
3400
3501
1K0
16V
100u
2465
2532
100u
I527
16V
6506
BZT03C200
F509
470n
2402
7
S5
8
250V
2407
470p
BP
1
D
5
EN|UV
4
S1
2
S2
3
S3
6
S4
TNY256P
7500
I409
I408
I517
F407
F403
16V
2533
100u
I407
2002
470n
F514
I411
I508
2541
100u 16V
3505
4K7
250V
2405
470p
1%
470n
2003
100-230VAC2
1450
12
34
400V_HOT
BAS316
6471
F507
I404
SS34
6505
470n
2400
6507
SS34
470n
2403
0309
I405
0-106451-1
F410
1u0
2534
I512
5401
12
34
DMF28
400V47u
2503
I519
181
1400
680p
2501
9030
9401
I507
2502
100p
2507
100p
1460
12
34
3452
B57464
3510
1R0
+5V_INT_SW
470R
+5V_STBY
F404
I502
I401
I419 I420
BC847BW
7462
I505
F513
16V
2512
100n
I524
I518
EMC HOLE
1404
I406
10R
3517
9031
7461
BC869
RELAY_VOLTAGE
I504
VCC-5V
I513
F506
2401
470n
I522
100n
2511
16V
GROUND
I520
1000V
2404
47p
2
3V3_DISPLAY
7502
TS2431
3
A
1
K
R
3516
1K0
1K0
3515
I514
F411
RS1J
6503
12
I403
16V100u
2540
680K
3035
F 750mA
1005
I516
500V
1406
220R
3402
2
3508
6R8
RS1J
6504
1
F412
BYG10
6510
F510
BZT03C200
6502
I521
9023
100p
2509
50V
I525
9028
3460
1K5
I515
2506
680p
F508
3511
470R
I412
F409
14
32
I415
7501
TCET1102(G)
10K
3470
10R
3450
232266293
100n
2513
50V
470p
2019
250V
3467
10K
2
I501
LD1117DT33
7540
1
3
VSAGO
VCEGO
VRS
VRA
SUPPLY_ON
AD1 AD1
G_15960_001.eps
060206
3104 313 6126.3

Table of Contents

Related product manuals