EasyManua.ls Logo

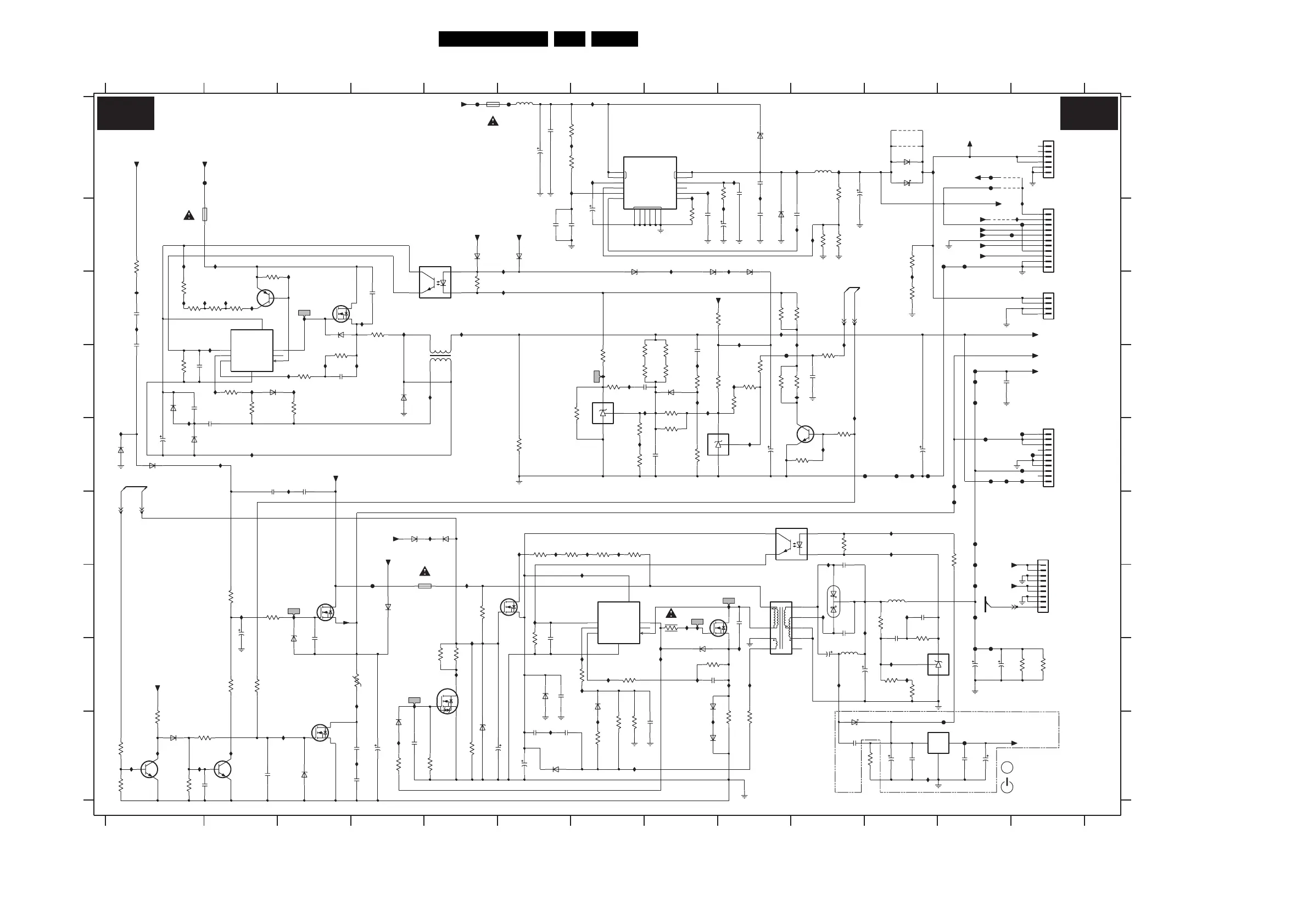
Philips BJ3.0E - AD5 DISPLAY SUPPLY: AUX SUPPLY

Philips BJ3.0E
176 pages
Print Icon
To Next Page IconTo Next Page
To Next Page IconTo Next Page
To Previous Page IconTo Previous Page
To Previous Page IconTo Previous Page
Loading...
64BJ3.0E PA 7.
Circuit Diagrams and PWB Layouts
Display Supply FHP: AUX Supply
CTRL
DEM
ISENSE
GND
DRAIN
HVS
DRIVER
VCC
CTRL
DEM
ISENSE
GND
DRAIN
HVS
DRIVER
VCC
+T
COM
OUTIN
SYNC
COMP
OUTVCC
V5.1
VFB
OSC
BOOT
GND
INH
SS
F380 B13
F382 B13
I219 H8
I220 H4
I221 H7
I222 I4
I223 I7
I224 I7
I225 I1
2V5 (0V)
I162 C2
I163 C2
I164 C1
3262 A6
3263 A6
3264 A9
3265 B8
3267 B10
3268 B10
3269 A10
5121 C5
5220 G9
5225 G11
Vs_unsw
T2A/250V
I203 I1
I204 I2
I207 I1
I208 H5
I209 H9
I210 G5
I211 F5
81V
11V5(0V7)
TO
MEASURED DC-VOLTAGES
(0V)
81V
F134 F12
F135 G12
F136 G12
F138 H12
F139 H12
F140 G12
F260 A5
F264 A12
F265 A6
I147 C2
I148 H9
I152 C9
I158 C1
I159 E1
I160 E2
I161 G2
I165 E3
I166 F6
I167 F7
I168 F7
I169 H8
I170 H10
I171 H11
I173 A6
I174 D9
I175 A10
I176 B9
I177 C11
I200 G3
I201 H3
I202 I3
I124 D7
I125 D9
I126 D8
I127 D8
I128 D8
I129 E10
I130 A9
39812
FROM
I131 E7
I132 E9
I133 B9
I134 B10
I135 C6
I136 B10
I137 B13
I138 A10
I139 A7
I140 B8
I141 A8
I142 A6
I143 I6
F127 E11
F128 E11
F129 E12
F130 D12
F131 D12
F132 E13
F133 E12
TO
NORMAL . . .
AMBI LIGHT
NC
SFR16
I110 D3
I111 B13
I112 D3
I113 D1
I114 E2
I115 D2
I116 D2
I117 D3
I118 D4
I119 D10
I120 D8
I121 D7
I122 E10
I123 D9
9001 A13
9008 B12
3137 D8
3138 D8
3143 E6
3147 D9
3149 G8
2V5 (0V)
SSB
D
CONTROL
F111 D9
F113 G4
F114 I12
F115 A12
F116 I12
F118 E12
F119 E12
F120 F12
F121 E13
F122 B12
F123 E13
F124 B12
F125 E11
F126 E11
3113 D2
3114 D2
3062 H2
3063 D10
3079 D9
3083 H2
3084 I1
(0V)
VS
7120 B5
7121 D7
7130 E8
7134 E10
7200 G6
7202 H5
7212 G7
7217 G9
7220 F9
7227 H12
7230 I12
7260 A8
9000 A13
2234 I11
2235 I12
2236 H12
2237 H12
2260 B6
2261 A6
2262 A6
CONTROL
(0V)
NO PLATFORM SUPPLY
CN23
3085 I1
3086 I2
3087 I1
3088 I1
3101 D9
3106 C1
3107 C1
3108 C2
3109 C2
3110 C2
3111 C5
3112 D1
2203 I4
2205 I5
E
F
G
H
I
Adj.
NC
(0V)
1
2215 I6
2217 H8
2218 G9
2219 I8
2222 G10
2223 F10
2225 H10
2226 G11
2227 G11
2229 H10
2230 I11
2231 I12
2232 I10
4567891011
ONLY USED WHEN
TO
TO
2111 D1
2112 D1
2113 E1
2114 E2
2117 D3
2118 C4
2121 E11
2122 D8
2123 D7
2126 E8
2133 E9
2051 H6
2054 C1
2055 E2
2056 D1
2057 E3
2058 G2
2059 I1
2061 I2
11V4 (0V)
MP200
SEQUENCE
19382
DISCHARGE
2345678910111213
123
I247 B9
I248 C4
3135 E10
3115 D3
3116 D3
3117 D3
3118 C4
3119 D7
3058 G2
12V4 (OV)
G
PROTECTION
0323 E13
1007 F13
1110 B1
1200 G5
1260 A5
1M08 C13
1M10 A13
1M46 B13
2021 I4
2050 H3
3053 H4
3055 B1
I215 G6
I216 G8
3216 H7
3217 H8
3218 I9
3219 I7
3220 I9
VCC
0V5 (0V)
3136 E10
0V (0V)
I230 F11
I231 F11
I233 F10
I234 G11
I235 G11
I236 G9
I237 H11
I238 G10
I240 H9
I242 B8
I243 I11
I244 I3
I245 I8
I246 B6
3133 C8
3134 D10
3210 H11
3212 H6
3213 I7
3214 H7
6120 D4
6123 D8
6132 B6
6133 B5
6142 G4
6201 B8
6202 I4
6203 B7
VA
I217 H7
2263 B6
2264 B8
2265 A9
2266 B9
2267 B9
2268 B10
2269 A10
2270 B7
2271 A9
2273 D12
2274 D10
3051 G2
I213 G5
I214 G7
6086 I1
6111 D1
6112 E1
6113 D2
6114 B9
7058 I1
7059 I2
7110 C2
7112 C2
7117 C3
0V5
35V(4V)
S
63V (0V)
3120 D7
3121 D7
3122 D7
3123 D8
3124 D8
3125 E8
3126 E7
3128 E8
3130 D8
3131 D9
3132 E7
3208 F7
3209 F7
3226 G11
3228 F12
3229 F10
3230 C9
3231 C10
3235 I10
3236 H13
I101 B2
I102 B3
I103 A7
I104 A11
I105 B1
I106 C3
I107 C4
I108 D5
STANDBY (. . . )
T5A/250V
VA
I218 H7
VCC-SUPPLY
I212 F6
6061 I3
6062 H6
1%
12 13
A
B
C
D
E
F
G
3215 I7
0V (0V)
3150 D7
3200 G5
3201 H5
3202 H5
3203 I4
3204 I5
3205 I5
3206 F6
3207 F7
3224 G11
3225 H11
7052 I3
600V
0V
VS
6204 F4
6205 I5
6206 F5
6207 A11
6208 A11
6211 I6
6213 H7
6216 H8
I109 D2
DISPLAY SUPPLY: AUX SUPPLY
99V
(0V)
6117 C3
5229 H10
5260 A6
5268 A10
6050 H3
6054 E1
6055 E1
*
19382
I249 C5
I673 G8
I674 H8
I675 C1
I902 C10
9012 A11
9013 A11
F102 D12
F106 E13
F110 A1
PDP
7050 G3
H
A
B
C
+12V-SUPPLY
3237 H13
AMBI LIGHT
3221 B11
3222 C11
F122
6225 G10
6230 I10
6267 B9
6268 A9
6269 H8
6270 I8
2210 I6
2211 I6
2212 H6
2213 I4
2214 I4
D
(DISPLAY)
I143
I129
I176
I177
100p
2271
150R
3222 3221
150R
I214
6061
BZX384-C18
F380
3n3
2123
50V
I237
10p
2219
I223
F110
3108
2K7
47K
3135
F260
1260
2211
470p
I247
470p
I131
1K0
3116
2215
VTUN
50V
2054
220p
50V
2055
1n5
2051
10n
100p
2227
50V
I238
I207
1%
150R
3228
3124
7K5
16V100n
2226
7202
BSH112
I221
1%
3131
10K
1%1K0
3101
2235
1u0
9013
RES
I163
I130
6201
BZX384-C3V9
F140
220n
2114
I673
I133
3134
330R
1K0
3062
1%
3147
10K
1%
3n3
2218
1600V
+5V_INT_SW
7K5
3125
7200
BSH114
2121
2200u
100V
3115
220K
3084
2225
2m2
25V
10K
3231
330R
1K0
3083
6267
SB540
16V
2217
330n
1110
35V
2205
4u7
3051
8K2
50V
2050
22n
1200
2231
47u
16V
2n2
2263
I109
100u
5260
6112
BAS321
F118
I158
330n
2117
16V
3268
1K0
I116
3114
560K
2K7
3107
3143
4K7
3
A
1
K
2
R
+30V
7227
TS2431
I217
6208
SS34
F127
2K7
3206
3
4
8
6
2
7
5
1
SMPS CONTROL
Φ
7112
TEA1507P
1K0
I161
3267
3263
3201
100R
10K
I225
I215
9012
I159
VS
I127
BZX384-C18
6117
F119
5268
100u
BZX384-C18
6216
I112
+12VL
I113
3149
NFR25
4R7
6062
10K
BZX384-C18
BZX384-C18
6205
3219
+8V6
2214
I122
3n3
100R
3202
F125
F382
6054
BAS321
I132
3088
47K
2270
47u
25V
SS34
6230
3079
330R
I119
VCC-5V
220p
2056
50V
S1D
6132
3
A
1
K
2
R
I124
7130
TS2431
I249
I141
BYG10
6270
F113
3262
10K
F132
F111
I108
1%
I211
I104
75K
3122
VCC-5V
F116
SS14
6268
I220
7117
PSMN035
S3J
6142
I222
3118
0R051
6269
BYG10
100n
2203
16V
I139
I142
16V
I117
2229
470u
I231
8
+30V
I248
1
11
12
13
14
4
5
7
BS29238-01
5220
100R
3133
I169
I234
I160
BZX384-C5V6
6204
330K
3200
3218
0R051
3213
33K
3208
2K7
F126
I209
3087
47K
BYW29FP-200
6120
I103
I115
F135
F123
I105
I167
I675
I245
9001
I216
2K7
3209
100K
3204
RELAY_VOLTAGE
4
3
2
16V
10u
2236
7120
TCET1102(G)
1
B6B-PH-K
1M10
1
2
3
4
5
6
I213
F106
BZX384-C18
6050
+30V
I236
470R
3235
I242
10K
3117
220R
3132
330R
3230
1K0
3063
I173
I212
+9V_STBY
1u0
2234
34
I218
BD21232
5121
21
I138
6213
BAS316
1%
3225
10K
I235
I140
3110
1K0
3106
2K7
3
STPS20L40CFP
6225
I101
BAS316
6113
VCC-5V
+5V_STBY
I902
F121
I137
I244
I162
+12V
2266
4u7
6207
SB540
F264
I111
I136
2237
10u 16V
3
4
I106
B4B-PH-K
1M08
1
2
I171
2267
100p
I125
I107
100p
2222
50V
6206
+12V
BAS316
BAS316
6202
1%1K0
3210
PMST5401
I246
7110
560R
3229
F265
3214
120K
6086
BAS316
25V
220u
2113
BAS316
6123
10K
3111
560R
3264
220u
5229
12K
3224
2264
470n
12K
3130
I174
F136
I166
F139
16V
2212
220n
BAS321
6055
F134
I110
F130
I120
6211
BYG22D
50V
2232
100p
2K7
3207
PSMN035
7050
3203
100R
3137
75K
1%
3119
75K 1%
100n
2126
16V
70-90V
70-90V
I240
3136
47K
F115
3121
47K
1K0
3212
8
6
2
7
5
1
Φ
7212
TEA1507P
3
4
2260
470p
SMPS CONTROL
75K
3138
I203
1%
16V2m2
2269
3086
I114
47K
1n0
2112
50V
16V
F129
2230
470u
6133
BAS316
270K
3215
100V3m3
2021
VB
18K
3123
F133
7058
BC847BW
3128
33K
I123
50V
2111
220p
I208
I230
10n
2274
3112
1K0
100n
2061
16V
I118
6203
BZX384-C3V9
250V
2058
1u0
I152
50V
2223
100p
F131
+5V_INT_SW
9000
F120
VCC-5V
BZX384-C4V7
6114
5225
4u7
I102
3
PSMN063
7052
2
1
I164
9008
F128
232266293
10R
3053
3205
150K
3236
150R
150R
3237
1n5
2057
I224
16V
2059
100n
2K7
3109
I147
+8V6
I134
3216
1K0
470K
3113
2K2
3126
100n
2273
3
A
1
K
2
R
7217
PSMN070
TS2431
7121
2K7
3269
10K
3055
F138
10K
3226
I148
3n3
2213
47u
2210
5
6
7
8
9
16V
0323
B10P-VH
1
10
2
3
4
I128
L4940P
7230
2
13
BC847BW
7134
4
5
6
7
8
9
B11B-PH-K
1M46
1
10
11
2
3
I219
I121
I674
I210
I201
I170
220n
2268
I175
I243
I135
F102
I126
3058
1M0
I204
1000V
I200
2118
1n0
VA
I202
3085
I165
47K
1K8
3120
F114
2
3
4
5
6
7
8
9
B9B-PH-K
1007
1
I233
2265
330p
7220
TCET1102(G)
14
3
2
2261
F124
1m0
50V
50V22u
2133
1K0
3265
33R
3220
3217
10K
BAS321
6111
I168
220n
2262
VA
PMST5550
7059
15
10
1
2
3
17
18
16
7
8
12
9
11
4
5
6
13
14
1u0
2122
63V
7260
L4973V3.3
Φ
REGULATOR
3150
1M0
VCC_GO
STANDBY
VRA
VSA_CONTROL
POK
AD5 AD5
G_15960_005.eps
060206
3104 313 6126.3

Table of Contents

Related product manuals