EasyManua.ls Logo

Powerware 9330 - Page 248

Powerware 9330
268 pages
Print Icon
To Next Page IconTo Next Page
To Next Page IconTo Next Page
To Previous Page IconTo Previous Page
To Previous Page IconTo Previous Page
Loading...
A --- 7 4
Powerware 9330 (10 kVA--40 kVA) Installation and Operation
164201300 Rev . N 013004
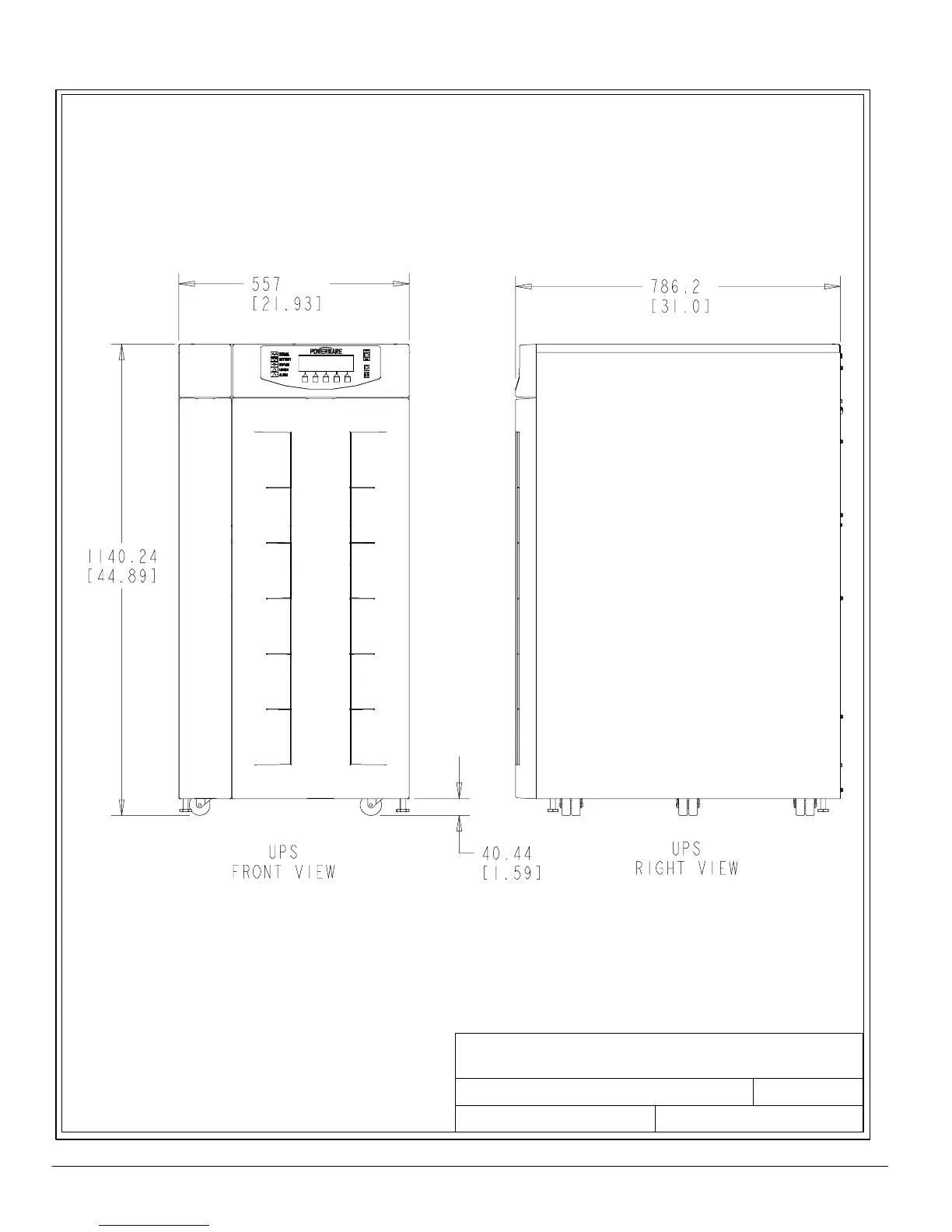
Dimensions are in millimeters and [inches]
DESCRIPTION:
DATE:
DRAWING NO: SHEET:
REVI SION:
D
164201300---13
1of2
053001
UPS CABINET
UPS CABINET DIMENSIONS
POWERWARE 9330 (10 kVA-- 20 kVA)

Table of Contents

Other manuals for Powerware 9330

Related product manuals