EasyManua.ls Logo

Regal 3760 - Typical Vacuflush Plumbing Layout

Default Icon
595 pages
Print Icon
To Next Page IconTo Next Page
To Next Page IconTo Next Page
To Previous Page IconTo Previous Page
To Previous Page IconTo Previous Page
Loading...
5
Technical Information
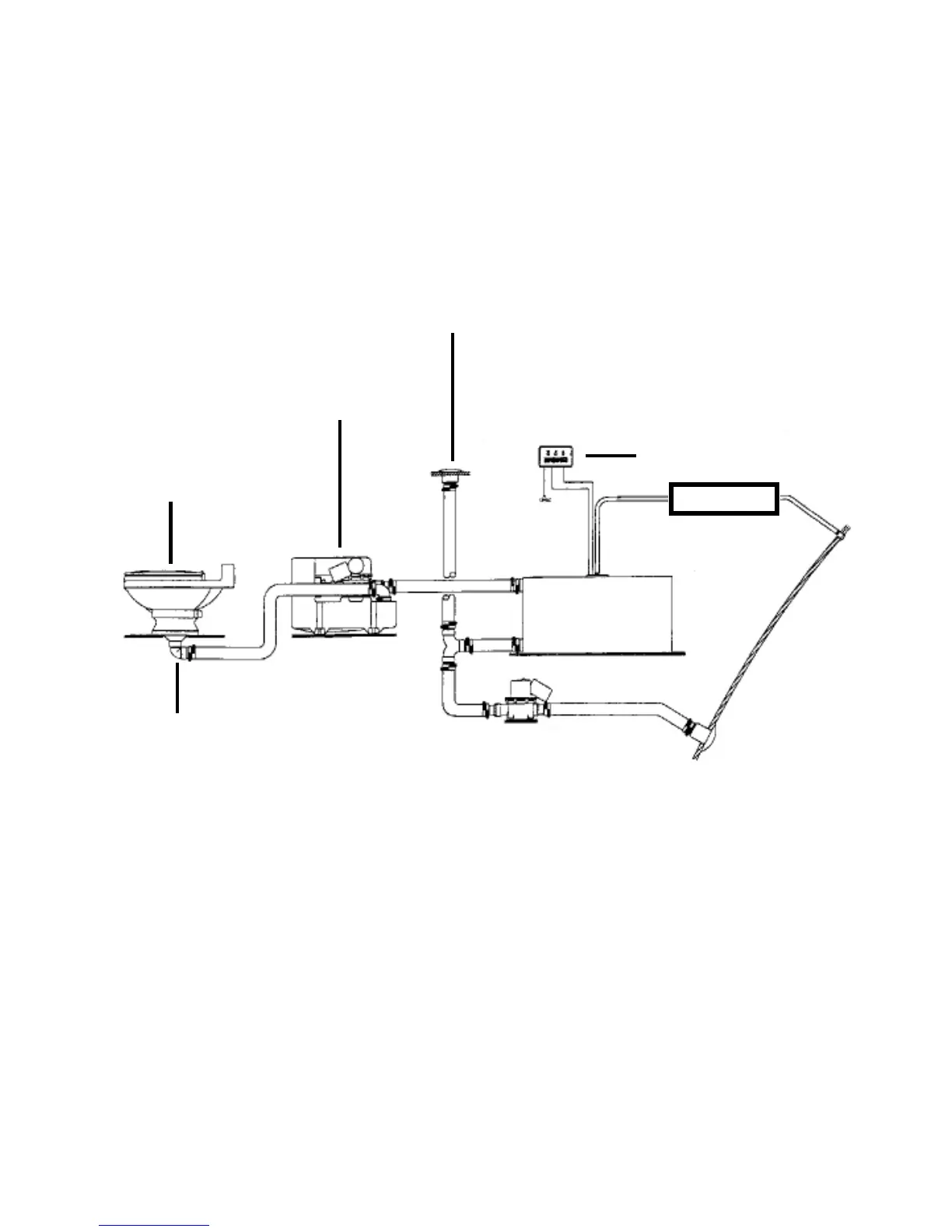
TYPICAL VACUFLUSH PLUMBING LAYOUT
NOTE: THERE ARE TWO
VACUFLUSH TOILETS ON
VACUUM TOILETS
VACUUM GENERA-
PUMP OUT DECK FIT-
WATER/WASTE MONITOR
WASTE HOLDING
OPTIONAL OVERBOARD DISCHARGE PUMP
VENT FILTER

Table of Contents

Related product manuals