EasyManua.ls Logo

Riverbed SteelFusion Edge 2200 - Replacing Memory Modules in 2 U Steelfusion Edge Appliances

Default Icon
102 pages
Print Icon
To Next Page IconTo Next Page
To Next Page IconTo Next Page
To Previous Page IconTo Previous Page
To Previous Page IconTo Previous Page
Loading...
58 SteelFusion Edge Hardware and Maintenance Guide
Replacing SteelFusion Edge Components Adding and replacing memory modules
14. Reinstall the power cords and peripherals.
15. Power on the appliance.
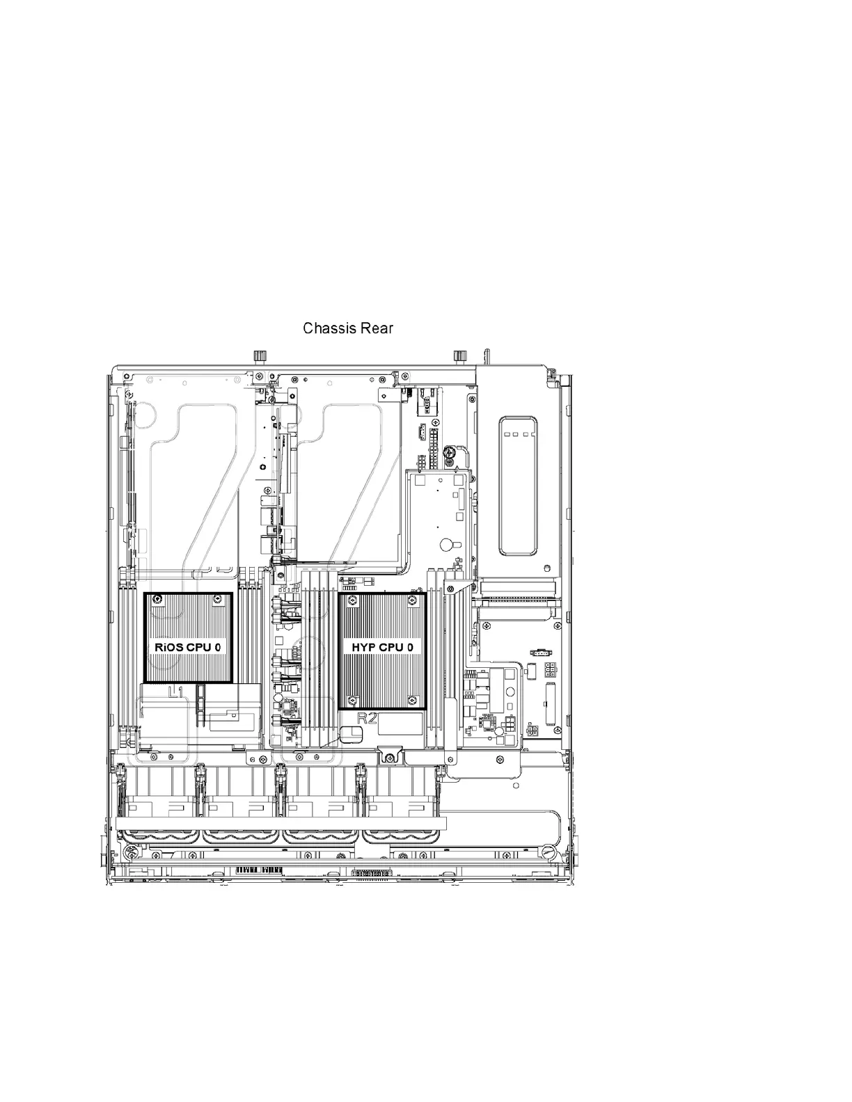
Replacing memory modules in 2U SteelFusion Edge appliances
This section describes how to replace memory modules in the SteelFusion Edge 3100, SteelFusion Edge
3200, and SteelFusion Edge 5100 appliances. When replacing memory in the appliances, install the
memory in the same slots.
The following diagram illustrates memory module slot locations in these appliances. (See Figure 4-19.)
Figure 4-19. Memory module slot locations in 2U SteelFusion Edge appliances

Table of Contents

Other manuals for Riverbed SteelFusion Edge 2200

Related product manuals