EasyManua.ls Logo

Rotex RKHBH008BA - Schéma Fonctionnel; Installation de Lunité Intérieure; Sélection Dun Lieu Dinstallation

Default Icon
Print Icon
To Next Page IconTo Next Page
To Next Page IconTo Next Page
To Previous Page IconTo Previous Page
To Previous Page IconTo Previous Page
Loading...
RKHBH/X008BA
Unité intérieure pour système de pompe à chaleur air à eau
4PW54224-1A
Manuel d'installation
12
11. Prise X13A
La prise X13A accueille le connecteur K3M (uniquement pour
les installations avec ballon d'eau chaude domestique).
12. Prise X9A
La prise X9A accueille le connecteur de la thermistance
(uniquement pour les installations avec ballon d'eau chaude
domestique).
13. Fusible FU2 (fusible en ligne)
14. Transformateur TR1
15. A4P
Carte d’adresse d’alarme distante (uniquement pour les
installations avec kit d’alarme distante).
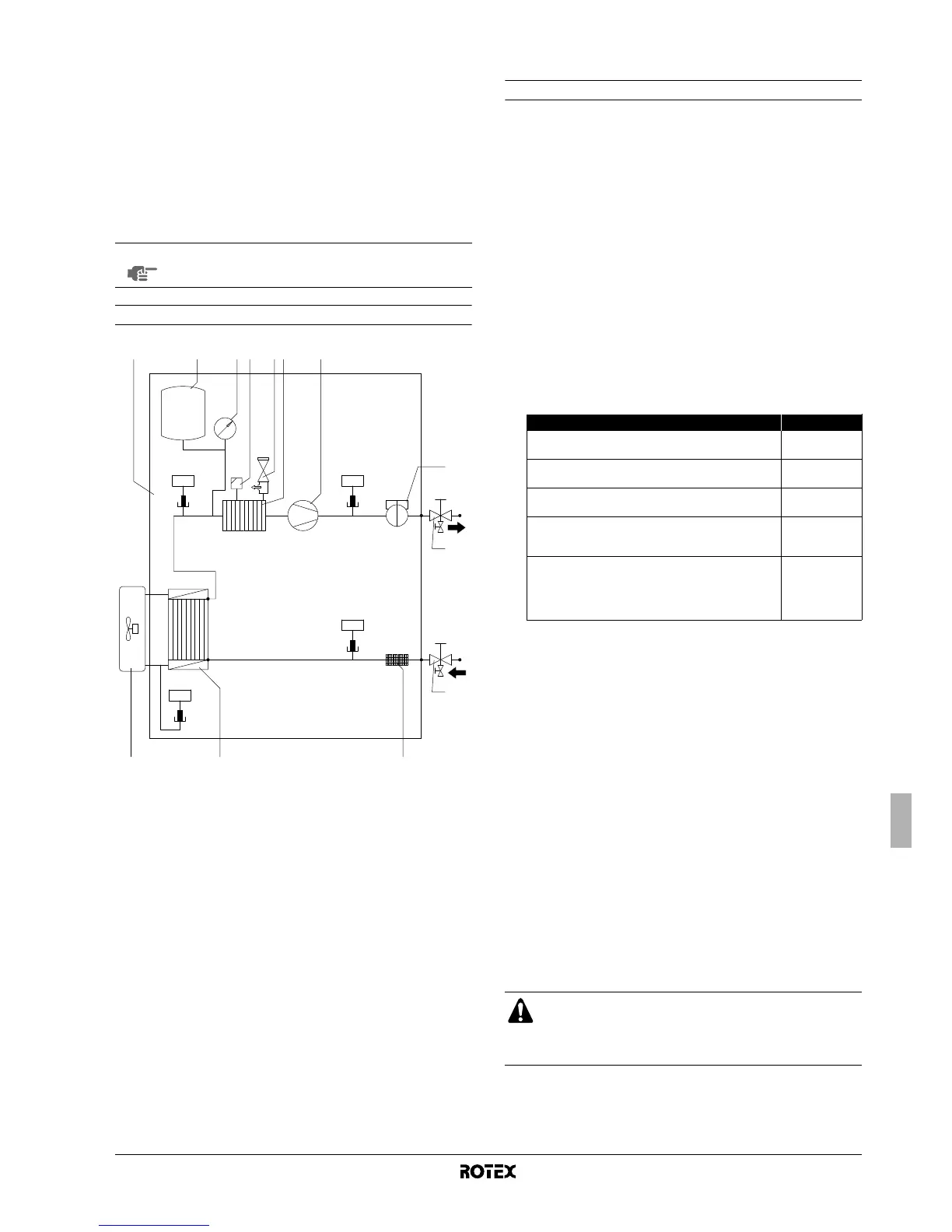
Schéma fonctionnel
INSTALLATION DE L'UNITÉ INTÉRIEURE
Sélection d'un lieu d'installation
L'unité doit être montée au mur dans un endroit à l'intérieur qui
répond aux exigences suivantes:
Le lieu d'installation de l'unité intérieure ne doit pas comporter
des risques de gel.
L'espace autour de l'unité convient parfaitement en cas de
maintenance. (Voir figure 2).
L'espace autour de l'unité permet une circulation d'air suffisante.
Il y a de la place pour que la soupape de décharge de pression
et la vanne de purge de condensat (uniquement pour les
modèles RKHBX avec kit de bac de purge EKHBDP) se
déclenchent.
La surface d'installation consiste en un mur ininflammable plat et
vertical, capable de supporter le poids en ordre de marche de
l'unité (voir "Spécifications techniques" à la page 41).
Il n'y a pas de danger d'incendie en raison de fuite de gaz
inflammable.
Toutes les longueurs de tuyau et distances ont été prises en
considération.
En cours de fonctionnement normal, l'unité hydrobox produira
un bruit que l'on pourrait considérer comme gênant. L'origine du
bruit peut résider dans le fonctionnement de la pompe à eau
et/ou l'activation du contacteur. Par conséquent, il est recom-
mandé d'installer l'unité hydrobox sur un mur solide et non pas
dans ou près d'un environnement sensible au bruit (par ex.
chambre à coucher).
Ne pas installer l'unité à des endroits à forte humidité (par ex.
salle de bains).
Sélectionner un diamètre de tuyauterie proportionnel au débit
d'eau requis et à la capacité disponible de la pompe.
L'équipement n'est pas destiné à une utilisation dans une
atmosphère potentiellement explosive.
Ne pas installer l'unité dans des endroits utilisés souvent
comme atelier.
S'il y a des travaux de construction (par ex. travaux de découpe)
occasionnant beaucoup de poussière, l'unité doit être couverte.
Veiller à ce qu'en cas de fuite d'eau, l'eau ne puisse pas
endommager l'espace d'installation et ses environs.
Ne pas placer d'objets ou d'équipement sur le dessus de l'unité.
Prendre les précautions suffisantes, conformément aux normes
locales et nationales pertinentes, en cas de fuite de réfrigérant.
REMARQUE
Le schéma de câblage électrique se trouve à l'intérieur
du couvercle du coffret électrique.
1 Unité extérieure 10 Vanne d'arrêt de sortie d'eau
avec vanne de purge
(installation sur place)
2 Unité intérieure
3 Vase d'expansion 11 Vanne d'arrêt d'entrée d'eau
avec vanne de purge
(installation sur place)
4 Manomètre
5 Purgeur 12 Filtre
6 Soupape de décharge
de pression
13 Echangeur thermique
7 Chauffage d'appoint R1T
R2T
R3T
R4T
Capteurs de température8 Pompe
9 Contacteur de débit
R4T
H
2
O
t >
R3T
t >
R2T
t >
R1T
t >
9
10
11
32 4 8
12131
5 6 7
Exigence Valeur
Longueur maximale autorisée des tuyaux de
réfrigérant entre les unités extérieures et intérieures
30 m
Longueur minimale requise des tuyaux de réfrigérant
entre les unités extérieures et intérieures
3 m
Différence de hauteur maximale autorisée entre les
unités extérieures et intérieures
20 m
Distance maximale autorisée entre la vanne à 3 voies
et l'unité intérieure (uniquement pour les installations
avec ballon d'eau chaude domestique).
3 m
Distance maximale autorisée entre le ballon d’eau
chaude domestique et l’unité (uniquement pour les
installations avec ballon d’eau chaude domestique).
Le câble de thermistance fourni avec le ballon d’eau
chaude domestique fait 12 m de long.
10 m
ATTENTION
Si l'installation est équipée d'un ballon d'eau chaude
domestique (option), se reporter au manuel d'installation
du ballon d'eau chaude domestique.

Table of Contents

Related product manuals