EasyManua.ls Logo

Rotex RKHBH008BA - Mounting the indoor unit; Installation of the EKHBDP drain pan kit (only for RKHBX models); Refrigerant pipework

Default Icon
Print Icon
To Next Page IconTo Next Page
To Next Page IconTo Next Page
To Previous Page IconTo Previous Page
To Previous Page IconTo Previous Page
Loading...
Installation manual
11
RKHBH/X008BA
Indoor unit for air to water heat pump system
4PW54224-1A
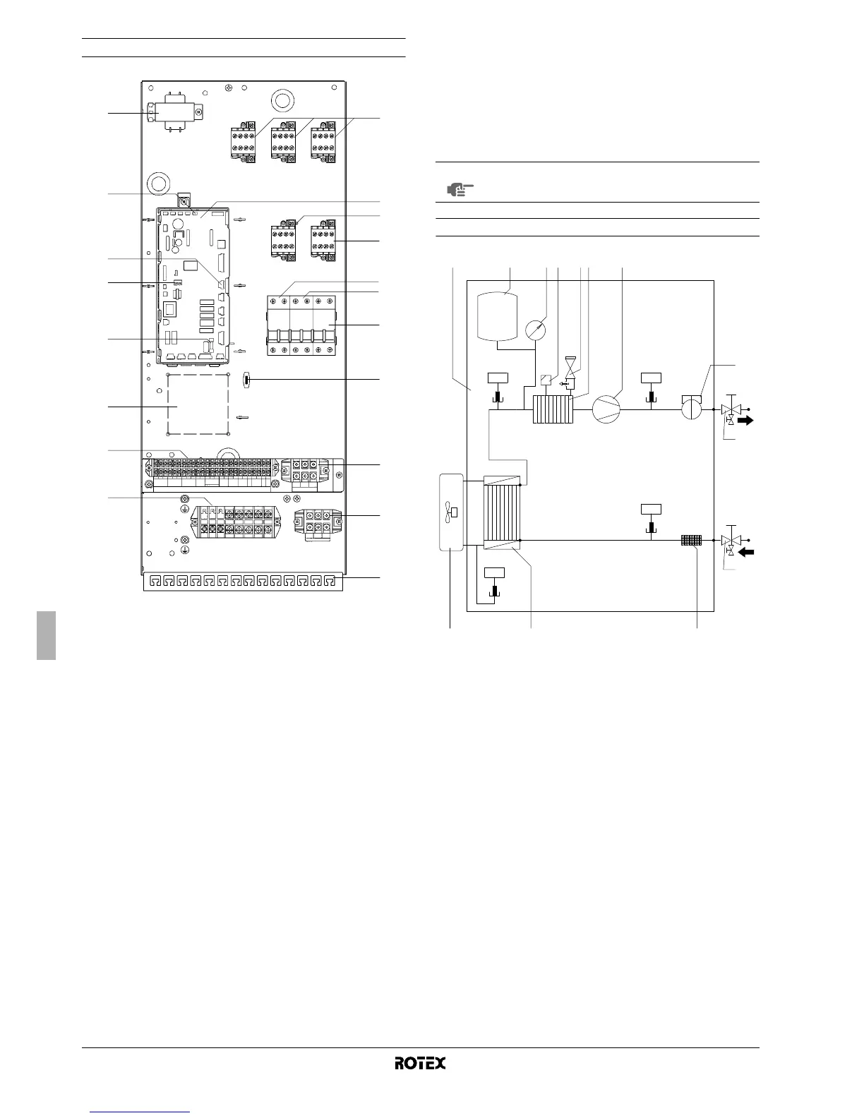
Switch box main components
1. Backup heater contactors K1M, K2M, K5M and K6M.
2. Main PCB
The main PCB (Printed Circuit Board) controls the functioning of
the unit.
3. Booster heater contactor K3M (only for installations with
domestic hot water tank)
4. Booster heater circuit breaker F2B (only for installations with
domestic hot water tank)
The circuit breaker protects the booster heater in the
domestic
hot
water tank against overload or short circuit.
5. Backup heater circuit breaker F1B, F3B
The circuit breaker protects the backup heater electrical circuit
against overload or short circuit.
6. Terminal blocks
The terminal blocks allow easy connection of field wiring.
7. Cable tie mountings
The cable tie mountings allow to fix the field wiring with cable
ties to the switch box to ensure strain relief.
8. Terminal blocks X3M, X4M (only for installations with domestic
hot water tank)
9. PCB fuse FU1
10. DIP switch SS2
The DIP switch SS2 provides 4 toggle switches to configure
certain installation parameters. See "DIP switch settings
overview" on page 21.
11. X13A socket
The X13A socket receives the K3M connector (only for
installations with domestic hot water tank).
12. X9A socket
The X9A socket receives the thermistor connector (only for
installations with domestic hot water tank).
13. Fuse FU2 (in line fuse)
14. Transformer TR1
15. A4P
Remote alarm address card (only for installations with remote
alarm kit).
Functional diagram
TR1
K1M K2M
K5M
K3M K6M
F2B F3B F1B
X1M
X3M
X2M X4M
A1P
A4P
14
12
11
10
9
15
6
6
1
2
3
1
5
13
8
7
8
X9A
X13A
SS2
FU2
FU1
4
5
NOTE
The electrical wiring diagram can be found on the
inside of the switch box cover.
1 Outdoor unit 10 Shut-off valve water outlet
with drain valve (field
installation)
2 Indoor unit
3 Expansion vessel 11 Shut-off valve water inlet with
drain valve (field installation)
4 Manometer
5 Air purge valve 12 Filter
6 Pressure relief valve 13 Heat exchanger
7 Backup heater R1T
R2T
R3T
R4T
Temperature sensors8 Pump
9 Flow switch
R4T
H
2
O
t >
R3T
t >
R2T
t >
R1T
t >
9
10
11
32 4 8
12131
5 6 7

Table of Contents

Related product manuals