EasyManua.ls Logo

Rotex RKHBH008BA - Componentes Principales de la Caja de Conexiones; Diagrama de Funcionamiento

Default Icon
Print Icon
To Next Page IconTo Next Page
To Next Page IconTo Next Page
To Previous Page IconTo Previous Page
To Previous Page IconTo Previous Page
Loading...
Manual de instalación
12
RKHBH/X008BA
Unidad interior para bomba de calor de aire-agua
4PW54224-1A
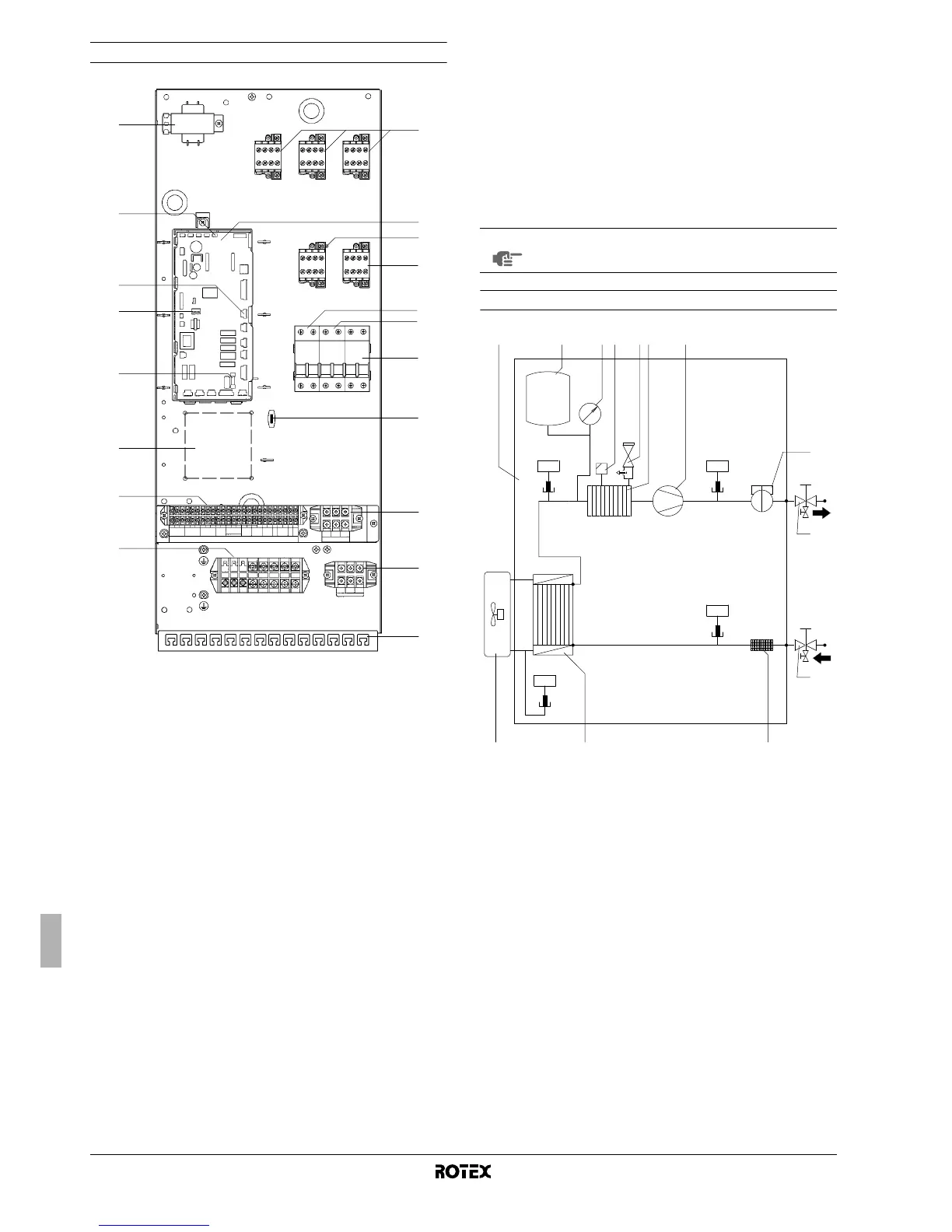
Componentes principales de la caja de conexiones
1. Contactores del calefactor auxiliar K1M, K2M, K5M y K6M.
2. Tarjeta de circuito impreso principal (PCB)
La tarjeta de circuito impreso principal controla el funciona-
miento de la unidad.
3. Contactor K3M del calefactor (sólo para instalaciones con
depósito de agua caliente sanitaria)
4. Disyuntor de la resistencia eléctrica F2B (sólo para instala-
ciones con depósito de agua caliente sanitaria)
Este disyuntor protege la resistencia eléctricya del depósito de
agua caliente sanitaria frente a sobrecargas o cortocircuitos.
5. Disyuntor del calefactor auxiliar F1B, B3B
El disyuntor protege el circuito eléctrico del calefactor auxiliar
frente a sobrecargas o cortocircuitos.
6. Bloques de terminales
Los bloques de terminales permiten conectar el cableado de
obra con facilidad.
7. Sujetacables
Los sujetacables permiten fijar el cableado de obra a la caja de
conexiones mediante sujetacables para asegurar el alivio de
tracción de los cables.
8. Bloques de terminales X3M, X4M (sólo para instalaciones con
depósito de agua caliente sanitaria)
9. Fusible, tarjeta PCB FU1
10. Interruptor DIP SS2
El interruptor DIP SS2 está provisto de 4 interruptores selec-
tores para configurar determinados parámetros de instalación.
Consulte "Descripción general de los ajustes del interruptor
DIP" en la página 23.
11. Toma X13A
La toma X13A recibe el conector K3M (sólo para instalaciones
con depósito de agua caliente sanitaria).
12. Toma X9A
La toma X9A recibe el conector del termistor (sólo para
instalaciones con depósito de agua caliente sanitaria).
13. Fusible FU2 (fusible en serie)
14. Transformador TR1
15. A4P
Tarjeta de dirección de alarma remota (sólo para instalaciones
con kit de alarma remota).
Diagrama de funcionamiento
TR1
K1M K2M
K5M
K3M K6M
F2B F3B F1B
X1M
X3M
X2M X4M
A1P
A4P
14
12
11
10
9
15
6
6
1
2
3
1
5
13
8
7
8
X9A
X13A
SS2
FU2
FU1
4
5
NOTA
El diagrama de cableado eléctrico figura en la parte
interior de la tapa de la caja de interruptores.
1 Unidad exterior 10 Válvula de cierre a la salida
de agua con válvula de
drenaje (instalación en
campo)
2 Unidad interior
3 Recipiente de
expansión
4 Manómetro 11 Válvula de cierre a la
entrada de agua con válvula
de drenaje (instalación en
campo)
5 Válvula de purga de
aire
6 Válvula de alivio de
presión
12 Filtro
13 Intercambiador de calor
7 Calefactor auxiliar R1T
R2T
R3T
R4T
Sensores de temperatura8 Bomba
9 Interruptor de flujo
R4T
H
2
O
t >
R3T
t >
R2T
t >
R1T
t >
9
10
11
32 4 8
12131
5 6 7

Table of Contents

Related product manuals