EasyManua.ls Logo

Rotex RKHBH008BA - Anahtar Kutusu Ana Elemanları; İşlevsel Şema

Default Icon
Print Icon
To Next Page IconTo Next Page
To Next Page IconTo Next Page
To Previous Page IconTo Previous Page
To Previous Page IconTo Previous Page
Loading...
Montaj kılavuzu
11
RKHBH/X008BA
Hava su tipi ısı pompa sistemi iç ünitesi
4PW54224-1A
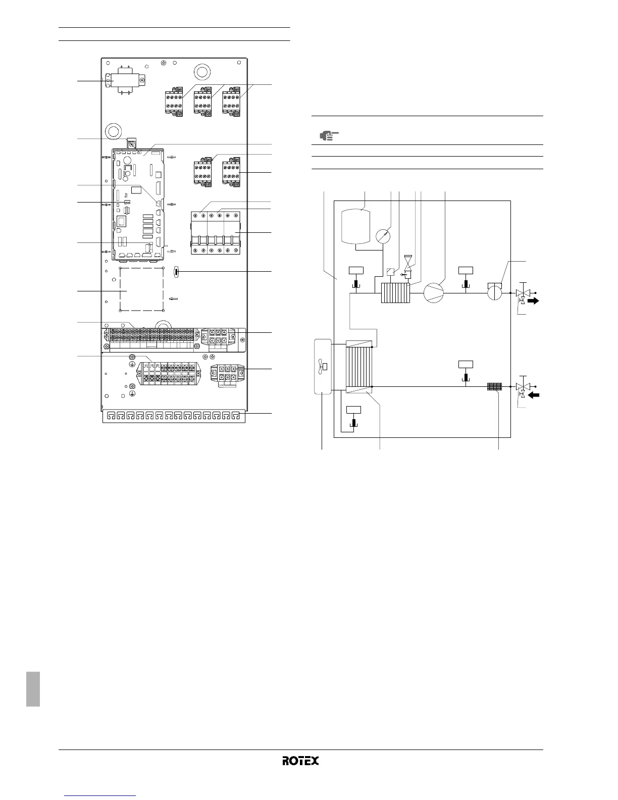
Anahtar kutusu ana elemanları
1. Yardımcı ısıtıcı kontaktörleri K1M, K2M, K5M ve K6M.
2. Ana PCB
Ana PCB (Baskı Devre Kartı) ünitenin işleyişini kontrol eder.
3. Buster ısıtıcı kontaktörü K3M (sadece kullanım sıcak suyu
deposu olan montajlar için)
4. Buster ısıtıcı devre kesici F2B (sadece kullanım sıcak suyu
deposu olan montajlar için)
Devre kesici,
kullanım sıcak suyu deposundaki buster ısıtıcıyı
aşırı yük veya kısa devreye karşı korur.
5. Yardımcı ısıtıcı devre kesici F1B, F3B
Devre kesici, yardımcı ısıtıcı elektrik devresini aşırı yük veya
kısa devreye karşı korur.
6. Terminal blokları
Terminal blokları saha kablolarının kolaylıkla bağlanmasını
sağlar.
7. Kablo bağı tespitleri
Kablo bağı tespitleri, gerginliğin alınmasını temin etmek için
saha kablolarının kablo bağları ile anahtar kutusuna
sabitlenmesine imkan tanır.
8. Terminal blokları X3M, X4M (sadece kullanım sıcak suyu
deposu olan montajlar için)
9. PCB sigortası FU1
10. DIP anahtarı SS2
DIP anahtarı SS2'de bazı kurulum parametrelerini düzenlemek
için 4 adet geçiş anahtarı mevcuttur. Bkz. "DIP anahtar
ayarlarına genel bakış" sayfa 21.
11. X13A soketi
X13A soketi K3M konektörünü alır (sadece kullanım sıcak suyu
deposu olan montajlar için).
12. X9A soketi
X9A soketi termistör konektörünü alır (sadece kullanım sıcak
suyu deposu olan montajlar için).
13. Sigorta FU2 (hat içi sigorta)
14. Trafo TR1
15. A4P
Uzaktan alarm adres kartı (sadece uzaktan alarm kiti olan
montajlar için).
İşlevsel şema
TR1
K1M K2M
K5M
K3M K6M
F2B F3B F1B
X1M
X3M
X2M X4M
A1P
A4P
14
12
11
10
9
15
6
6
1
2
3
1
5
13
8
7
8
X9A
X13A
SS2
FU2
FU1
4
5
NOT
Elektrik kablo bağlantıları şeması anahtar kutusu
kapağının iç tarafında bulunabilir.
1 Dış ünite 10 Drenaj vanalı kesme vanası
su çıkışı (sahada montaj)
2 İç ünite
3 Genleşme kabı 11 Drenaj vanalı kesme vanası
su girişi (sahada montaj)
4 Manometre
5 Hava alma vanası 12 Filtre
6 Basınç boşaltma valfı 13 Isı eşanjörü
7 Yardımcı ısıtıcı R1T
R2T
R3T
R4T
Sıcaklık sensörleri8 Pompa
9 Akış anahtarı
R4T
H
2
O
t >
R3T
t >
R2T
t >
R1T
t >
9
10
11
32 4 8
12131
5 6 7

Table of Contents

Related product manuals