EasyManua.ls Logo

SAME SILVER 100.4 - Page 158

Default Icon
470 pages
Print Icon
To Next Page IconTo Next Page
To Next Page IconTo Next Page
To Previous Page IconTo Previous Page
To Previous Page IconTo Previous Page
Loading...
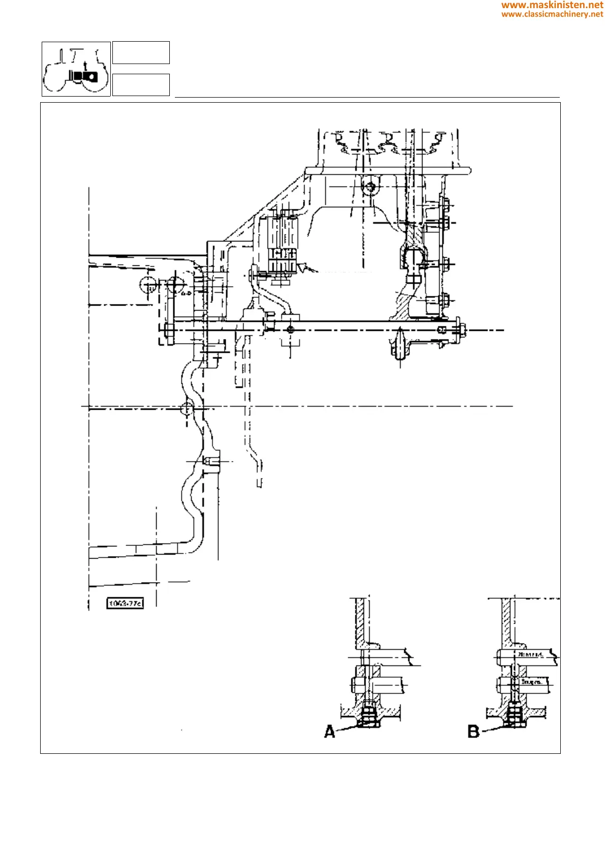
Fig. 44 - Reverser controls.
A - Model without mini-reduction
B - Model with mini-reduction (neutral position)
transmission
primary shaft - secondary shaft - reduction gear unit
3
32-33-34
SHUTTLE
ONLY FOR MODEL WITH MINI-REDUCTION AND SHUTTLE
ONLY FOR GEAR-
BOX WITH MINI-
REDUCTION
158
www.maskinisten.net
www.classicmachinery.net

Table of Contents

Related product manuals