EasyManua.ls Logo

Siemens Cerberus PYROTRONICS MXL - Page 176

Siemens Cerberus PYROTRONICS MXL
366 pages
Print Icon
To Next Page IconTo Next Page
To Next Page IconTo Next Page
To Previous Page IconTo Previous Page
To Previous Page IconTo Previous Page
Loading...
4 - 9
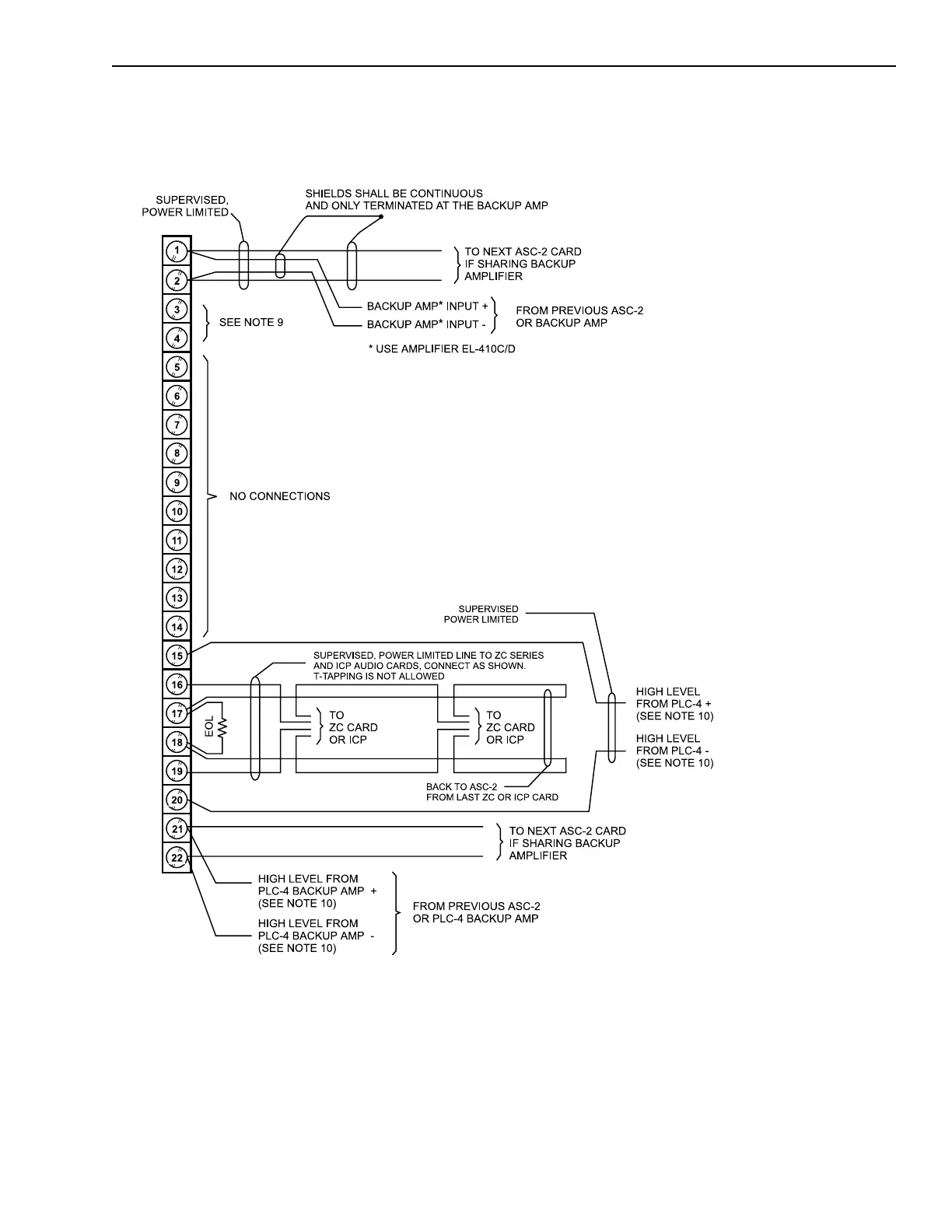
ASC-2 Connections and Ratings
ASC-2 Style Z Wiring Diagram
NOTES
1. All wiring must be in
accordance with
Article 760 of NEC or
the local building
codes.
2. Minimum wire size:
18 AWG twisted pair.
3. Maximum wire size:
14 AWG twisted pair.
4. High level amplifier
connections =
unshielded twisted
pair.
Low level amplifier
connections = shielded
twisted pair.
Other connections =
single conductor wire.
5. Maximum rating:
25.2V RMS: 100W -
4.0A each input/
output.
70.7V RMS: 100W -
1.4A each input/
output.
6. Maximum loop length:
Refer to the decibel
loss tables.
7. The wire length
includes:
The length of the wire
from the ASC-2 to the
amplifier, the length of
the wire from the
ASC-2 to the ZC
Series of audio cards
and back, and the
length of the longest
speaker zone served
by the amplifier.
8. End of Line resistor:
24K, ½W, 5%
(P/N 140-820405).
9. If there is no backup
amplifier, connect
terminals 3 and 4
together. If one backup
amplifier is shared by
more than one ASC-2,
connect all terminal 3s
together and leave
the terminal 4s
unconnected.
10. Required for power
limited wiring.
Technical Manuals Online! - http://www.tech-man.com
firealarmresources.com

Related product manuals