EasyManua.ls Logo

Siemens SIMATIC MOBY D - Dimension Drawing

Siemens SIMATIC MOBY D
350 pages
Print Icon
To Next Page IconTo Next Page
To Next Page IconTo Next Page
To Previous Page IconTo Previous Page
To Previous Page IconTo Previous Page
Loading...
Write/read devices with RS232 interface
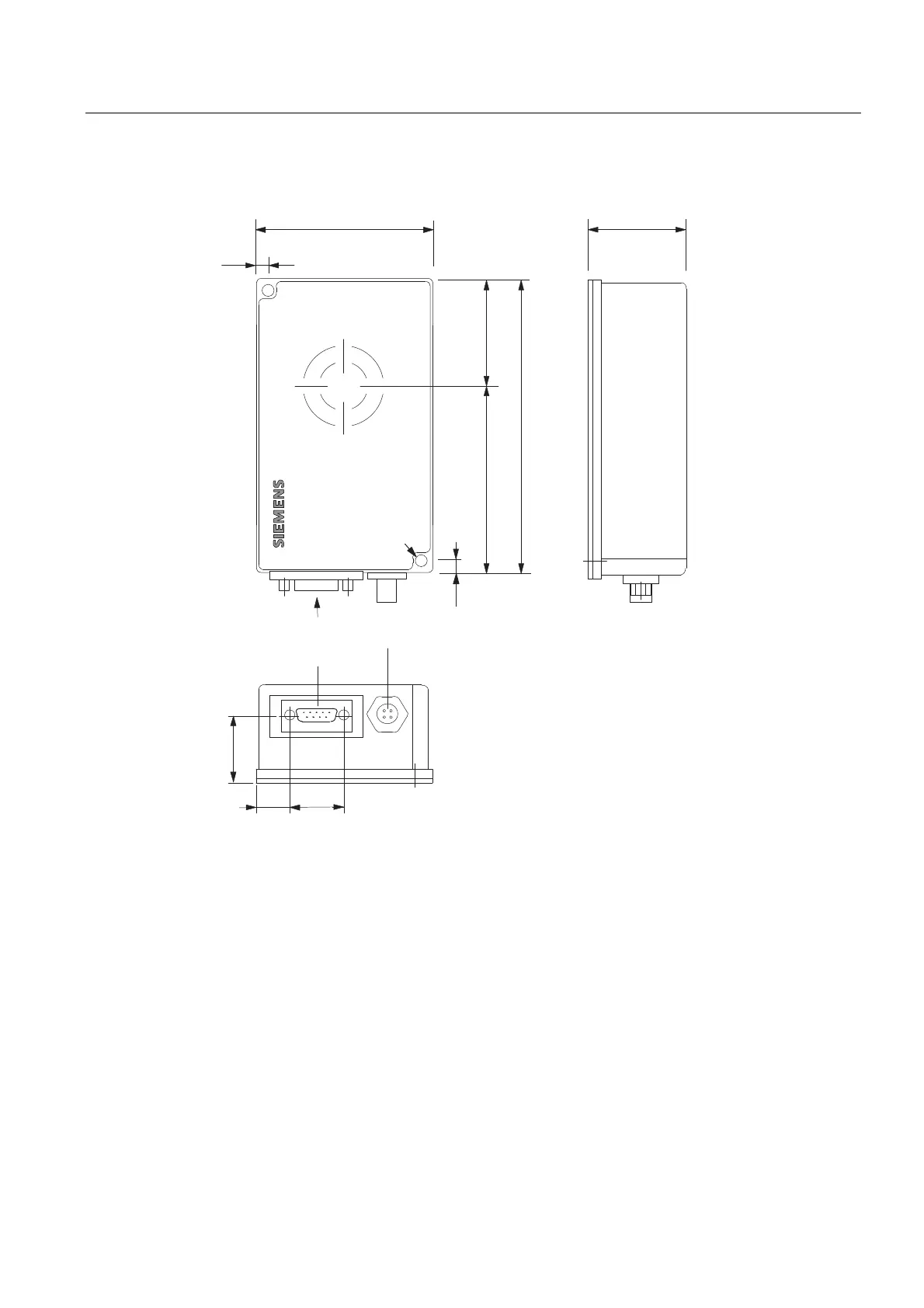
6.4 SLG D12
MOBY D
System Manual, 01/2010, J31069-D0147-A6-7618
169
6.4.10 Dimension drawing

 
;
<


$




9LHZ$
9LQWHUIDFH
3RZHU6XSSO\
Dimensions in mm
Figure 6-10 Dimension drawing of SLG D12

Table of Contents

Related product manuals