EasyManua.ls Logo

SolarMax SM30HT4 - Physical Dimensions

SolarMax SM30HT4
74 pages
Print Icon
To Next Page IconTo Next Page
To Next Page IconTo Next Page
To Previous Page IconTo Previous Page
To Previous Page IconTo Previous Page
Loading...
10
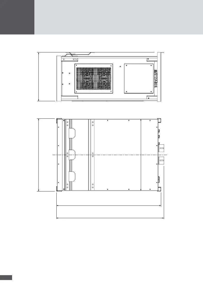
3�4 Dimensions
[mm]
590
580
397
847
871
Figure 1 Dimensions (with wall mounting bracket)

Table of Contents

Related product manuals