EasyManua.ls Logo

SolarMax SM30HT4 - Mounting the Inverter Unit

SolarMax SM30HT4
74 pages
Print Icon
To Next Page IconTo Next Page
To Next Page IconTo Next Page
To Previous Page IconTo Previous Page
To Previous Page IconTo Previous Page
Loading...
18
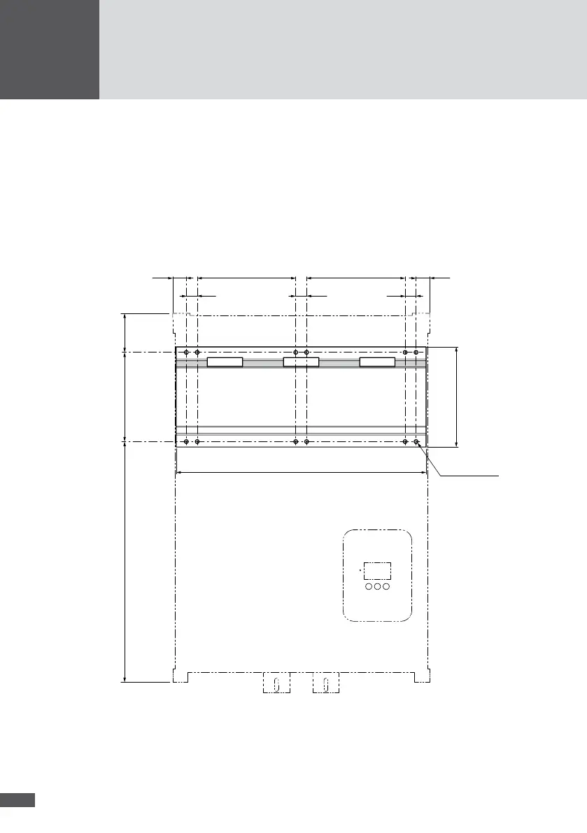
4�5 Mounting the inverter
Install the inverter to a vertical wall using the mounting plate. The mounting plate and the
xing material are included in the delivery.
Fixing the mounting plate
1. Use the mounting plate as a drilling template.
2. Use a spirit level to align the mounting plate horizontally.
3. Mark 6 places for drilling:
205
553
[mm]
226
574
23
25
25 25
23
89
226
230
12 x ø8.5
Figure 7 Dimensions of mounting plate
4. Drill the Ø10 x 60 mm holes.
5. Fix the mounting plate.

Table of Contents

Related product manuals