EasyManua.ls Logo

Thales 421 - Page 182

Thales 421
256 pages
Print Icon
To Next Page IconTo Next Page
To Next Page IconTo Next Page
To Previous Page IconTo Previous Page
To Previous Page IconTo Previous Page
Loading...
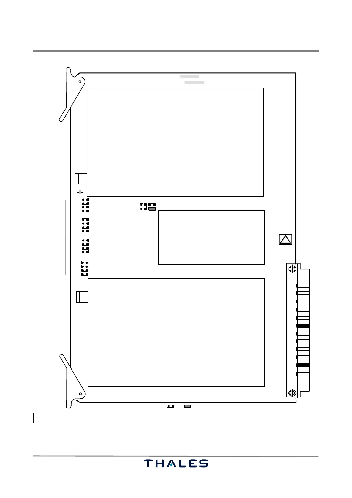
LLZ 421
Repair Operation and Maintenance
ILS 420
6−40 Ed. 01.10SOAC
1
set
open
VCO’s off
J1
J2
J3
J4
300
100
20
10
8.0
4.0
1.0
0.8
0.4
0.2
0.1
.075
.050
.025
.000
LED
J5 J8
8kHz
125Hz
SGL
2.0
Dual
RF out
RF out
J7
J6
65597 / 120496−
S/N
Frequency
select
used in LLZ
used in GP
f+4 kHz*
f−4 kHz*
* 2f systems
1 Synthesizer (SYN) 120496−0002 (83138 22100) 1 of 2

Table of Contents