EasyManua.ls Logo

Thales 421 - Fig. 2−28 Example of Ground of a Localizer Installation

Thales 421
256 pages
Print Icon
To Next Page IconTo Next Page
To Next Page IconTo Next Page
To Previous Page IconTo Previous Page
To Previous Page IconTo Previous Page
Loading...
LLZ 421
Operation and Maintenance Installation
ILS 420
2−33Ed. 01.10
SOAC
ÀÀ
ÀÀ
ÀÀ
ÀÀ
ÀÀ
ÀÀ
ÀÀ
ÀÀ
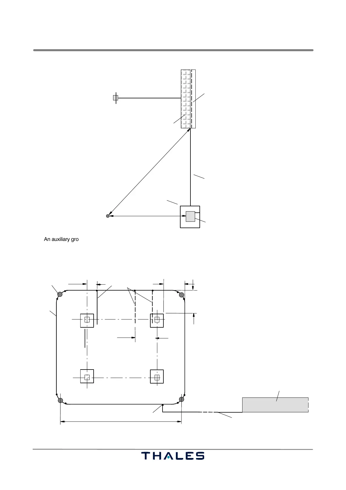
An auxiliary ground is required to measure the ground resistance of the antenna ground and the installation ground.
The disconnected ground connection can be used for one of the three measurements.
Counterpoise
Antenna
Shelter
Ring earth
Nearfield Dipole
Support element grounded
connected to ground
Ground connection
Disconnect for measurements
Auxiliary ground
Fig. 2−28 Example of ground of a Localizer installation
3
7
5
1
2
1 Ring ground around the shelter foundation
2 Ground rod (4x)
3 Ground connection for standard shelter
4 Ground connection (2x) for shelter with opt.
external overvoltage arrester box
5 Foundation to LLZ antenna
6 Ground laid down in the cable trench
7 Clamped joint
6
ca. 1 m
ca. 1 m
30 cm
ca. 6 m
shelter
door
4
40 cm
Fig. 2−29 Ring earth and earth connection of shelter (example LLZ)

Table of Contents