EasyManua.ls Logo

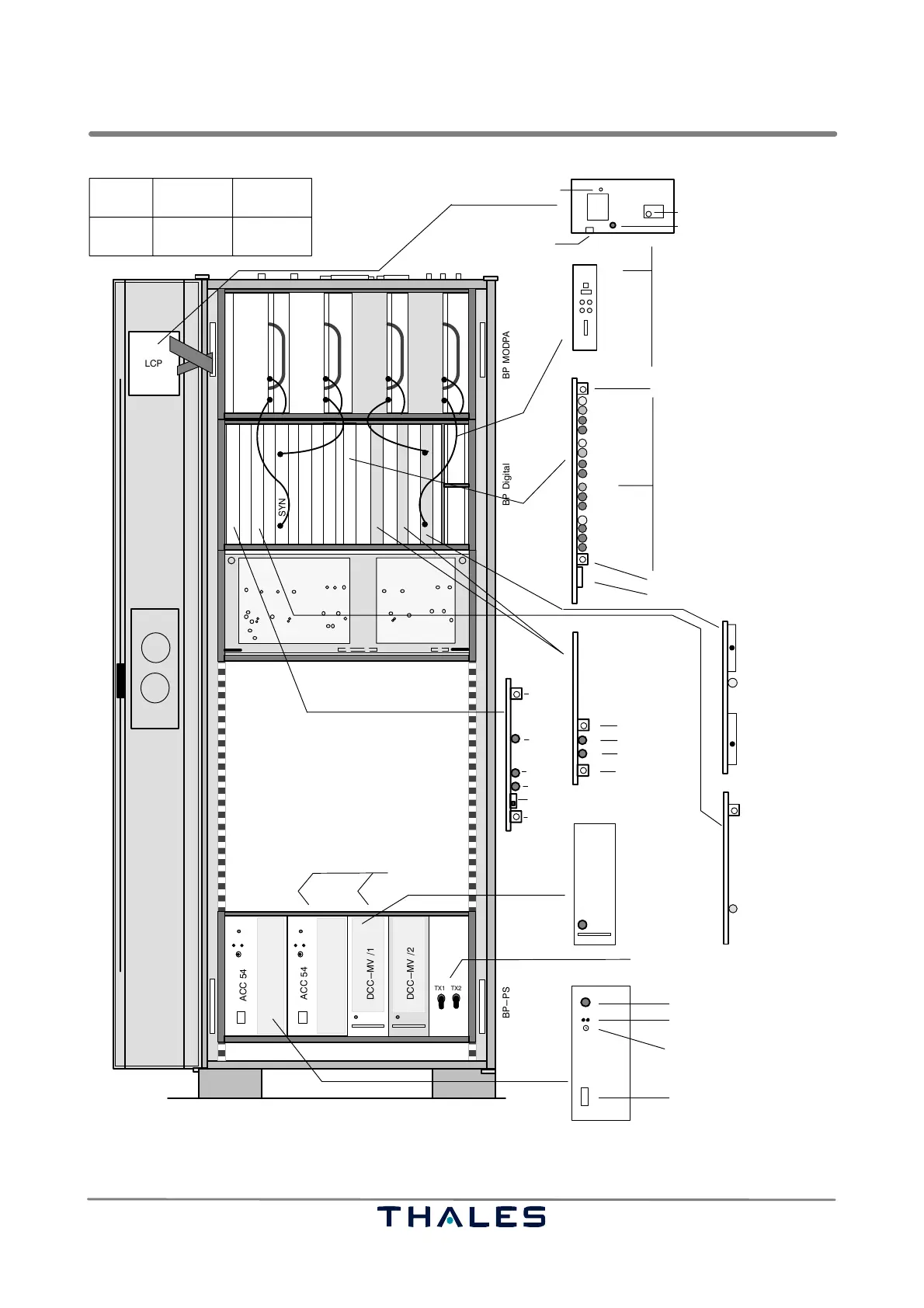
Thales 421 - Fig. 3−2 Push Buttons and Indications on the Subassemblies Inside the Rack

Thales 421
256 pages
Print Icon
To Next Page IconTo Next Page
To Next Page IconTo Next Page
To Previous Page IconTo Previous Page
To Previous Page IconTo Previous Page
Loading...
LLZ 421
Operation and Maintenance Operation
ILS 420
3−5Ed. 01.07
SOAC
Ê
Ê
Ê
Ê
Ê
Ê
Ê
Ê
Ê
Ê
Ê
Ê
Ê
Ê
Ê
Ê
Ê
Ê
Ê
Ê
Ê
Ê
Ê
Ê
Ê
Ê
Ê
Ê
Ê
Ê
Ê
Ê
Ê
Ê
Ê
Ê
Ê
Ê
Ê
Ê
Ê
Ê
Ê
Ê
Ê
Ê
Ê
Ê
Ê
Ê
Ê
Ê
Ê
Ê
Ê
Ê
Ê
Ê
Ê
Ê
Ê
Ê
Ê
Ê
Ê
Ê
LCP
ACC 54
ACC 54
BP MODPABP DigitalBP−PS
TX1 TX2
DCC−MV /1
DCC−MV /2
SYN 1
VAM*
Interface INTFC
LG−A 2
SYN 2
LG−M 1
LG−M 2
MOD/PA 2/1
MOD/PA 1/1
MOD/PA 1/2
MOD/PA 2/2
Modem*
Modem*
ECU
LG−A 1
Stby and On−air Combiner
(includes combining network for GP, not used in LLZ)
J20 J21
front side
* optional** 2F only
LG−A/LG−M
Load/boot
Board reset
CPU_Normal
Audio On
LC−CPU
CPU live lamp, green
Reset switch
Key and test jack
PM1 test condition
M1 modem operable
M5* comm. line subsystem
and RCSE operable
Answ. modem occupies line
S1 DEE operable
FKS8 connector
* LGM28.8D1 opt.5
LGM
PM1 Answ.
M1 (M5*) S1
ACC
Converter on/off
test jack Uout
+54 V available (LED)
R32, fine adjustment battery
charging voltage
DC/DC ok (LED)
SYN
VCO’s off (LED)
ECU
Executive ON
Bypass On
Exec. Alarm Monitor 1
Exec. Alarm Monitor 2
Standby On
Standby Bypass On
Standy Alarm Monitor 1
Standby Alarm Monitor 2
Field Bypass On
Field Alarm Monitor 1
Field Alarm Monitor 2
Equipment 1 Executive
3 RD off
Integrity Fail
Switch Fail
Equipment Select
Reset Board
Lamp test
LCD brightnessR1
CW RFout CLR
CW RFout CRS
MOD/PA 2/1
MOD/PA 1/1
MOD/PA 1/2
MOD/PA 2/2
CLR CSB/SBO
CRS CSB/SBO
CRS CSB/SBO
CLR CSB/SBO
CRS CSB/SBO
CRS CSB/SBO
TX1
TX2
2F 1F
2F 1F
DCC−MV
Main switch DC TX1, TX2 on/off
HD LED
BP−PS rear
Fuse
F4F5
Remark:
The RFcw connections of CRS and CLR frequency
from J7 or J6 at the Synthesizer to the CRS and
CLR MODPA may be interchanged. But in one cab-
inet both TX must be connected the same.
VAM−ILS*
Line/Mic
Mic
Line
Sign.
Mic in
out
voice
Hex Switch
key tone (ident)
INTFC
Fig. 3−2 Push buttons and indications on the subassemblies inside the rack
Ed. 01.10

Table of Contents