EasyManua.ls Logo

Triconex Trident - Page 169

Default Icon
274 pages
Print Icon
To Next Page IconTo Next Page
To Next Page IconTo Next Page
To Previous Page IconTo Previous Page
To Previous Page IconTo Previous Page
Loading...
Effective Grounding Methods 153
Chapter 4 Installation and Maintenance
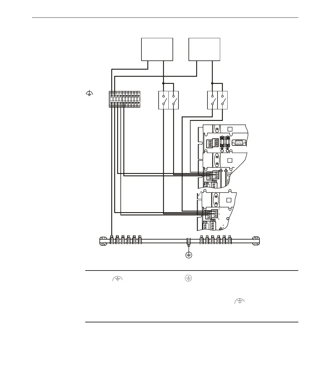
Notes L should be connected to at one and only one place for each set of
redundant field power supplies. Multiple IO modules can share a single set of
power supplies. Or, each IO module or group of modules can use separate power
supplies referenced to alternate grounds. Alternatively, L can be connected to
a DCS master reference ground or other quiet earth. In simple environments, logic
and field power can be combined and treated as one ground system.
Grounding Field
Power
J5
1
2
1
Typical I/O
Baseplate
Power
Disconnect
Power
Disconnect
Distribution
Block
F
Power
Supply 1
Power
Supply 2
––++
1
2
3
1
2
Extender

Table of Contents