EasyManua.ls Logo

Triconex Trident - Page 171

Default Icon
274 pages
Print Icon
To Next Page IconTo Next Page
To Next Page IconTo Next Page
To Previous Page IconTo Previous Page
To Previous Page IconTo Previous Page
Loading...
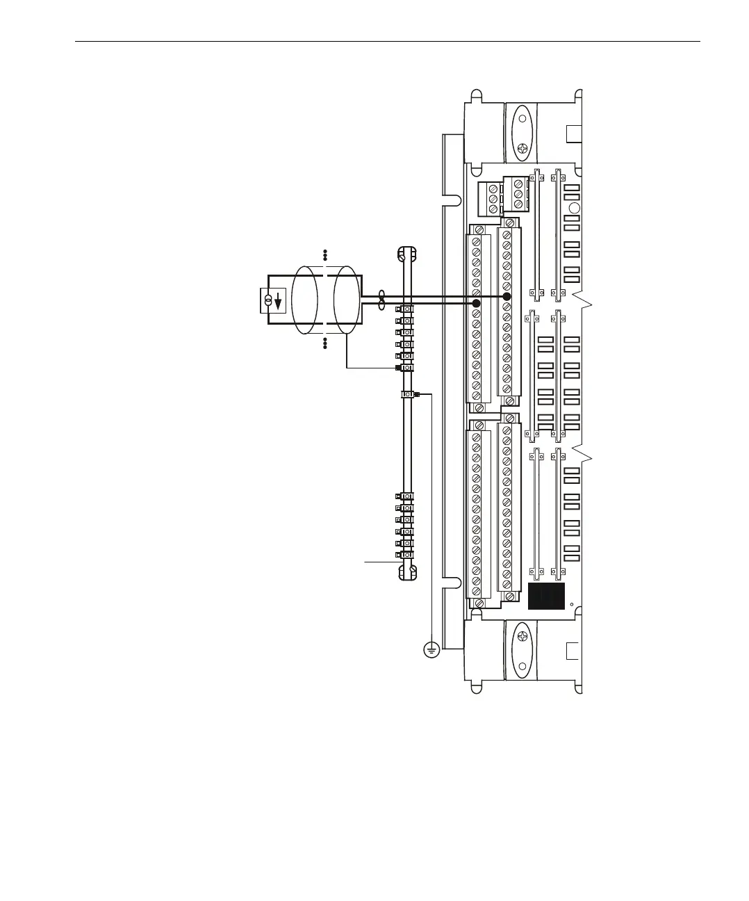
Effective Grounding Methods 155
Chapter 4 Installation and Maintenance
Connecting a
Shield Ground to
Earth
1
2
3
4
5
6
7
8
9
10
11
12
13
14
15
16
1
2
3
4
5
6
7
8
9
10
11
12
13
14
15
16
17
18
19
20
21
22
23
24
25
26
27
28
29
30
31
32
17
18
19
20
21
22
23
24
25
26
27
28
29
30
31
32
~
~
~
~
~
~
~
~
6
Typical Point
(1 of 32 Points Shown)
4-20 mA
Transmitter
Dedicated Shield Ground,
DCS Master Reference Ground
(Functional Earth), or
Protective Earth
Shield Bus Bar

Table of Contents